Zentral Wohnen oder Arbeiten – direkt an der Donau!

720.000

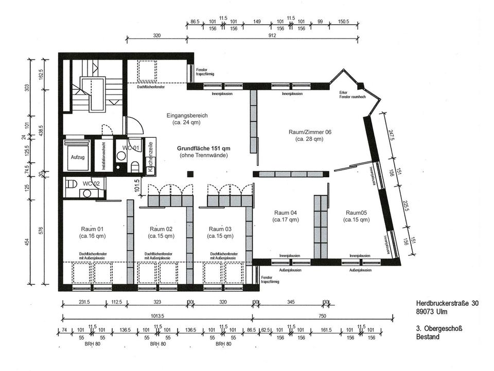
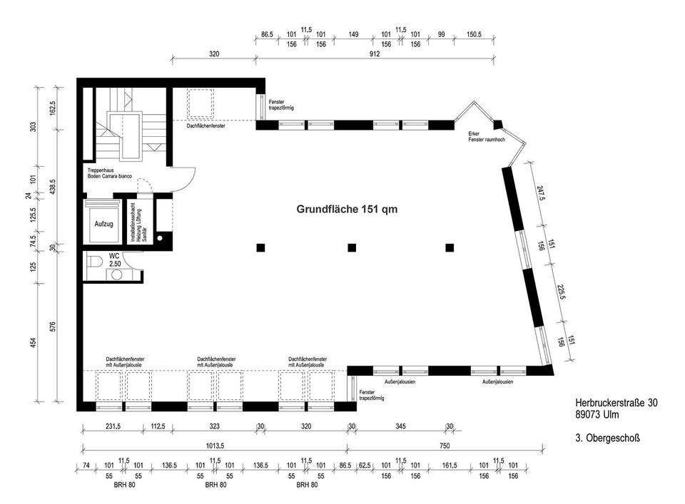
Die Räumlichkeiten im 3. OG eines modernen Mehrparteienhauses aus dem Jahr 1982 bieten mit einer Nutzfläche von 151 m² und großzügigen Fensterfronten nach Süden und Norden eine lichtdurchflutete, inspirierende Umgebung mit herrlichem Blick auf die…

Beschreibung

Die Räumlichkeiten im 3. OG eines modernen Mehrparteienhauses aus dem Jahr 1982 bieten mit einer Nutzfläche von 151 m² und großzügigen Fensterfronten nach Süden und Norden eine lichtdurchflutete, inspirierende Umgebung mit herrlichem Blick auf die Donau, die Stadtmauer und die Altstadt. Der Zugang erfolgt bequem über einen Aufzug oder das Treppenhaus.

Die Räume wurden bislang als Büros genutzt und zeichnen sich durch eine hochwertige Materialwahl und sorgfältige Gestaltung aus – die Einheit wurde jahrzehntelang von den Architekten des Hauses als Büro genutzt.

Den mit Schiebetüren separierten 5 Einzelräumen sowie einem großen (Besprechungs-)raum ist ein großzügiger Empfangs- bzw. Gemeinschaftsbereich mit offener Küche (Einbauküchenzeile) vorangestellt. Die Einheit ist derzeit mit zwei separaten WCs ausgestattet.

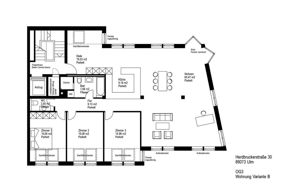
Der offene Grundriss ermöglicht einen Umbau zur Wohnung ohne besondere Zustimmung der Miteigentümer und ohne Genehmigung der Baurechtsbehörde, mit vertretbarem Aufwand und in kurzer Zeit realisierbar – es liegen sogar bereits entsprechende Pläne vor (siehe Grundrisse).

# Ausstattung
Keller, Fahrstuhl, Einbauküche, Gäste-WC, Teppichboden

Bemerkungen:
• offener Grundriss mit freien Gestaltungsmöglichkeiten
• Aufzug
• Kellerräume
• Einbauküchenzeile mit Kühlschrank und Spülmaschine
• 2 separate WCs
• Fensterfronten mit Nord-, Süd- und Ostausrichtung und Blick auf die Donau
• hochwertiger Teppichbelag in guten Zustand in der gesamten Einheit
• Deckenleuchten in allen Räumen
• Ausreichend Stauraum bei Büronutzung durch Einbauregale bzw. -schränke
• Bis zu 3 TG Stellplätze in der Nähe optional anmietbar

# Weitere Angaben
– Separate WCs: 1
– Verfügbar ab: sofort
– Objektzustand: neuwertig
– Bodenbelag: Teppich

# Lagebeschreibung
Die sonnige Einheit befindet sich in der Herdbruckerstraße – einer der renommiertesten Adressen in der Ulmer Altstadt, in bester Innenstadtlage. Direkt an der geschichtlich bedeutungsvollen Stadtmauer gelegen, mit unverbaubarem Blick auf die Donau, zentral und doch ruhig.

Die unmittelbare Nähe zur Ulmer Fußgängerzone bietet eine sehr gute Infrastruktur: Restaurants, Cafés, Bäckereien, Banken, Hotels und sämtliche Einrichtungen des täglichen Bedarfs befinden sich in fußläufiger Distanz.

Das grüne Donauufer und die Donauauen laden direkt am Haus zu Spaziergängen ein.
Infrastruktur (im Umkreis von 5 km):
Apotheke, Lebensmittel-Discount, Allgemeinmediziner, Öffentliche Verkehrsmittel

# Sonstiges
Heizungsart: Fußbodenheizung
Energieträger: Fernwärme

Makleranfragen nicht erwünscht. Nach § 7 UWG sind unaufgeforderte Kontaktaufnahmen durch Makler ohne ausdrückliche Einwilligung des Empfängers verboten!

ohne-makler (OM) ist weder Anbieter noch Vermittler der Immobilie. OM betreibt eine Plattform für Immobilieneigentümer, die unter anderem die gleichzeitige Veröffentlichung einzelner Inserate auf mehreren Immobilienportalen ermöglicht. Die Inhalte dieser Inserate werden ausschließlich von Dritten verantwortet. Für die Richtigkeit, Vollständigkeit oder Rechtmäßigkeit der Angaben übernimmt OM keine Haftung. Hinweise auf mögliche Rechtsverstöße können jederzeit gemeldet werden und werden nach Prüfung umgehend bearbeitet.

# Energie
– Energieausweis: Energieverbrauchsausweis
– Energieverbrauch: 79 kWh/(m²*a)
– Energieverbrauch für Warmwasser enthalten
– Heizungsart: Fußbodenheizung
– Wesentliche Energieträger: Fernwärme

Anbieter-Objekt-ID: 439179