Beschreibung
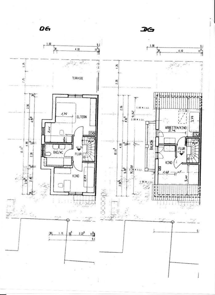
Erdgeschoss:
Helles und lichtdurchflutetes Wohnzimmer mit direktem Zugang zur Süd-Terrasse, Küche, Gäste-WC, Flur mit Garderobe
Obergeschoss:
Elternschlafzimmer, Kinderzimmer, Badezimmer mit WC
Dachgeschoss:
2 Kinderzimmer, Süd – Balkon
Spitzboden:
Stauraum
Untergeschoss:
Kinder-/Arbeits-/Gästezimmer,
Heizung/Waschküche, Keller, Abstellraum
Das Haus ist ideal für eine Familie mit Kindern:
3 Kinderzimmer im OG und DG stehen zur Verfügung. Im UG gibt es ein weiteres Kinder-/Gäste- oder Arbeitszimmer.
Die reichlich bemessene Nutzfläche bietet Raum zum Arbeiten oder fürs Hobby.
# Ausstattung
Balkon, Terrasse, Keller, Vollbad, Gäste-WC, Laminat, Fliesen
Bemerkungen:
Gaszentralheizung
Anschluss für Kaminofen
Rollläden
Waschküche mit Anschluss für Waschmaschine und Trockner.
Badezimmer mit Wanne, Dusche, WC, 2 Waschbecken im OG.
Gäste-WC im EG
# Weitere Angaben
Separate WCs: 1
Verfügbar ab: nach Absprache
Objektzustand: gepflegt
Bodenbelag: Fliesen, Laminat
Grundstücksfläche: ca. 251 m²
# Lagebeschreibung
In wenigen Gehminuten erreichen Sie die S-Bahn Haltestelle Schorndorf-Weiler.
Kurze Entfernung zur Bundesstraße nach Stuttgart und Aalen.
Infrastruktur (im Umkreis von 5 km):
Apotheke, Lebensmittel-Discount, Allgemeinmediziner, Kindergarten, Grundschule, Hauptschule, Realschule, Gymnasium, Gesamtschule, Öffentliche Verkehrsmittel
# Sonstiges
Heizungsart: Zentralheizung
Energieträger: Gas
Makleranfragen nicht erwünscht. Nach § 7 UWG sind unaufgeforderte Kontaktaufnahmen durch Makler ohne ausdrückliche Einwilligung des Empfängers verboten!
ohne-makler (OM) ist weder Anbieter noch Vermittler der Immobilie. OM betreibt eine Plattform für Immobilieneigentümer, die unter anderem die gleichzeitige Veröffentlichung einzelner Inserate auf mehreren Immobilienportalen ermöglicht. Die Inhalte dieser Inserate werden ausschließlich von Dritten verantwortet. Für die Richtigkeit, Vollständigkeit oder Rechtmäßigkeit der Angaben übernimmt OM keine Haftung. Hinweise auf mögliche Rechtsverstöße können jederzeit gemeldet werden und werden nach Prüfung umgehend bearbeitet.
# Energie
Energieausweis: Energieverbrauchsausweis
Energieverbrauch: 68 kWh/(m²*a)
Energieeffizienzklasse: B
Heizungsart: Zentralheizung
Wesentliche Energieträger: Gas
Anbieter-Objekt-ID: 425234














