Beschreibung
# Ausstattung
Fliesen
Bemerkungen:
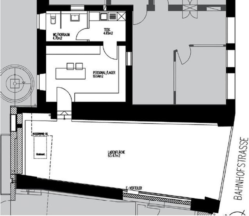
Das Ladengeschäft wurde zuletzt als Bekleidungsgeschäft genutzt. Einzelne Elemente sind noch eingebaut und können verwendet werden. Die sichtbaren Kabel im Verkaufsraum wurden für die demontierte Verkaufstheke verlegt. Renovierungs- oder Veränderungsmaßnahmen von Vermieterseite sind nicht vorgesehen. Eine dreistufige Treppe und eine Tür trennen die Ladenfläche zum Lager bzw. Personalraum. Dahinter befindet sich die Teeküche mit Spültisch und bildet gleichzeitig den Durchgang zum Personal-WC.
Die Glasfläche am Eingangsbereich zur Fußgängerzone erstreckt sich fast vollständig über die Vorderseite des Gebäudes der Bahnhofstraße 4. Die Glaseingangstüre ist manuell zu öffnen.
Das Klima-Wärmegerät wird mittels Strom betrieben. Zusammen mit dem Lichtstrom wurden in der Vergangenheit ungefährer 16.000 kW/h verbraucht. Bei einem geschätzten Strompreis von 0,35 €/kWh ergäben sich Kosten für Wärme-/Kälte- und Lichtstrom in Höhe von ca. 470,00 €/p.m. Wir weisen ausdrücklich darauf hin, dass diese Werte je nach Nutzung des Klima-/Wärmegeräts stark abweichen können.
# Weitere Angaben
– Verfügbar ab: nach Absprache
– Objektzustand: gepflegt
– Bodenbelag: Fliesen, Kunststoff
– Warmmiete: 1.355,00 €
– Heizkosten: 470,00 €
– Verkaufsfläche: ca. 63 m²
– Lagerfläche: ca. 29 m²
# Lagebeschreibung
Die Große Kreisstadt Sinsheim liegt im Norden von Baden-Württemberg, gehört zum Rhein-Neckar-Kreis und hat rund 37.000 Einwohner. Die Stadt ist ca. 30 km von Heidelberg, ca. 50 km von Mannheim und ca. 55 km von Ludwigshafen entfernt.
Sinsheim ist über die Bundesstraßen B39, B45 und B292 und die Autobahn A6 Richtung Mannheim und Heilbronn an das Umland angebunden. Die Stadt liegt an den Bahnstrecken Heidelberg – Sinsheim – Heilbronn sowie Sinsheim – Eppingen – Karlsruhe, ist an die S-Bahn angeschlossen und verfügt über ein Busnetz.
Infrastruktur (im Umkreis von 5 km):
Apotheke, Lebensmittel-Discount, Allgemeinmediziner, Kindergarten, Grundschule, Hauptschule, Realschule, Gymnasium, Gesamtschule, Öffentliche Verkehrsmittel
# Sonstiges
Heizungsart: Sonstiges (s. Text)
Energieträger: Strom
Die Stadt Sinsheim optiert hier aktuell nicht zur Umsatzsteuer.
Eine Wertsicherungsklausel ist vertraglich vorgesehen.
Die Vermietung kann zeitnah erfolgen, das Objekt steht derzeit leer.
Die von der Stadt Sinsheim avisierte Grundmietdauer beträgt mindestens 5 Jahre.
Bewerbung:
Sind Sie an einer Anmietung der Gewerbefläche interessiert, reichen Sie bitte Ihre Unterlagen bis spätestens 30.04.2026 bei der Stadt Sinsheim postalisch oder per E-Mail ein.
Bitte geben Sie bei Ihrer Bewerbung folgende Daten an:
Interessent (künftiger Mieter),
– Art und Beschreibung des Geschäftsbetriebs,
– Informationen über den künftigen Geschäftsbetrieb (Filiale/Franchise, Erweiterung oder neuer Standort für bestehenden Geschäftsbetrieb, Neugründung),
– avisierte Grundmietdauer
– geplante Zeitspanne zur Eröffnung ab Vertragsunterschrift
Rückfragen zum Mietangebot: E-Mail, Telefon 07261 404-310 (Herr Oesterreich) oder 07261 404-314 (Frau Blum)
Wir übernehmen keine Gewähr für die Richtigkeit und Vollständigkeit der Angaben zu diesem Exposé und machen darauf aufmerksam, dass jegliche Haftungsansprüche ausgeschlossen werden. Es handelt sich hier lediglich um Vorabinformationen. Verbindliche Unterlagen erhalten Sie gerne auf Ihre konkrete Nachfrage.
Stadt Sinsheim
Körperschaft des öffentlichen Rechtes
vertreten durch Oberbürgermeister Marco Siesing
Wilhelmstr. 14-18
74889 Sinsheim
Tel.: 07261 404-0
Fax: 07261 404-165
ohne-makler (OM) ist weder Anbieter noch Vermittler der Immobilie. OM betreibt eine Plattform für Immobilieneigentümer, die unter anderem die gleichzeitige Veröffentlichung einzelner Inserate auf mehreren Immobilienportalen ermöglicht. Die Inhalte dieser Inserate werden ausschließlich von Dritten verantwortet. Für die Richtigkeit, Vollständigkeit oder Rechtmäßigkeit der Angaben übernimmt OM keine Haftung. Hinweise auf mögliche Rechtsverstöße können jederzeit gemeldet werden und werden nach Prüfung umgehend bearbeitet.
# Energie
– Energieausweis: Energieverbrauchsausweis
– Endenergieverbrauch Strom: 66 kWh/(m²*a)
– Endenergieverbrauch Wärme: 141 kWh/(m²*a)
– Wesentliche Energieträger: Elektrisch
Anbieter-Objekt-ID: 440169











