Beschreibung
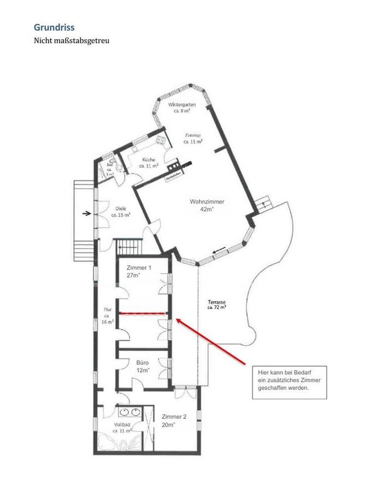
Durch Abtrennung vom Schlafzimmer 1 besteht die Möglichkeit ein zusätzlichen Raum im Schlaftrakt zu schaffen. Über einen ansprechenden Eingangsbereich, mit angrenzendem Gäste-WC, gelangen Sie in das Wohnzimmer mit Zugang zu der teilweise überdachten Süd-West-Terrasse. Dunkle Holzbalken, Downlights sowie der Kachelofen mit edlen Verzierungen verleihen diesem Bereich seinen besonderen Charme. Die Heizkörper im Wohn- Essbereich sind im Fußboden versenkt. Ein Durchbruch verbindet das Wohnzimmer mit dem Esszimmer, an welches sich der massiv erbaute Wintergarten anschließt – beide Räume präsentieren sich aufgrund der bodentiefen Sprossenfenster besonders lichtdurchflutet. Die hochwertige SieMatic- Einbauküche im Landhausstil ist mit sämtlichen technischen Geräten von Siemens, Neff ausgestattet und verfügt über genügend Raum zum Kochen mit der gesamten Familie.
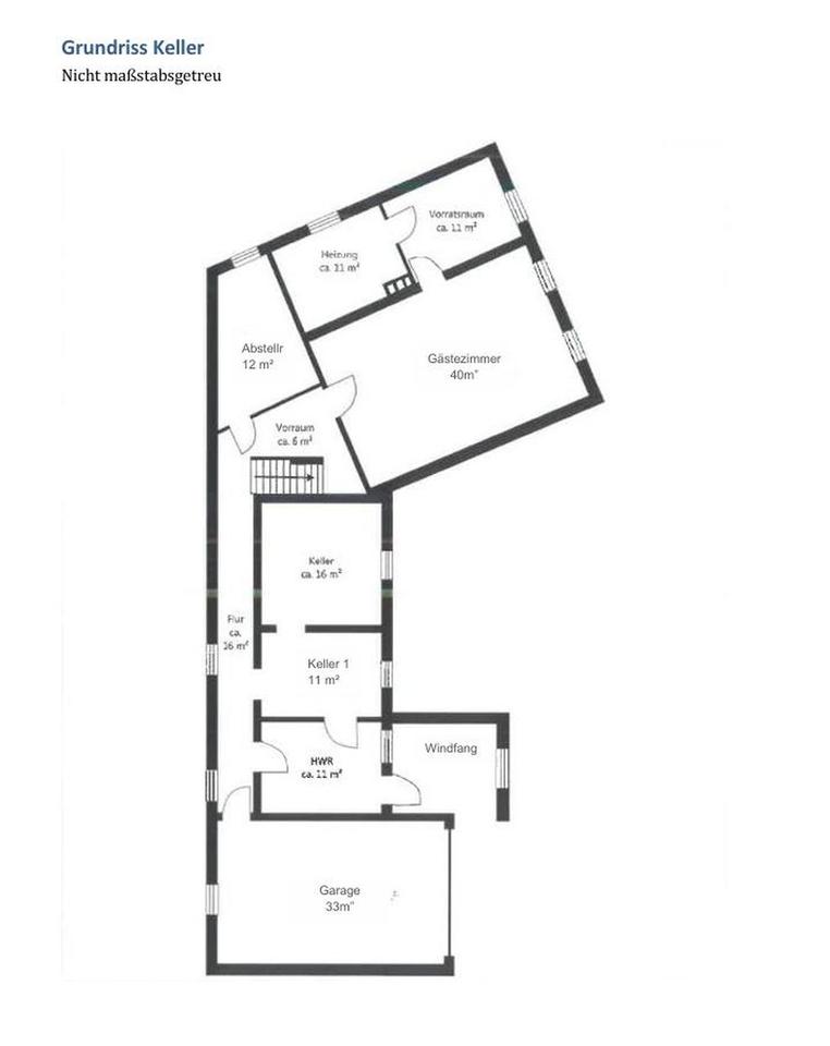
Der Schlaftrakt wird durch einen separaten Flur abgetrennt und schafft angenehme Privatsphäre. Alle Zimmer – eines davon mit Vollbad en Suite – verfügen über einen direkten Zugang zu der großen Terrasse. Ausreichend Abstellflächen befinden sich im gefliesten Kellergeschoss; einer der Räume, der mit Laminat ausgelegt ist, kann ebenfalls wohnlich oder auch als Büro, Gästezimmer genutzt werden. Abgerundet wird das Angebot durch 1 geräumigen Garagenstellplatz.
Letzte Modernisierungsarbeiten waren in den Jahren Jahr 2017-2021. Dachreinigung
inkl. Beschichtung, Kupfer Dachrinne, Dämmung des Dachboden, Malerarbeiten für
Mauerwerk und Unterschläge, etc. Die alte Ölheizung wurde 2017 gegen eine neue Heizungsanlage ausgetauscht, das Haus wird seitdem über das Nahwärmenetz der Energiegenossenschaft Steinburg eG versorgt.
Informationen zum Energieversorger finden Sie unter diesem Link: energiegenossenschaft-steinburg.de
# Ausstattung
Balkon, Terrasse, Garten, Keller, Vollbad, Duschbad, Einbauküche, Gäste-WC, Kamin, Laminat, Teppichboden, Fliesen
Bemerkungen:
Das Objekt wird inklusive Genossenschaftsanteile und Einrichtungsgegenstände (Küche,
Möbel, Tiefkühlschrank, Lampen, Bang & Olufsen TV, Orient Teppichen, Kleiderschränken,
Gartenmöbel, Markise, Gartengeräte) angeboten.
Der Gesamtpreis kann entsprechend aufgeteilt werden in:
• Kaufpreis Immobilie (grundsteuerpflichtig)
• Wert der beweglichen Gegenstände (nicht grunderwerbsteuerpflichtig)
Die genaue Aufstellung der Möbel, Gartengeräte und ihres Zeitwerts kann bei Kaufinteresse gemeinsam abgestimmt und separat ausgewiesen werden. Wert der Genossenschaftsanteile und Einrichtungsgegenstände beträgt ca. 40.000€, auf die keine Grunderwerbsteuer anfällt.
# Weitere Angaben
Separate WCs: 1
Verfügbar ab: nach Absprache
Objektzustand: modernisiert
Bodenbelag: Fliesen, Teppich, Laminat
Grundstücksfläche: ca. 878 m²
# Lagebeschreibung
Mollhagen gehört zur Gemeinde Steinburg, die aus drei Ortschaften besteht, wobei
Mollhagen den Ortskern bildet. Das gut erreichbare Dorf liegt nordöstlich von Hamburg und südlich von Bad Oldesloe. Das ruhige Dorf zeichnet sich besonders durch seine schöne Landschaft aus. Bäche, Wiesen und Felder sowie die „Pflasterstraße mit Sommerweg“ und die „Dänenbrücke“ laden zu Spaziergängen und Fahrradtouren ein.
Für sportliche Aktivitäten bietet der TSV Mollhagen ein breites Angebot wie Badminton,
Tennis, Volleyball, Tischtennis, Judo, Yoga, Zumba und Gymnastik. Zusätzlich gibt es im
Nachbardorf den SV Eichede, der besonders durch seine erfolgreiche Fußballabteilung
bekannt ist und weitere Sportarten wie Handball und Tischtennis anbietet. Für Reitfreunde bietet der Reitverein Mollhagen e. V. ein breites Angebot.
Mollhagen verfügt über eine hervorragende Infrastruktur für Familien: In wenigen
Gehminuten erreichen Sie verschiedene Arztpraxen, eine Grundschule und einen
Kindergarten (Entfernung ca. 800 m). Bis Ende 2026 soll ein neuer Supermarkt
entstehen ( EDEKA im Gespräch ). Weiterführende Schulen sind bequem per Schulbus erreichbar. Zahlreiche Seen und Wälder in der Umgebung – darunter der Lütjensee, der Beimoorwald und der Trittauer Wald – laden zu Freizeit und Erholung ein.
Die Buslinie verbindet Mollhagen mit Ahrensburg und Bargteheide. Von Ahrensburg
erreichen Sie in etwa 20 Minuten die Hamburger Innenstadt. Die nahegelegenen
Autobahnen A1 und A21 bieten eine sehr gute Anbindung. Der Hamburger Flughafen
ist in ca. 45 Minuten erreichbar.
Infrastruktur (im Umkreis von 5 km):
Apotheke, Lebensmittel-Discount, Allgemeinmediziner, Kindergarten, Grundschule
# Sonstiges
Heizungsart: Sonstiges (s. Text)
Energieträger: Fernwärme
Makleranfragen nicht erwünscht. Nach § 7 UWG sind unaufgeforderte Kontaktaufnahmen durch Makler ohne ausdrückliche Einwilligung des Empfängers verboten!
Sonstige Unterlagen:
– https://www.ohne-makler.net/immobilie/file/1591758.pdf (Energieausweis Januar 2026)
Makleranfragen nicht erwünscht. Nach § 7 UWG sind unaufgeforderte Kontaktaufnahmen durch Makler ohne ausdrückliche Einwilligung des Empfängers verboten!
ohne-makler (OM) ist weder Anbieter noch Vermittler der Immobilie. OM betreibt eine Plattform für Immobilieneigentümer, die unter anderem die gleichzeitige Veröffentlichung einzelner Inserate auf mehreren Immobilienportalen ermöglicht. Die Inhalte dieser Inserate werden ausschließlich von Dritten verantwortet. Für die Richtigkeit, Vollständigkeit oder Rechtmäßigkeit der Angaben übernimmt OM keine Haftung. Hinweise auf mögliche Rechtsverstöße können jederzeit gemeldet werden und werden nach Prüfung umgehend bearbeitet.
# Energie
Energieausweis: Energiebedarfsausweis
Endenergiebedarf: 243 kWh/(m²*a)
Energieeffizienzklasse: G
Wesentliche Energieträger: Fernwärme
Anbieter-Objekt-ID: 415557











































