Beschreibung
Die rund 288 m² große Erdgeschossfläche in einem gepflegten Wohn- und Geschäftshaus (Bj. 1996, modernisiert 2019) überzeugt durch offene, lichtdurchflutete Räume und ein modernes Ambiente. Ob Praxis, Designstudio, Showroom oder Agentur – hier entsteht Raum für Ideen, Begegnung und Wirkung.
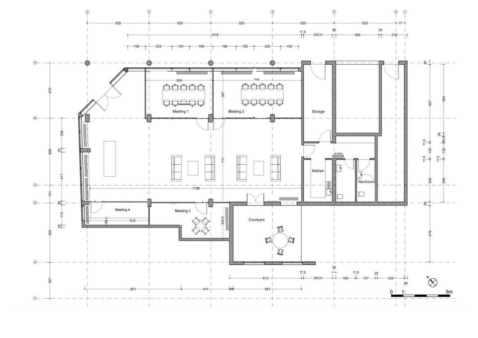
Die fünf großzügigen Räume lassen sich flexibel gestalten – ob offen und kommunikativ oder diskret abgetrennt für vertrauliche Beratungsgespräche. Ein stilvoller Empfangsbereich mit Tresen, eine voll ausgestattete Einbauküche sowie moderne Sanitäranlagen (inkl. Gäste-WC) sind bereits integriert und machen die Fläche sofort einsatzbereit.
Dank barrierefreiem Zugang eignet sich die Immobilie ideal für Praxis- oder Kundenbetrieb. Ruhige Pausen oder kleine Team-Sessions lassen sich wunderbar im geschützten Innenhof genießen.
Kurz gesagt: eine Fläche, die Funktionalität und Stil perfekt verbindet – bereit, Ihre Vision sichtbar zu machen.
# Ausstattung
Terrasse, Garten, Einbauküche, Gäste-WC, Barrierefrei, Sonstiges (s. Text)
Bemerkungen:
✨ Vielseitig nutzbar als Praxis, Showroom, Galerie, Studio oder Büro
✨ Offener, moderner Grundriss – flexibel teilbar
✨ Empfangsbereich mit Tresen
✨ Hochwertige Einbauküche
✨ Gäste-WC & moderne Sanitäranlagen
✨ Barrierefreier Zugang
✨ Abstellraum für Equipment oder Akten
✨ Energieeffizienzklasse B (Fernwärme)
✨ Nutzung des ruhigen Innenhofs
# Weitere Angaben
Separate WCs: 1
Verfügbar ab: sofort
Objektzustand: neuwertig
Warmmiete: 7.900,00 €
# Lagebeschreibung
Die Adresse Danziger Straße 211 steht für das, was Prenzlauer Berg so einzigartig macht: urban, kreativ, lebendig. In direkter Umgebung finden sich trendige Cafés, kleine Boutiquen, Kunst- und Kulturangebote – ein Umfeld, das inspiriert und Ihre Kunden, Patienten oder Besucher gleichermaßen anspricht.
– Tram M10 direkt vor der Tür
– S-Bahnhof Landsberger Allee ca. 10 Gehminuten entfernt
– 20 Minuten zum Berliner Hauptbahnhof
– 40 Minuten zum Flughafen BER
Und für die Mittagspause oder ein kurzes Durchatmen: der Volkspark Friedrichshain ist nur wenige Schritte entfernt.
Infrastruktur (im Umkreis von 5 km):
Lebensmittel-Discount, Kindergarten, Gesamtschule
# Sonstiges
Energieträger: Fernwärme
Makleranfragen nicht erwünscht. Nach § 7 UWG sind unaufgeforderte Kontaktaufnahmen durch Makler ohne ausdrückliche Einwilligung des Empfängers verboten!
ohne-makler (OM) ist weder Anbieter noch Vermittler der Immobilie. OM betreibt eine Plattform für Immobilieneigentümer, die unter anderem die gleichzeitige Veröffentlichung einzelner Inserate auf mehreren Immobilienportalen ermöglicht. Die Inhalte dieser Inserate werden ausschließlich von Dritten verantwortet. Für die Richtigkeit, Vollständigkeit oder Rechtmäßigkeit der Angaben übernimmt OM keine Haftung. Hinweise auf mögliche Rechtsverstöße können jederzeit gemeldet werden und werden nach Prüfung umgehend bearbeitet.
# Energie
Energieausweis: Energieverbrauchsausweis
Endenergieverbrauch Strom: 509 kWh/(m²*a)
Endenergieverbrauch Wärme: 195 kWh/(m²*a)
Wesentliche Energieträger: Fernwärme
Anbieter-Objekt-ID: 393995



















