Beschreibung
Der Garten ist perfekt angelegt und sehr gepflegt. Dort befindet sich ein Gartenhaus und ein Gewächshaus.
# Ausstattung
Balkon, Terrasse, Garten, Keller, Duschbad, Einbauküche, Gäste-WC, Kamin, Teppichboden, Fliesen, Sonstiges (s. Text)
# Weitere Angaben
Separate WCs: 1
Verfügbar ab: nach Absprache
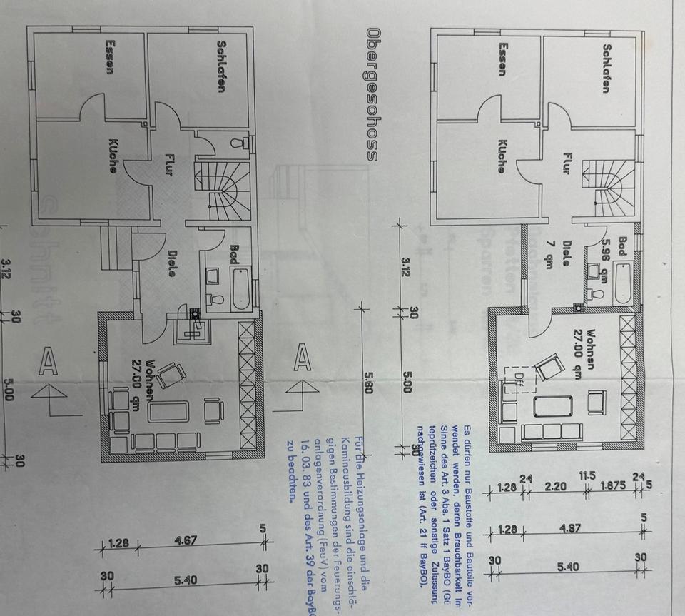
Objektzustand: renovierungsbedürftig
Bodenbelag: Fliesen, Teppich, Kunststoff
Grundstücksfläche: ca. 624 m²
# Lagebeschreibung
Einkaufsmöglichkeiten sind fußläufig in 5 Minuten entfernt, ebenso die gute Anbindung an den öffentlichen Nahverkehr (BOB), die ebenso in 10 Min zu Fuß erreichbar ist. Schule, Kindergarten sowie das Krankenhaus Agatharied sind in unmittelbarer Nähe.
Die ruhige und gut vernetzte Lage macht Hausham zu einem idealen Standort für all jene, die ländliches Leben schätzen, ohne auf eine
gute Infrastruktur verzichten zu müssen.
Für Familien bietet Hausham eine besonders attraktive Wohnlage, da die Umgebung viele Freizeitmöglichkeiten bietet, wie Wander- und Radwege. Der Schliersee und der Tegernsee sind in 10 Min. bzw. 15 Min. mit dem Auto erreichbar. Ebenso für Pendler ist der Ort gut angebunden an das Nahverkehrsnetz und auch zur Autobahn A8, von dort gelangt man schnell überall hin.
Infrastruktur (im Umkreis von 5 km):
Apotheke, Lebensmittel-Discount, Allgemeinmediziner, Kindergarten, Grundschule, Öffentliche Verkehrsmittel
# Sonstiges
Heizungsart: Zentralheizung
Energieträger: Öl
Makleranfragen nicht erwünscht. Nach § 7 UWG sind unaufgeforderte Kontaktaufnahmen durch Makler ohne ausdrückliche Einwilligung des Empfängers verboten!
ohne-makler (OM) ist weder Anbieter noch Vermittler der Immobilie. OM betreibt eine Plattform für Immobilieneigentümer, die unter anderem die gleichzeitige Veröffentlichung einzelner Inserate auf mehreren Immobilienportalen ermöglicht. Die Inhalte dieser Inserate werden ausschließlich von Dritten verantwortet. Für die Richtigkeit, Vollständigkeit oder Rechtmäßigkeit der Angaben übernimmt OM keine Haftung. Hinweise auf mögliche Rechtsverstöße können jederzeit gemeldet werden und werden nach Prüfung umgehend bearbeitet.
# Energie
Energieausweis: Energieverbrauchsausweis
Energieverbrauch: 90 kWh/(m²*a)
Energieeffizienzklasse: C
Heizungsart: Zentralheizung
Wesentliche Energieträger: Öl
Anbieter-Objekt-ID: 429782
















