Beschreibung
Sie brauchen Platz? Dann ist diese Immobilie genau richtig für Sie. Eine Nutzung des Objekts ist auch in Mehrgenerationen oder als Ferienobjekt (auch teilweise) denkbar. Die Vermietung einer Einliegerwohnung bietet sich ebenfalls an, da sich der Wohnraum in zwei Einheiten aufteilen lässt. Über die Jahre wurden immer wieder Modernisierungen (Fenster, Fußböden, Heizung, Bad u. a.) durchgeführt. Überwiegend sind die Zimmer mit Natur-Holzdielen oder Laminat versehen, die Flure im EG sind gefliest.
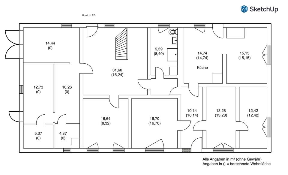
Sie betreten das Haus über die Nordseite in eine große Diele mit Garderobe und Klönschnack-Sitzecke. Angrenzend befinden sich der Hauswirtschaftsraum, der viel Platz für Ihre Vorräte und Kühlgeräte bietet, Ihre Garage und der abteilbare Wohnbereich des Erdgeschosses. Außerdem gelangen Sie von hier aus über eine Holztreppe in das Obergeschoß. Neben der Garage finden Sie eine kleine Haus- und Gartenwerkstatt und nochmals Lagermöglichkeiten sowie den Heizungsraum.
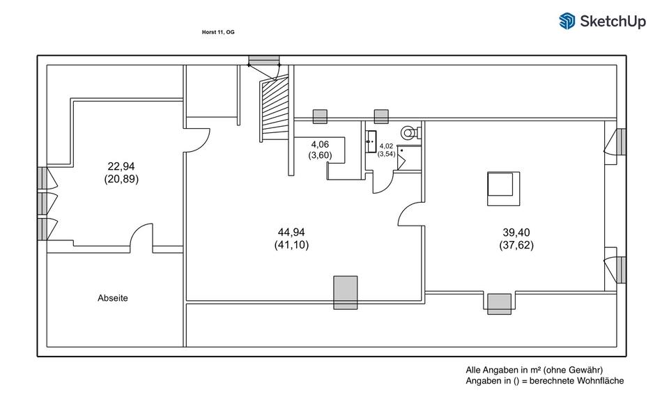
In das Obergeschoß kommend, betreten Sie ein ca. 40 m² großes Studio, welches Ihr neues Wohnzimmer sein könnte. Vom Studio ausgehend erreichen Sie das Zimmer Eiderblick zur Ostseite und ein weiteres Zimmer zur Westseite, welches sich als Schlafzimmer anbietet. Außerdem befinden sich ein kleines Duschbad und eine kleine offene Küche im OG. Das Dach mit Spitzboden wurde 2004 saniert und vollständig gedämmt.
Im Erdgeschoß Süd-Ost-Lage befinden sich die Küche mit neuer EBK inkl. Gerätschaften nebst Esszimmer. Über den Südflur erreichen Sie das Duschbad mit Waschmaschine und Trockner sowie 3 weitere Zimmer, die zuletzt als Gästezimmer und Büro genutzt wurden. Das Erdgeschoss hat einen separaten Hauseingang von der Südseite, der auch zur Terrasse, dem Pavillon und dem großen Garten führt.
Heiz- und Nebenkosten
=================
Nebenkosten p.m.: ~ 185 €
Heizkosten p.m.: ~ 225 €
Anm.: In den Nebenkosten sind Grundsteuer, Gebäudeversicherung, Wasser, Eider-Treene-Verband, Abfall, Schornsteinfeger und Heizungswartung einbezogen. Die Kalkulation der Heizkosten basiert auf einer dreijährigen „rund um die Uhr“-Beheizung für die Jahre 2023-2025 und stellt sich deutlich freundlicher dar, als der gesetzlich berechnete Energiebedarfsausweis vom 05.09.2021. Sie übernehmen hier ein Haus mit ehrlicher Substanz und überschaubaren Verbrauchskosten.
Dank Highspeed-Internet verbinden Sie Beruf und Freizeit hier in einer einzigartigen Naturumgebung.
Kontaktaufnahme
============
Bei Interesse teilen Sie uns bitte neben Ihren Fragen und Wünschen auch Ihren vollständigen Namen, Anschrift sowie Ihre E-Mail-Adresse oder Telefonnummer per Kontaktformular mit. Anonyme Anfragen können wir leider nicht berücksichtigen. Besichtigungen auf eigene Faust ohne Anmeldung sind aus Rücksicht auf die Bewohner ausdrücklich unerwünscht.
# Ausstattung
Terrasse, Garten, Duschbad, Einbauküche, Gäste-WC, Laminat, Fliesen, Sonstiges (s. Text)
Bemerkungen:
– Glasfaseranschluss (aktiv)
– moderne Einbauküche aus 2022
– Doppelcarport (~2,30m Höhe)
– Einzelgarage
– 3 Stellplätze vor der Garage
– Grundstück ist voll erschlossen
– Heizungsanlage und tlw. Heizkörper 2023 erneuert, Brennwertkessel Buderus Logano plus KB195i mit App-Steuerung
– Pavillon im Garten für Regentage
# Weitere Angaben
– Separate WCs: 1
– Verfügbar ab: sofort
– Objektzustand: gepflegt
– Bodenbelag: Fliesen, Laminat, Kunststoff
– Grundstücksfläche: ca. 1399 m²
# Lagebeschreibung
Der Ortsteil Horst liegt an der Eider im begehrten sogenannten Omega-Herz von Dithmarschen, er besteht lediglich aus ca. 2 Dutzend Häusern, hier klönt man auf der Dorfstraße. Kinder genießen die frische Luft und Freiheit, ein Schulbus bringt sie sicher nach Hennstedt und zurück. Das weitere Umland ist neben der Eider landwirtschaftlich von schier unendlichen Weiden und Feldern geprägt.
Einkaufsmöglichkeiten (Supermarkt und Discounter), eine Tankstelle, Post, Packstation oder Allgemeinmediziner sowie eine Apotheke finden Sie ebenfalls im 4km entfernten Hennstedt. Die Gemeinde bietet für ältere Anwohner gegen einen geringen Obolus Shuttle Service für Arztbesuche oder Einkäufe.
Sie suchen einen Liegeplatz für Ihr (zukünftiges) Boot? Im Ortsteil und im Nachbarort befinden sich Liegeplätze an den Marinas der Eider.
Starten Sie Ihre Ausflüge in Dithmarschen direkt ab der Haustür als ausführliche Spaziergänge oder mit dem Rad bis zur Nordsee. Mit dem Auto sind Sie in 20 Minuten am Eidersperrwerk oder in Friedrichstadt („Klein-Amsterdam“) bzw. in 45 Minuten in Sankt Peter-Ording.
Infrastruktur (im Umkreis von 5 km):
Apotheke, Lebensmittel-Discount, Allgemeinmediziner, Kindergarten, Grundschule, Gesamtschule, Öffentliche Verkehrsmittel
# Sonstiges
Heizungsart: Zentralheizung
Energieträger: Öl
Makleranfragen nicht erwünscht. Nach § 7 UWG sind unaufgeforderte Kontaktaufnahmen durch Makler ohne ausdrückliche Einwilligung des Empfängers verboten!
ohne-makler (OM) ist weder Anbieter noch Vermittler der Immobilie. OM betreibt eine Plattform für Immobilieneigentümer, die unter anderem die gleichzeitige Veröffentlichung einzelner Inserate auf mehreren Immobilienportalen ermöglicht. Die Inhalte dieser Inserate werden ausschließlich von Dritten verantwortet. Für die Richtigkeit, Vollständigkeit oder Rechtmäßigkeit der Angaben übernimmt OM keine Haftung. Hinweise auf mögliche Rechtsverstöße können jederzeit gemeldet werden und werden nach Prüfung umgehend bearbeitet.
# Energie
– Energieausweis: Energiebedarfsausweis
– Endenergiebedarf: 184 kWh/(m²*a)
– Energieeffizienzklasse: F
– Heizungsart: Zentralheizung
– Wesentliche Energieträger: Öl
Anbieter-Objekt-ID: 434901































