Beschreibung
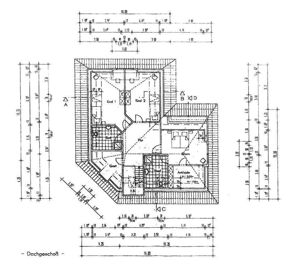
Das Haus überzeugt durch eine durchdachte Raumaufteilung mit insgesamt 7 Zimmern, die flexibel als Wohn-, Schlaf-, Arbeits- oder Hobbyräume genutzt werden können. Der helle, offene Wohnbereich mit Kaminofen schafft eine angenehme Wohnatmosphäre und bildet das Herzstück des Hauses.
Die Immobilie wurde im Jahr 2000 erbaut und kontinuierlich gepflegt. Besonders hervorzuheben ist die moderne Wärmepumpe (2022), die für eine energieeffiziente und zukunftssichere Beheizung sorgt.
Das ca. 1.200 m² große Grundstück bietet viel Platz für Kinder, Freizeit und Erholung. Die großzügige Terrasse (2023 neu angelegt) lädt zum Entspannen ein.
Sehr gute Energieeffizienz (Klasse A) mit einem Endenergiebedarf von nur 31,23 kWh/(m²·a).
Ein ideales Zuhause für Familien, die viel Platz, Ruhe und Wohnqualität suchen.
# Ausstattung
Terrasse, Garten, Einbauküche, Gäste-WC, Kamin, Parkett, Fliesen
Bemerkungen:
– ca. 241 m² Wohnfläche
– ca. 1.200 m² Grundstück
– 7 Zimmer
– moderne Wärmepumpe (2022)
– Energieeffizienzklasse A
– Endenergiebedarf: 31,23 kWh/(m²·a)
– großzügige Terrasse (2023 neu angelegt)
– Doppelgarage mit elektrischem Tor
– zusätzlicher Werkstatt-/Nutzbereich (ca. 80 m²)
– Kaminofen
– mehrere Stellplätze
– gepflegter Zustand
# Weitere Angaben
– Separate WCs: 1
– Verfügbar ab: nach Absprache
– Objektzustand: gepflegt
– Bodenbelag: Fliesen, Parkett
– Grundstücksfläche: ca. 1200 m²
# Lagebeschreibung
Die Immobilie befindet sich in Achtrup, einer ruhigen und familienfreundlichen Gemeinde in Nordfriesland, unweit der dänischen Grenze.
Einkaufsmöglichkeiten, Schulen und Kindergärten sind in der Nähe vorhanden. Der nahegelegene Ort Leck bietet eine sehr gute Infrastruktur mit weiteren Einkaufsmöglichkeiten, Ärzten und Schulen.
Auch die Städte Niebüll und Flensburg sind schnell erreichbar. Flensburg liegt ca. 20 Minuten entfernt und bietet ein breites Angebot an Freizeit-, Kultur- und Einkaufsmöglichkeiten.
Die Lage überzeugt durch eine ideale Kombination aus naturnaher Ruhe und guter Anbindung.
Infrastruktur (im Umkreis von 5 km):
Apotheke, Lebensmittel-Discount, Kindergarten, Grundschule, Öffentliche Verkehrsmittel
# Sonstiges
Heizungsart: Fußbodenheizung
Energieträger: Strom
Das Haus ist ab sofort verfügbar und wird provisionsfrei direkt vom Eigentümer verkauft.
Ein Energieausweis liegt vor.
Besichtigungen sind nach Vereinbarung möglich.
Makleranfragen nicht erwünscht. Nach § 7 UWG sind unaufgeforderte Kontaktaufnahmen durch Makler ohne ausdrückliche Einwilligung des Empfängers verboten!
ohne-makler (OM) ist weder Anbieter noch Vermittler der Immobilie. OM betreibt eine Plattform für Immobilieneigentümer, die unter anderem die gleichzeitige Veröffentlichung einzelner Inserate auf mehreren Immobilienportalen ermöglicht. Die Inhalte dieser Inserate werden ausschließlich von Dritten verantwortet. Für die Richtigkeit, Vollständigkeit oder Rechtmäßigkeit der Angaben übernimmt OM keine Haftung. Hinweise auf mögliche Rechtsverstöße können jederzeit gemeldet werden und werden nach Prüfung umgehend bearbeitet.
# Energie
– Energieausweis: Energiebedarfsausweis
– Endenergiebedarf: 31 kWh/(m²*a)
– Energieeffizienzklasse: A
– Heizungsart: Fußbodenheizung
– Wesentliche Energieträger: Elektrisch
Anbieter-Objekt-ID: 443410














