Beschreibung
Das RMH bietet Ihnen ein großzügiges Wohnen in 5 Zimmern:
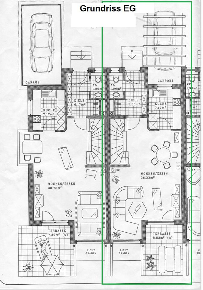
o Erdgeschoss mit Diele, Gäste-WC, Küche und großem Wohn-Esszimmer,
o 1. OG geräumiges Bad mit großer Wanne + Dusche, 1 Schlafzimmer,
2 große Kinderzimmer (eines ist mit Balkon),
o Dachgeschoss mit hellem, großen Studio mit 3 Fenstern, Anschlüsse für eine Dusche +
WC bzw. Küche sind im Boden an geeigneter Stelle vorhanden.
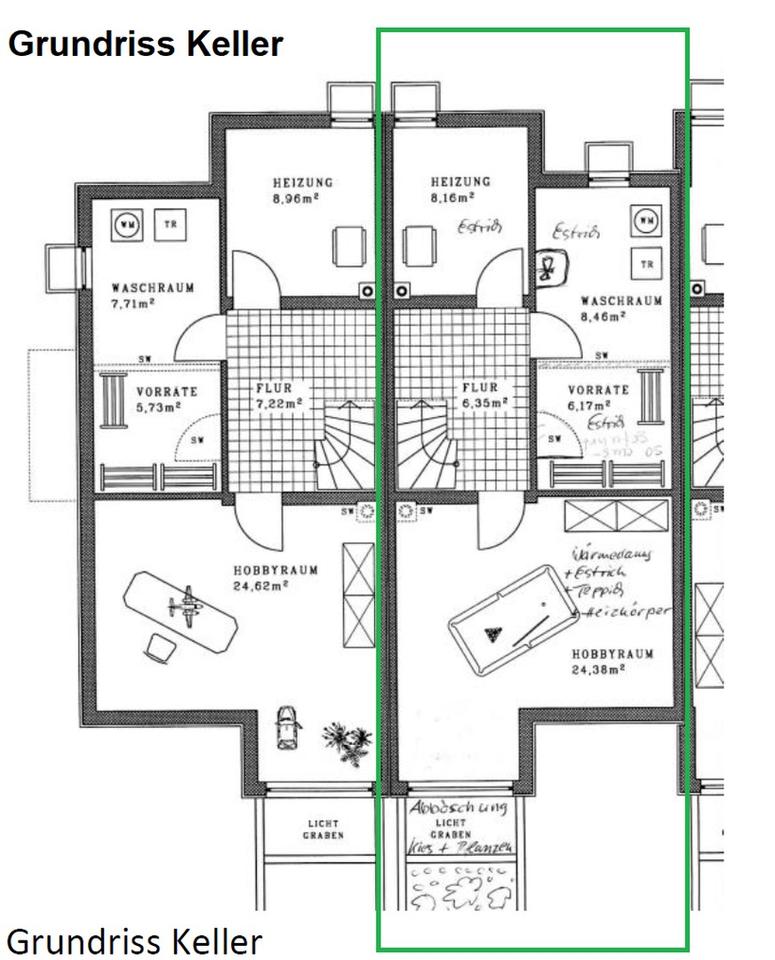
o Keller mit Heizungs- und Waschraum, Lagerraum und wohnraummäßig ausgebautem
Hobbyraum mit 2 großen Fenstern und Lichtgraben.
o SW-Balkon mit Glasüberdachung.
o Eingangsbereich mit Glasüberdachung.
Es gibt zwei sehr massiv gebaute, gepflegte Holz-Carports:
o Einer ist direkt am Haus angebaut und hagelsicher mit
Verbundglas-Eindeckung ausgeführt, sogar passend für einen Bus in
extra-Langversion bis ca. 2,20m Höhe und im Kaufpreis inbegriffen.
o Der zweite Carport mit Stellplatz ist direkt gegenüber des
Eingangsbereichs und kann für 19 000.- € erworben werden.
-> Aufgrund des Baujahres 1998 ist das Haus – im Gegensatz zu älteren Häusern –
garantiert ohne Altlasten!
-> Der zeitgemäße Grundriss ist vielseitig nutzbar.
Die gesamte Wohnanlage sehen Sie im Freiflächengestaltungsplan.
Die Immobilie ist erschließungsbeitrags- u. kostenerstattungsbetragsfrei.
Für die Finanzierung: Der Gesamt-Beitrag in die Eigentümerkasse beträgt pro Jahr nur 230 € inkl. Rücklagenbildung.
# Ausstattung
Balkon, Terrasse, Garten, Keller, Vollbad, Duschbad, Gäste-WC, Kamin, Parkett, Teppichboden, Fliesen, Sonstiges (s. Text)
Bemerkungen:
Ausstattung:
– Großer Wohn- und Essbereich mit bodentiefen Fenstern,
– Küche mit großem Fenster,
– geräumiges Badezimmer mit Duschkabine und großer Badewanne,
– separates Gäste-WC mit Fenster,
– hochwertiger Echtholz-Parkettboden (Kanadischer Ahorn) im
Wohn-Essbereich und DG-Studio,
– Süd-West-Balkon mit Verbundglas-Überdachung,
– Diele, Küche. WC, Bad und Balkon haben Fliesenboden,
– Bad und WC sind raumhoch gefliest,
– Kellerboden ist teilweise gefliest + Teppich im Hobbyraum.
– Hobbyraum, Heizkörper, 2 große Fenster und Lichtgraben.
– Alle Fenster im EG und 1.OG haben Rollläden.
– Das DG ist komplett mit Natur-Rigipsplatten verkleidet.
– Alle Blechteile am Dach sind aus Kupferblech.
– Schneelawinensicherung am Dach (Kupfer)
– Alle Metallteile des Carports am Haus sind aus nicht-rostendem Stahl.
– Alle Wasserleitungen sind ebenfalls aus nicht-rostendem Stahl.
– Netzwerkkabel-Anschlussdosen befinden sich in fast allen
Räumen inkl. im Hobbyraum.
– Zudem gibt es 3 Anschlussdosen für Festnetztelefon.
Heizungsanlage:
– Im Keller ist seit Sept. 2024 eine neue Gas-Brennwert-Heizanlage
für Heizkreis- und Brauchwasser mit Außensteuerung installiert.
– Die Heizung arbeitet Raumluft-unabhängig, d.h. das Fenster im
Heizungsraum kann geschlossen bleiben (wichtig im Winter).
– Ein Hybridbetrieb, z. B. mit Luft-Wärmepumpe, etc., ist durch
Modulnachrüstung (Huckepackmodul) möglich.
– Der Brennwertkessel ist geeignet für zukünftigen 20 %
Wasserstoffzusatz im Erdgas.
– 5 Jahre Systemgarantie durch Wahl der Komponenten und Wartung.
– Zentralheizung mit Raumthermostatventilen,
– Einbau eines 2. Kamins (z.B. für einen Schwedenofen) ist in den
Betondecken vorgesehen!
# Weitere Angaben
– Separate WCs: 1
– Verfügbar ab: sofort
– Objektzustand: gepflegt
– Bodenbelag: Fliesen, Parkett, Teppich
– Grundstücksfläche: ca. 302 m²
# Lagebeschreibung
Der Ort liegt im sogenannten 5-Seen-Land und ist direkt umrahmt von 3 Seen und Wäldern und ein idealer Wohnort für Familien, Naturliebhaber und Freizeitsportler (Schwimmen, Joggen, Wandern, Montainbiken, Windsurfen, Segeln, Stand-up, etc.). Im Umfeld liegen weiter der Weßlinger und der Ammersee – in 15 Min. schnell zu erreichen.
Hechendorf ist ein Ortsteil von 82229 Seefeld mit insgesamt ca. 7600 Einwohnern und liegt am Hechendorfer Höhenrücken mit 615 m ü. N.N .
Das Haus befindet sich in absolut ruhiger Lage inmitten von viel Grün. Das Haus grenzt auch nicht direkt an eine Straße (siehe Freiflächengestaltungsplan). Im größeren Umfeld besteht zudem eine Zone 30.
Die 13 Reihenhäuser der Wohnanlage stehen auf einer reichlich begrünten, großzügigen Gesamtfläche. Zur Gemeinschaftsfläche gehört ein kleiner Spielplatz und ein eingezäunter Weiher. Jeder Eigentümer besitzt 1/13-tel Anteil an der Gemeinschaftsfläche.
Die Giebelausrichtung ist grob gesagt NO bzw. SW, genau ist es ONO und WSW., das heißt etwas mehr Morgen- und mehr Abendsonne.
-> Vom Gaubenfenster im DG aus genießen Sie einen außergewöhnlichen Panoramablick nach Süden auf das Kloster Andechs und die Alpenkette mit der Zugspitze (siehe Foto).
-> der Wald ist praktisch vor der Haustüre (siehe Foto);
Mit diesen Pluspunkten und der guten Anbindung nach München ist das Haus ideal für ein angenehmes, entspanntes Leben. Aufgrund der perfekten Lage ist diese Immobilie auch sehr gut vermietbar – als Geldanlage für Investoren.
Infrastruktur (im Umkreis von 5 km):
Apotheke, Lebensmittel-Discount, Allgemeinmediziner, Kindergarten, Grundschule, Hauptschule, Realschule, Gymnasium, Gesamtschule, Öffentliche Verkehrsmittel
# Sonstiges
Heizungsart: Zentralheizung
Energieträger: Gas
Infrastruktur:
München erreichen Sie schnell über die Lindauer Autobahn (Anschlussstellen Inning, Wörthsee oder Gilching). Zum S-Bahnhof sind es mit dem Rad ca. 5 Minuten. Der Ort bietet Ihnen Einkaufsmöglichkeit mit Imbiss und Café, Apotheke, Ärzte inkl. Zahnärzte und zwei Gaststätten. Darüber hinaus gibt es einen Kindergarten an der Schule, ein modernes, großes Kinderhaus mit Kindergarten und Kinderkrippe sowie eine Grundschule, Sportvereine und ein Fitnessstudio.
In 3 Minuten sind Sie zu Fuß an der Haltestelle für Busse in verschiedene Richtungen. Die Realschule und das Gymnasium im nahen Herrsching (6km) sind ebenfalls mit Fahrrad, Bus oder S-Bahn schnell erreichbar.
Für Inlineskaten / Skateboard und Basketball bietet der Ort einen großen Sportplatz und einen weiteren an der Schule. Wochenmarkt und Bürgerstadel für Veranstaltungen runden das Angebot ab.
Hier wohnen Sie mitten im Urlaubsland umgeben von Wäldern. Den Pilsensee erreichen Sie zu Fuß in wenigen Minuten. Zudem sind der Wörthsee (Paradieswinkel), das Erholungsgelände Oberndorf am Wörthsee mit Gaststätte und der Ammersee im direkten Umfeld. Es gibt viele Möglichkeiten für Wandern, Baden, Windsurfen, Segeln, Stand-up, Moutainbiken.
Weitere umfangreiche Infrastruktur gibt es in 2 km Entfernung mit dem Rad gut erreichbar: weitere Schule, einen großen Supermarkt, Metzgerei mit Gaststätte, drei Bäcker, Pizzeria, zwei Cafés, Getränkemärkte, Apotheke, Ärzte und Zahnärzte, Fitnessstudios sowie diverse Geschäfte und ein Klinikum. Ein weiteres Klinikum ist in 6km Entfernung in Herrsching.
Das Schloss Seefeld mit Gaststätte und Biergarten, mit Kino Breitwand und interessanten Kulturveranstaltungen lädt Sie für die Freizeit ein. Dort beginnt auch der romantische König-Ludwig-Weg, der Sie vom Schloss Seefeld zum Kloster Andechs (mit Biergarten) führt.
Arbeiten, Wohnen, Familie und eine aktive oder entspannte Freizeit sind hier in der absolut ruhigen Lage sehr gut in Einklang zu bringen.
Ein ausführlicheres Exposé erhalten Sie gerne auf Anfrage per E-Mail.
Sonstige Unterlagen:
– https://www.ohne-makler.net/immobilie/file/1583452.pdf (Energieausweis)
Makleranfragen nicht erwünscht. Nach § 7 UWG sind unaufgeforderte Kontaktaufnahmen durch Makler ohne ausdrückliche Einwilligung des Empfängers verboten!
ohne-makler (OM) ist weder Anbieter noch Vermittler der Immobilie. OM betreibt eine Plattform für Immobilieneigentümer, die unter anderem die gleichzeitige Veröffentlichung einzelner Inserate auf mehreren Immobilienportalen ermöglicht. Die Inhalte dieser Inserate werden ausschließlich von Dritten verantwortet. Für die Richtigkeit, Vollständigkeit oder Rechtmäßigkeit der Angaben übernimmt OM keine Haftung. Hinweise auf mögliche Rechtsverstöße können jederzeit gemeldet werden und werden nach Prüfung umgehend bearbeitet.
# Energie
– Energieausweis: Energieverbrauchsausweis
– Energieverbrauch: 61 kWh/(m²*a)
– Energieeffizienzklasse: B
– Heizungsart: Zentralheizung
– Wesentliche Energieträger: Gas
Anbieter-Objekt-ID: 403448


































