Beschreibung
In ruhiger Lage von Stapel (Schleswig-Holstein) entsteht dieses hochwertig gebaute Reihenmittelhaus – ideal für alle, die komfortables, barrierearmes Wohnen mit moderner Technik und einem pflegeleichten Grundstück verbinden möchten.
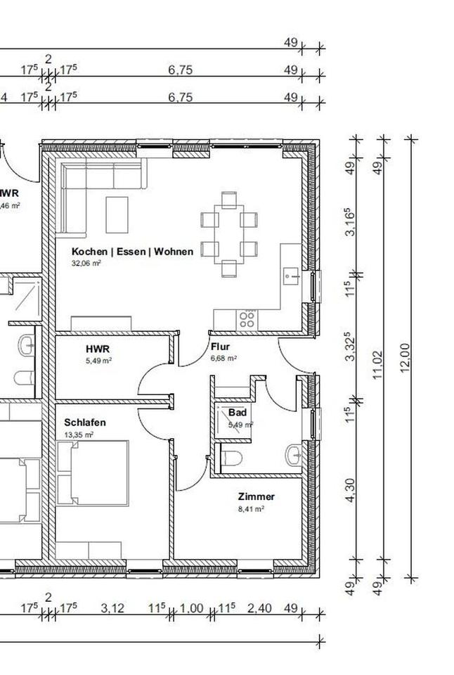
Auf ca. 71 m² Wohnfläche erwartet Sie eine durchdachte Raumaufteilung mit 3 Zimmern, einem modernen Bad mit ebenerdiger Dusche, einem Hauswirtschaftsraum sowie einem gemütlichen Wohn-Essbereich mit direktem Zugang zur rund 14 m² großen Terrasse. Die großzügige Fensterfront schafft helle Räume und einen nahtlosen Übergang ins Grüne.
Das Besondere:
Das Dachgeschoss ist ausbaufähig – hier können Sie sich langfristig weitere Wohnfläche schaffen, z. B. für ein Büro, Gästezimmer oder Hobbyraum.
Technisch ist das Haus auf dem neuesten Stand:
Eine Wärmepumpe in Kombination mit Fußbodenheizung sorgt für effiziente und nachhaltige Wärmeverteilung. Die Energieeffizienzklasse A steht für geringe Verbrauchskosten und ein gutes Gefühl in Sachen Umweltbilanz.
Das Grundstück ist real geteilt, wodurch Sie volle Flexibilität und Eigentumssicherheit genießen. Optional kann ein Carport erworben werden – ideal für Witterungsschutz und zusätzlichen Stauraum.
Die Fakten auf einen Blick:
– Reihenmittelhaus in massiver Bauweise
– Wohnfläche ca. 71 m², 3 Zimmer
– Bad mit ebenerdiger Dusche
– Terrasse ca. 14 m²
– Fußbodenheizung mit Wärmepumpe
– Energieeffizienzklasse A
– Real geteiltes Grundstück
– Dachgeschoss ausbaufähig
– Optional: Carport
– Kaufpreis: 240.000 €
Ob als erster Wohntraum, altersgerechtes Zuhause oder solide Kapitalanlage – dieses Haus bietet Ihnen Raum zum Leben und Mitgestalten.
# Ausstattung
Terrasse, Garten, Duschbad
# Weitere Angaben
Verfügbar ab: 31.07.2026
Objektzustand: Erstbezug
Grundstücksfläche: ca. 200 m²
# Lagebeschreibung
Das Mittelreihenhaus befindet sich im Ayeweg in Stapel, einer charmanten Gemeinde im Kreis Schleswig-Flensburg. Eingebettet in die reizvolle Landschaft Schleswig-Holsteins bietet Stapel eine naturnahe, ruhige Wohnlage – ideal für alle, die dem Trubel der Stadt entfliehen und dennoch gut angebunden leben möchten.
Der Ayeweg ist Teil eines gewachsenen Wohngebiets mit freundlicher Nachbarschaft und einer angenehmen Mischung aus Jung und Alt. Die Umgebung ist geprägt von Feldern, Wiesen und kleinen Wasserläufen – perfekt für Spaziergänge, Fahrradtouren oder einfach zum Durchatmen.
Dennoch ist die Infrastruktur hervorragend: Einkaufsmöglichkeiten, Schulen, Ärzte und alles für den täglichen Bedarf finden Sie im nahegelegenen Erfde oder in Kropp – beides in wenigen Minuten mit dem Auto erreichbar. Die Städte Schleswig und Husum sind ebenfalls gut angebunden und bieten zusätzliche Versorgungs-, Kultur- und Freizeitangebote.
Auch für Pendler ist die Lage attraktiv: Über die B202 und die B77 gelangen Sie zügig in Richtung Schleswig, Rendsburg oder zur A7.
Ob als ruhiger Alterswohnsitz, gemütlicher Rückzugsort für junge Familien oder als nachhaltige Kapitalanlage – die Lage in Stapel vereint Lebensqualität, Naturnähe und Alltagstauglichkeit auf besondere Weise.
Infrastruktur (im Umkreis von 5 km):
Kindergarten, Grundschule
# Sonstiges
Heizungsart: Fußbodenheizung
Energieträger: Strom
Energieausweis nicht vorhanden
Makleranfragen nicht erwünscht. Nach § 7 UWG sind unaufgeforderte Kontaktaufnahmen durch Makler ohne ausdrückliche Einwilligung des Empfängers verboten!
ohne-makler (OM) ist weder Anbieter noch Vermittler der Immobilie. OM betreibt eine Plattform für Immobilieneigentümer, die unter anderem die gleichzeitige Veröffentlichung einzelner Inserate auf mehreren Immobilienportalen ermöglicht. Die Inhalte dieser Inserate werden ausschließlich von Dritten verantwortet. Für die Richtigkeit, Vollständigkeit oder Rechtmäßigkeit der Angaben übernimmt OM keine Haftung. Hinweise auf mögliche Rechtsverstöße können jederzeit gemeldet werden und werden nach Prüfung umgehend bearbeitet.
# Energie
Heizungsart: Fußbodenheizung
Wesentliche Energieträger: Elektrisch
Anbieter-Objekt-ID: 399459














