Neubau – Erstbezug | 2-Zimmer-Maisonettewohnung | Dachterrasse | EBK

1.750

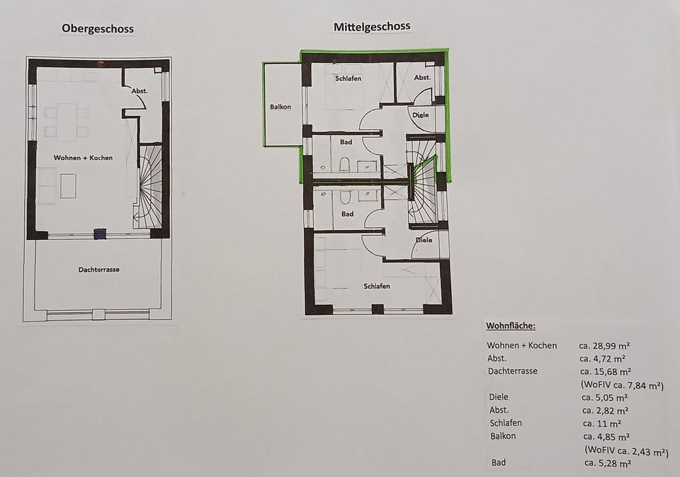
Die hier angebotene 2-Zimmer-Maisonettwohnung mit ca. 68 m² befindet sich in einem 2-Parteien-Objekt mit separatem Eingang. Das frei geplante Architektenhaus besticht durch seine moderne Architektur und einen offenen Grundriss. Das Objekt befindet…

Category:

Beschreibung

Die hier angebotene 2-Zimmer-Maisonettwohnung mit ca. 68 m² befindet sich in einem 2-Parteien-Objekt mit separatem Eingang.
Das frei geplante Architektenhaus besticht durch seine moderne Architektur und einen offenen Grundriss.
Das Objekt befindet sich einer ruhigen Sackgassenlage mit Süd-West-Ausrichtung.
Der Neubau wurde nach KfW-40-Standard erbaut und wird mit einer energieeffizienten Wärmepumpe betrieben.

# Ausstattung
Balkon, Dachterrasse, Einbauküche, Fliesen

Bemerkungen:
Allgemein:
-3-fach verglaste Kunststofffenster mit elektrischen Außenrollläden
-Waschmaschinen- und Trockneranschluss in der Wohnung in einem Abstellraum vorhanden
-Offener Wohn- und Essbereich mit Küche
-Designbelag Rigid-Vinyl in Dielenoptik Eiche in allen Räumen, außer dem Badezimmer
-Beleuchtung vorhanden im Flur, im Abstellraum, im Bad und dem Treppenaufgang
-Der Wohn- und Essbereich mit Küche und einer vorderen Deckenhöhe von 3,3 m verfügt über Einbauspots
-Raumhöhe 2,60 m
-Dachterrasse
-Schlafzimmer verfügt über einen eigenen Balkon
-Fahrradabstellmöglichkeit vorhanden

Einbauküche:
-Voll ausgestattet (Kühl-/Gefrierkombination, Einbauherd mit Induktionskochfeld, Backofen, Dunstabzugshaube, Geschirrspüler)
-Geräte von Bosch und Siemens
-Einbau-Mülltrennungssystem ausziehbar
-Küchenarmatur von Hansgrohe

Badezimmer:
-Walk-In-Dusche
-großer LED-Spiegel
-zusätzlicher Handtuchheizkörper
-Armaturen von Hansgrohe
-Keramik von Geberit
-Fliesen im Großformat

Haustechnik:
-Fußbodenheizung in allen Räumen (Einzelraumregelung)
-Dezentrale Wohnraumlüftung mit Wärmerückgewinnung
-Elektroausstattung von Berker

# Weitere Angaben
– Verfügbar ab: nach Absprache
– Objektzustand: Erstbezug
– Bodenbelag: Fliesen, Kunststoff

# Lagebeschreibung
Eißendorf – Die grüne Seite Harburgs

Natur & Freizeit
Wander- und Radwege im Naherholungsgebiet der Harburger Berge oder Spaziergänge an der Außenmühle liegen direkt vor Ihrer Haustür.

Infrastruktur
Alle Geschäfte des täglichen Bedarfs, wie Supermärkte, Apotheken und Ärzte befinden sich im direkten Umfeld.

Anbindung
Mit dem Bus (fußläufig erreichbare Haltestelle) oder dem Fahrrad erreichen Sie in wenigen Minuten das Harburger-Zentrum und den Bahnhof Harburg. Von dort gelangen Sie in ca. 15 Minuten in die Hamburger Innenstadt. Die Autobahnen A7 und A1 bieten zudem eine perfekte Anbindung für Pendler.
Infrastruktur (im Umkreis von 5 km):
Apotheke, Lebensmittel-Discount, Allgemeinmediziner, Kindergarten, Grundschule, Öffentliche Verkehrsmittel

# Sonstiges
Heizungsart: Fußbodenheizung

Weitere Angaben
Verfügbar ab: ca. 01.04.2026 oder nach Vereinbarung
Objektzustand: Erstbezug
Nettokaltmiete: 1.750€
Nebenkostenvorauszahlung: ca. 250€
Aufgrund des Erstbezugs können die Nebenkosten noch nicht genau angegeben werden.
Kaution: 3 Nettokaltmieten
Unser Mietvertrag beinhaltet eine Mindestmietzeit von 24 Monaten und es wird eine Staffelmiete vereinbart.

Sonstiges
Um Ihre Anfrage bearbeiten zu können und einen Besichtigungstermin vereinbaren zu können, benötigen wir folgende Unterlagen:
•Personalausweiskopie (beidseitig)
•Mieterselbstauskunft
•Schufa Auskunft
•Mietschuldenfreiheitsbescheinigung / Vormieterbescheinigung
•Einkommensnachweis der letzten 3 Monate
•Gültige Telefonnummer

Makleranfragen nicht erwünscht. Nach § 7 UWG sind unaufgeforderte Kontaktaufnahmen durch Makler ohne ausdrückliche Einwilligung des Empfängers verboten!

ohne-makler (OM) ist weder Anbieter noch Vermittler der Immobilie. OM betreibt eine Plattform für Immobilieneigentümer, die unter anderem die gleichzeitige Veröffentlichung einzelner Inserate auf mehreren Immobilienportalen ermöglicht. Die Inhalte dieser Inserate werden ausschließlich von Dritten verantwortet. Für die Richtigkeit, Vollständigkeit oder Rechtmäßigkeit der Angaben übernimmt OM keine Haftung. Hinweise auf mögliche Rechtsverstöße können jederzeit gemeldet werden und werden nach Prüfung umgehend bearbeitet.

# Energie
– Energieausweis: Energiebedarfsausweis
– Endenergiebedarf: 16 kWh/(m²*a)
– Energieeffizienzklasse: A+
– Baujahr: 2026
– Heizungsart: Fußbodenheizung

Anbieter-Objekt-ID: 436520