Beschreibung
Der Neubau wird mit einer Luft-Wasser Wärmepumpe (Fabrikat Bosch) ausgestattet und mittels Fußbodenheizung mit Wärme versorgt. Die Vorgaben vom Gebäudeenergiegesetz (GEG) für die Effizienzhaus 55 EE werden erfüllt.
Die Malerarbeiten sind inkludiert, Wände und Decken werden mit Rauhfaser tapeziert und Weiß gestrichen. Als Bodenbelag kommen Fliesen oder Vinyl-Design Belag in Eiche o.Ä. zur Ausführung. Die Außenanlage mit Pflastersteine und Rasenansaat sowie Heckenpflasten sind ebenfalls im Kaufpreis enthalten. Die großzügige Terrasse, die nach Südwesten ausgerichtet ist, wird gepflastert oder mit Bangkirai-Holz belegt.
Die nach Landesbauordnung erforderliche Photovoltaikanlage mit einer Leistung von 10 kWp mit Wechselrichter und 10 kWh Batteriespeicher spart Energie für die Heizung und Warmwasserversorgung.
# Ausstattung
Terrasse, Gäste-WC, Fliesen
# Weitere Angaben
– Separate WCs: 1
– Verfügbar ab: nach Absprache
– Objektzustand: Erstbezug
– Bodenbelag: Fliesen, Kunststoff
– Grundstücksfläche: ca. 424 m²
# Lagebeschreibung
Der schlüsselfertige Neubau entsteht in Hechthausen im Neubaugebiet an der Löhberger Straße Nr. 37. Das Grundstück zur Größe von 424 m² ist voll erschlossen. Der Garten und die Terrasse sind zum Südwesten ausgerichtet. Die Hausanschlüsse und die Außenanlage sind im Kaufpreis inkludiert.
# Sonstiges
Heizungsart: Fußbodenheizung
Energieträger: Strom
Der Neubau kann auch als Effizienzhaus 40 EE errichtet werden. Die Mehrkosten betragen ca. 19.700,-€.
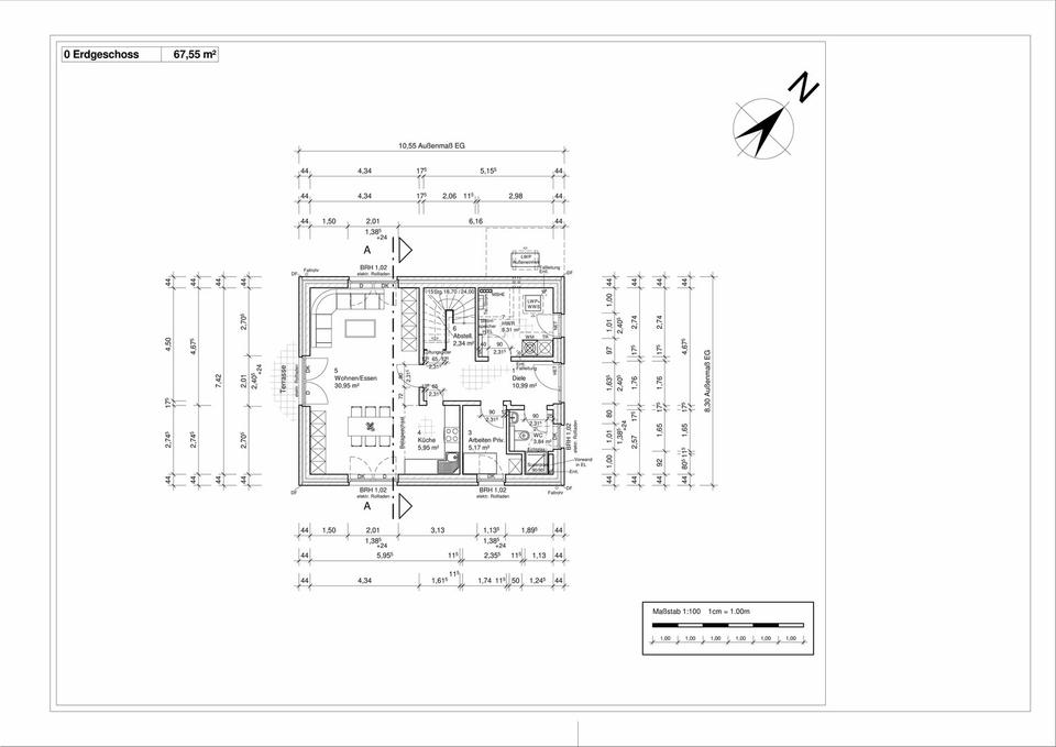
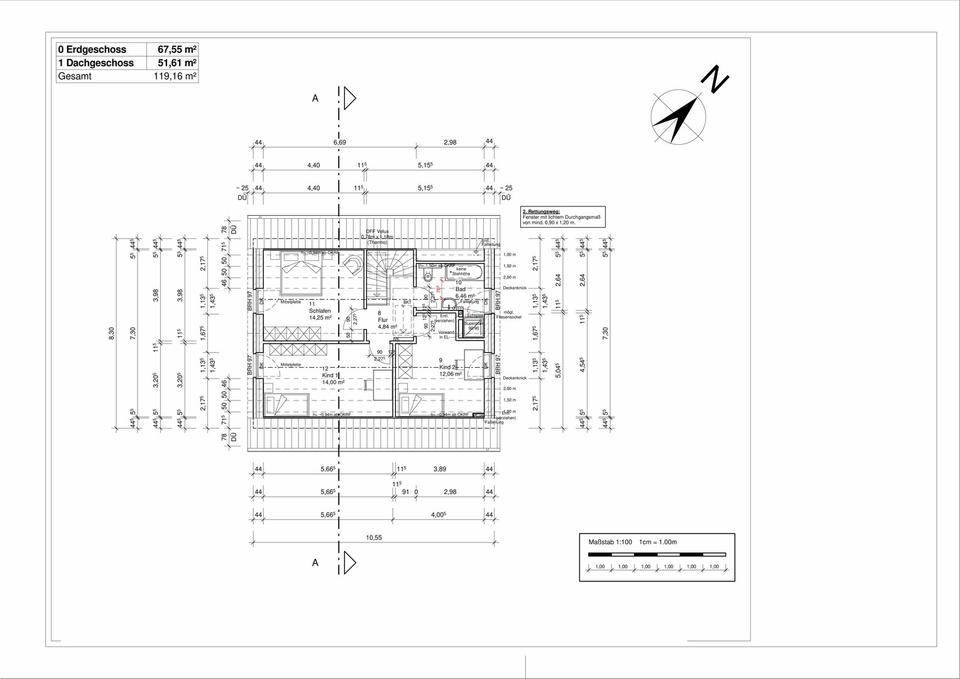
Grundrisse:
– https://www.ohne-makler.net/immobilie/file/1599108.pdf (Grundriss Erdgeschoss)
– https://www.ohne-makler.net/immobilie/file/1599109.pdf (Grundriss Dachgeschoss)
Sonstige Unterlagen:
– https://www.ohne-makler.net/immobilie/file/1599185.pdf ()
ohne-makler (OM) ist weder Anbieter noch Vermittler der Immobilie. OM betreibt eine Plattform für Immobilieneigentümer, die unter anderem die gleichzeitige Veröffentlichung einzelner Inserate auf mehreren Immobilienportalen ermöglicht. Die Inhalte dieser Inserate werden ausschließlich von Dritten verantwortet. Für die Richtigkeit, Vollständigkeit oder Rechtmäßigkeit der Angaben übernimmt OM keine Haftung. Hinweise auf mögliche Rechtsverstöße können jederzeit gemeldet werden und werden nach Prüfung umgehend bearbeitet.
# Energie
– Heizungsart: Fußbodenheizung
– Wesentliche Energieträger: Elektrisch
Anbieter-Objekt-ID: 422801







