Beschreibung
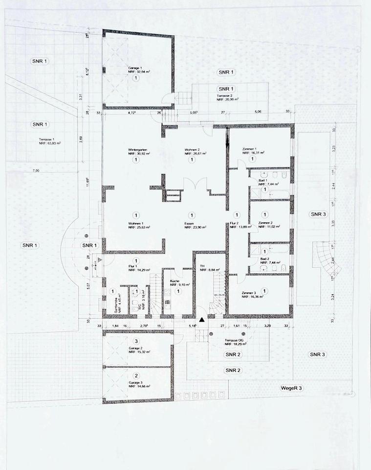
Diese außergewöhnlich große Wohnung mit einer Fläche von 258,63 m² verfügt über einen eigenen Eingang. Eine große Terrasse mit angrenzenden Garten sowie eine weitere Terrasse mit Garten sind der Wohnung als Sondernutzungsrecht zugeordnet. Die Gartenfläche beträgt insgesamt ca. 207 m². Die Wohnung bietet mindestens sechs Räume, zwei voll ausgestattete Badezimmer mit Dusche und Badewanne sowie ein Gäste-WC.
Ein Raum (Wohnraum Nr. 2 ca. 26,61 m² – s. Plan) kann als offene Küche gestaltet werden, sodass die aktuelle Küche als zusätzlicher Raum genutzt werden könnte. Hier ergeben sich zahlreiche Möglichkeiten für individuelle Umgestaltungen. Das Besondere dabei wäre, dass der Raum einen völlig neuen Charakter erhält, er wird zu einer großzügigen, modernen Küche mit blick in den Garten. So würde ein neues Wohnambiente mit viel Offenheit entstehen.
Zu Wohnung gehören außerdem zwei Garagen, die zusätzlich Komfort und Sicherheit bieten.
Diese Wohnung steht leer und ist bezugsfertig.
# Ausstattung
Terrasse, Wintergarten, Garten, Keller, Vollbad, Duschbad, Einbauküche, Gäste-WC, Kamin, Parkett, Fliesen
Bemerkungen:
Böden im Wohnbereich, Küche und den Bädern sind mit Fliesen ausgestattet. In den Schlafräumen wurde Echtholzeichenparket neu verlegt.
Die Wohnung verfügt über einen Marmorkamin, sowie ein Marmortreppenhaus. Sie wurde zum Teil gestrichen, Türe incl. Türzargen wurde ausgetauscht, sowie Lichtschalter, Steckdosen.
Elektrisches Tor vor den Garagen am Grundstückanfang.
Die Wohnung verfügt über Fußbodenheizung.
Die Heizungsanlage wurde überprüft und gewartet.
Das Dach wurde komplett gereinigt und vom Dachdecker überprüft.
Die Außenzuwegung wurde komplett gereinigt und vom Pflasterer überprüft.
Die Gärten wurden neu gestaltet incl. Rollrasen.
# Weitere Angaben
– Separate WCs: 1
– Verfügbar ab: nach Absprache
– Objektzustand: vollständig renoviert
– Bodenbelag: Fliesen, Parkett
– Garagen/Stellplatzkaufpreis: 15.000,00 €
# Lagebeschreibung
Diese exklusive Lage zeichnet sich durch ihre gehobene Nachbarschaft, grüne und ruhige Umgebung und die Nähe zu sämtlichen Einrichtungen des täglichen Bedarfs aus. Schulen, Kindergärten, Einkaufsmöglichkeiten, Ärzte und die Anbindung an den öffentlichen Nahverkehr sind in wenigen Minuten erreichbar. Auch die Städte Bonn, Köln und Siegburg sind über die nahegelegene A560 bzw. A59 gut erreichbar.
Infrastruktur (im Umkreis von 5 km):
Apotheke, Lebensmittel-Discount, Allgemeinmediziner, Kindergarten, Grundschule, Hauptschule, Realschule, Gymnasium, Gesamtschule, Öffentliche Verkehrsmittel
# Sonstiges
Heizungsart: Zentralheizung
Energieträger: Gas
Sonstige Unterlagen:
– https://www.ohne-makler.net/immobilie/file/1598487.pdf (Energieausweis)
Makleranfragen nicht erwünscht. Nach § 7 UWG sind unaufgeforderte Kontaktaufnahmen durch Makler ohne ausdrückliche Einwilligung des Empfängers verboten!
ohne-makler (OM) ist weder Anbieter noch Vermittler der Immobilie. OM betreibt eine Plattform für Immobilieneigentümer, die unter anderem die gleichzeitige Veröffentlichung einzelner Inserate auf mehreren Immobilienportalen ermöglicht. Die Inhalte dieser Inserate werden ausschließlich von Dritten verantwortet. Für die Richtigkeit, Vollständigkeit oder Rechtmäßigkeit der Angaben übernimmt OM keine Haftung. Hinweise auf mögliche Rechtsverstöße können jederzeit gemeldet werden und werden nach Prüfung umgehend bearbeitet.
# Energie
– Energieausweis: Energieverbrauchsausweis
– Energieverbrauch: 92 kWh/(m²*a)
– Energieeffizienzklasse: C
– Heizungsart: Zentralheizung
– Wesentliche Energieträger: Gas
Anbieter-Objekt-ID: 394093




















