Moderne, große Wohnung mit zwei Bädern- !!! auf Wunsch: Teilbar in zwei Wohnungen!!!

299.000

Objektbeschreibung: Willkommen in Ihrem neuen Zuhause oder Ihrer nächsten Kapitalanlage: Diese stilvoll modernisierte 4-Zimmer-Wohnung mit ca. 98 m² Wohnfläche im 1. Obergeschoss überzeugt durch durchdachte Raumaufteilung, hochwertige Sanierung un…

Beschreibung

# Objektbeschreibung
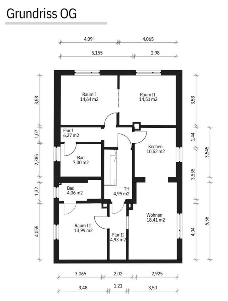
Willkommen in Ihrem neuen Zuhause oder Ihrer nächsten Kapitalanlage: Diese stilvoll modernisierte 4-Zimmer-Wohnung mit ca. 98 m² Wohnfläche im 1. Obergeschoss überzeugt durch durchdachte Raumaufteilung, hochwertige Sanierung und vielseitige Nutzungsmöglichkeiten. Sie befindet sich in einem gepflegten Mehrfamilienhaus in beliebter, ruhiger Wohnlage von Roth.

Die Fakten im Überblick:
– ca. 98 m² Wohnfläche

– 4 Zimmer + zusätzliches Zimmer im Dachgeschoss

– Zwei moderne Duschbäder (eins davon neu und modern saniert 2025)

– Separate Bereiche durch gespiegelte Küchenanschlüsse (für Anleger: einfache Aufteilung in zwei Wohnungen möglich)

– Kellerraum zur privaten Nutzung

– Fahrradabstellraum im großzügigen Hof

– große Garage kann zusätzlich erworben werden

– Gepflegte Hausgemeinschaft

Umfassende Sanierung 2025:
– Nahezu Kernsanierung der gesamten Wohnung

– Wände begradigt und neu verputzt

– Alle Bodenbeläge erneuert

– Komplette Erneuerung der Elektroinstallation

– LED Deckenleuchten in der gesamten Wohnung

– Neue Türen und Zargen in modernem Design

– neue Dämmung des Dachbodens

Objektzustand: Erstbezug nach Sanierung

# Ausstattung
Garten, Keller, Duschbad, Gäste-WC, Laminat

Bemerkungen:
Ein besonderes Highlight: Dank der gespiegelten Küchenanschlüsse lässt sich die Wohnung bei Bedarf auch in zwei separate Einheiten aufteilen – ideal für Mehrgenerationenwohnen, Teilvermietung oder Homeoffice mit separatem Zugang.

# Weitere Angaben
Separate WCs: 1
Verfügbar ab: sofort
Objektzustand: saniert
Bodenbelag: Laminat

# Lagebeschreibung
Lage:

Die Georg-Mayer-Straße liegt in einer ruhigen Wohngegend von Roth mit guter Infrastruktur. Einkaufsmöglichkeiten, Schulen, öffentliche Verkehrsmittel und Grünflächen sind bequem erreichbar. Die Anbindung an Nürnberg ist hervorragend – ideal auch für Pendler.
Infrastruktur (im Umkreis von 5 km):
Apotheke, Lebensmittel-Discount, Öffentliche Verkehrsmittel

# Sonstiges
Heizungsart: Zentralheizung
Energieträger: Öl
Grundrisse:
– https://www.ohne-makler.net/immobilie/file/1581274.pdf (Grundriss)

Sonstige Unterlagen:
– https://www.ohne-makler.net/immobilie/file/1580514.pdf (Energieausweis)

Makleranfragen nicht erwünscht. Nach § 7 UWG sind unaufgeforderte Kontaktaufnahmen durch Makler ohne ausdrückliche Einwilligung des Empfängers verboten!

ohne-makler (OM) ist weder Anbieter noch Vermittler der Immobilie. OM betreibt eine Plattform für Immobilieneigentümer, die unter anderem die gleichzeitige Veröffentlichung einzelner Inserate auf mehreren Immobilienportalen ermöglicht. Die Inhalte dieser Inserate werden ausschließlich von Dritten verantwortet. Für die Richtigkeit, Vollständigkeit oder Rechtmäßigkeit der Angaben übernimmt OM keine Haftung. Hinweise auf mögliche Rechtsverstöße können jederzeit gemeldet werden und werden nach Prüfung umgehend bearbeitet.

# Energie
Energieausweis: Energiebedarfsausweis
Endenergiebedarf: 146 kWh/(m²*a)
Energieeffizienzklasse: E
Heizungsart: Zentralheizung
Wesentliche Energieträger: Öl

Anbieter-Objekt-ID: 377348