Beschreibung
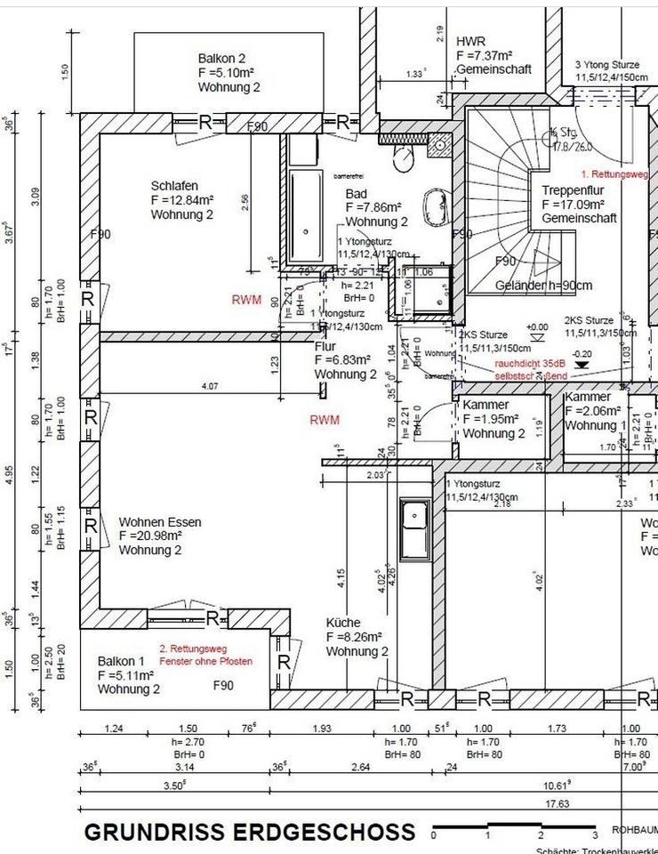
Mit einer Wohnfläche von 63,83 m² eignet sich die Wohnung ideal für Singles oder Paare, die modernes Wohnen mit ruhiger Umgebung verbinden möchten.
Die Wohnung verfügt über einen großzügigen Wohn- und Essbereich, der durch große Fensterflächen viel Licht erhält. Die moderne Einbauküche ist bereits integriert und bietet ausreichend Platz zum Kochen und Genießen.
Das Schlafzimmer bietet genügend Raum für ein großes Bett und Kleiderschrank.
Das moderne Badezimmer ist hochwertig ausgestattet und verfügt über eine komfortable Regendusche.
Vom Wohnbereich aus gelangen Sie direkt in den privaten Gartenbereich, der eingezäunt ist und somit ideal zum Entspannen oder für gemütliche Stunden im Freien geeignet ist.
Zusätzlich steht Ihnen ein praktisches Gartenhaus zur Verfügung.
# Ausstattung
Terrasse, Garten, Keller, Vollbad, Einbauküche, Barrierefrei
Bemerkungen:
Ausstattung
• Fußbodenheizung
• moderne Einbauküche
• hochwertiges Badezimmer
• Regendusche
• moderne Armaturen
• große Fensterflächen
• Garten mit Abgrenzung
• Gartenhaus / Abstellmöglichkeit
# Weitere Angaben
– Verfügbar ab: sofort
– Objektzustand: neuwertig
– Garagen/Stellplatzmiete: 50,00 €
# Lagebeschreibung
Die Wohnung befindet sich in der Frankfurter Straße in Müllrose, einer idyllischen Kleinstadt im Landkreis Oder-Spree.
Müllrose wird oft als „Tor zum Schlaubetal“ bezeichnet und bietet eine hohe Lebensqualität durch Natur, Seen und eine gute Infrastruktur.
Vor Ort finden Sie:
• Einkaufsmöglichkeiten
• Ärzte und Apotheken
• Restaurants und Cafés
• Schulen und Kindergärten
• Bahnhof mit Verbindung nach Frankfurt (Oder) und Berlin
Der Müllroser See sowie zahlreiche Rad- und Wanderwege sind in wenigen Minuten erreichbar und machen die Lage besonders attraktiv für Naturliebhaber.
Infrastruktur (im Umkreis von 5 km):
Apotheke, Lebensmittel-Discount, Allgemeinmediziner, Kindergarten, Grundschule, Hauptschule, Gymnasium, Gesamtschule, Öffentliche Verkehrsmittel
# Sonstiges
Heizungsart: Fußbodenheizung
Energieträger: Luft-/Wasserwärme
Energieausweis nicht vorhanden
Die Wohnung befindet sich in einem sehr gepflegten Neubauzustand und bietet modernen Wohnkomfort mit hochwertiger Ausstattung.
Durch den eigenen Gartenbereich entsteht ein Wohngefühl, das sonst meist nur bei Häusern zu finden ist.
Makleranfragen nicht erwünscht. Nach § 7 UWG sind unaufgeforderte Kontaktaufnahmen durch Makler ohne ausdrückliche Einwilligung des Empfängers verboten!
ohne-makler (OM) ist weder Anbieter noch Vermittler der Immobilie. OM betreibt eine Plattform für Immobilieneigentümer, die unter anderem die gleichzeitige Veröffentlichung einzelner Inserate auf mehreren Immobilienportalen ermöglicht. Die Inhalte dieser Inserate werden ausschließlich von Dritten verantwortet. Für die Richtigkeit, Vollständigkeit oder Rechtmäßigkeit der Angaben übernimmt OM keine Haftung. Hinweise auf mögliche Rechtsverstöße können jederzeit gemeldet werden und werden nach Prüfung umgehend bearbeitet.
# Energie
– Baujahr: 2023
– Heizungsart: Fußbodenheizung
– Wesentliche Energieträger: Wärmepumpe Luft-Wasser
Anbieter-Objekt-ID: 435932



















