Leichte Fabrikation, Büro und Schulung

7

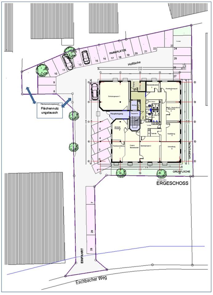
Helle Gewerbefläche im 2. OG – Flexibel nutzbar für Produktion, Schulung oder Büro Etage: Grundrissaufteilung variabel mit Systemtrennwände einschl. integrierte Schränke und Türen. Abgehängte Akustikdecken mit LED Beleuchtung. Deckenlast 500 kg/m²…

Beschreibung

Helle Gewerbefläche im 2. OG – Flexibel nutzbar für Produktion, Schulung oder Büro
Etage: Grundrissaufteilung variabel mit Systemtrennwände einschl. integrierte Schränke und Türen. Abgehängte Akustikdecken mit LED Beleuchtung.
Deckenlast 500 kg/m²
Barrierefreier Zugang: Ein rollstuhlgerechter Personenaufzug
(Tragkraft 630 kg, bis zu 8 Personen.
Die Etage ist flexibel teilbar ab einer Fläche von 250 m²

# Ausstattung
Keller, Fahrstuhl, Einbauküche, Sonstiges (s. Text)

Bemerkungen:
Einbauküche und Teeküche, Sanitärkern Frauen / Herren separat
Elektroverteilung über Brüstungskanäle und abgehängte Decken
Warmwasser dezentral
Energieabrechnung nach tatsächlichem Verbrauch.
Bodenbelag nach Absprache.

# Weitere Angaben
– Verfügbar ab: nach Absprache
– Objektzustand: gepflegt

– Bürofläche: ca. 500 m²

# Lagebeschreibung

Infrastruktur (im Umkreis von 5 km):
Apotheke, Lebensmittel-Discount, Allgemeinmediziner, Kindergarten, Grundschule, Gesamtschule, Öffentliche Verkehrsmittel

# Sonstiges
Heizungsart: Zentralheizung
Energieträger: Gas

Makleranfragen nicht erwünscht. Nach § 7 UWG sind unaufgeforderte Kontaktaufnahmen durch Makler ohne ausdrückliche Einwilligung des Empfängers verboten!

ohne-makler (OM) ist weder Anbieter noch Vermittler der Immobilie. OM betreibt eine Plattform für Immobilieneigentümer, die unter anderem die gleichzeitige Veröffentlichung einzelner Inserate auf mehreren Immobilienportalen ermöglicht. Die Inhalte dieser Inserate werden ausschließlich von Dritten verantwortet. Für die Richtigkeit, Vollständigkeit oder Rechtmäßigkeit der Angaben übernimmt OM keine Haftung. Hinweise auf mögliche Rechtsverstöße können jederzeit gemeldet werden und werden nach Prüfung umgehend bearbeitet.

# Energie
– Energieausweis: Energiebedarfsausweis
– Endenergieverbrauch Strom: 51 kWh/(m²*a)
– Endenergieverbrauch Wärme: 51 kWh/(m²*a)
– Heizungsart: Zentralheizung
– Wesentliche Energieträger: Gas

Anbieter-Objekt-ID: 436275