Beschreibung
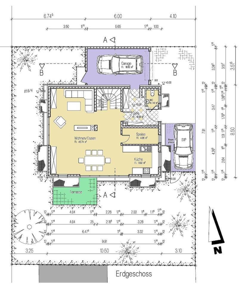
Im Erdgeschoss befindet sich der großzügige Wohn-Essbereich mit direktem Zugang zur Süd-Terasse und dem Garten. Besonderes Highlight ist der romantische Panoramakamin für gemütliche Stunden. Eine offene Einbauküche kann vom Vormieter gegen Abstand übernommen werden. Eine Vorratskammer verkürzt die Wege. Im geräumigen Eingang befindet sich ein Gäste-WC und der Zugang in die angeschlossene Garage. Die Garage ist 3,50mtr breit und ist auch für heutige Fahrzeuge nutzbar.
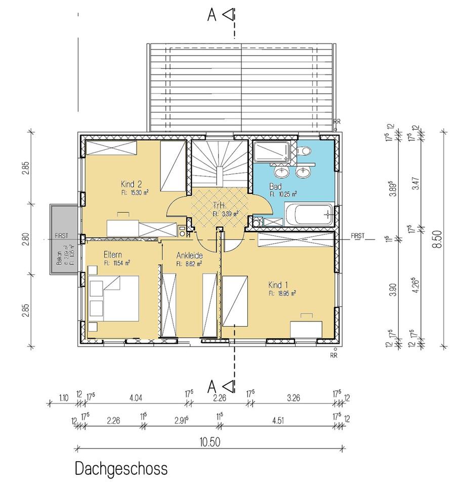
Das Obergeschoss bietet ein schönes geräumiges Bad mit Dusche und Badewanne sowie drei helle Schlafzimmer. Eines davon mit vorgelagertem Ankleidebereich.
Der Keller bietet reichlich Platz für alle Bedürfnisse. Im Heizraum befindet sich eine Wasser-Wasser Wärmepumpe für die auch ein separater Stromzähler vorhanden ist. Hier ist auch Platz für die Waschmaschine und Trockner. Es gibt noch 3 weitere Räume zur individuellen Verwendung. Vom Stauraum über Hobbyraum, vieles ist möglich.
Der großzügige Süd-Garten bietet noch viele Gestaltungsmöglichkeiten. Er ist mit einem Holzzaun eingefasst. Vor dem Haus gibt es noch einen zusätzlichen Stellplatz für ihren PKW.
# Ausstattung
Balkon, Terrasse, Garten, Keller, Vollbad, Gäste-WC, Kamin, Laminat, Fliesen
Bemerkungen:
Die früheste Verfügbarkeit ist zum 01.05.2026 möglich. Ansonsten nach Vereinbarung.
# Weitere Angaben
– Separate WCs: 1
– Verfügbar ab: nach Absprache
– Objektzustand: gepflegt
– Bodenbelag: Fliesen, Laminat
– Grundstücksfläche: ca. 338 m²
# Lagebeschreibung
Ascholding ist ein Dorf mit ländlichem Charakter und ein Ortsteil der Gemeinde Dietramszell. Der Ort ist ca. acht Kilometer von Dietramszell und sechs Kilometer von Wolfratshausen entfernt. Die große Ascholdinger Au und die benachbarte Pupplinger Au bilden zusammen einen Teil des Naturschutzgebietes Isarauen zwischen Schäftlarn und Bad Tölz und bietet einen hohen Freizeitwert. Ascholding liegt auf ca. 600 Höhenmeter und hat ein Fläche von 1052 qkm. Der Ort hatte 2022 (Zensus) 970 Einwohner – Tendenz steigend. Es ist ein Kindergarten vorhanden. Die Grund- und Mittelschule befindet sich in Dietramszell. Auch eine Montessori Schule und eine Waldorfschule sind in der Nähe. Es existieren Busverbindungen nach Bad Tölz, Wolfratshausen und nach Höllriegelkreuth (S7 – S-Bahn).
Infrastruktur (im Umkreis von 5 km):
Lebensmittel-Discount, Allgemeinmediziner, Kindergarten, Öffentliche Verkehrsmittel
# Sonstiges
Heizungsart: Fußbodenheizung
Energieträger: Luft-/Wasserwärme
Hinweis: die angegebenen Nebenkosten verstehen sich exkl. Heizkosten!
Sonstige Unterlagen:
– https://www.ohne-makler.net/immobilie/file/1598840.pdf ()
– https://www.ohne-makler.net/immobilie/file/1598841.pdf ()
– https://www.ohne-makler.net/immobilie/file/1598842.pdf ()
– https://www.ohne-makler.net/immobilie/file/1598843.pdf ()
Makleranfragen nicht erwünscht. Nach § 7 UWG sind unaufgeforderte Kontaktaufnahmen durch Makler ohne ausdrückliche Einwilligung des Empfängers verboten!
ohne-makler (OM) ist weder Anbieter noch Vermittler der Immobilie. OM betreibt eine Plattform für Immobilieneigentümer, die unter anderem die gleichzeitige Veröffentlichung einzelner Inserate auf mehreren Immobilienportalen ermöglicht. Die Inhalte dieser Inserate werden ausschließlich von Dritten verantwortet. Für die Richtigkeit, Vollständigkeit oder Rechtmäßigkeit der Angaben übernimmt OM keine Haftung. Hinweise auf mögliche Rechtsverstöße können jederzeit gemeldet werden und werden nach Prüfung umgehend bearbeitet.
# Energie
– Energieausweis: Energiebedarfsausweis
– Endenergiebedarf: 53 kWh/(m²*a)
– Energieeffizienzklasse: A+
– Heizungsart: Fußbodenheizung
– Wesentliche Energieträger: Wärmepumpe Luft-Wasser
Anbieter-Objekt-ID: 441438


































