Historisches Altstadthaus für Liebhaber

389.000

Objektbeschreibung: Diese Immobilie eignet sich ideal für Paare, Selbstständige oder Individualisten, die urbanes Wohnen in historischer Umgebung schätzen – und keinen großen Garten oder Neubaukomfort benötigen. Die Fachwerk-Doppelhaushälfte ( vor…

Beschreibung

# Objektbeschreibung
Diese Immobilie eignet sich ideal für Paare, Selbstständige oder Individualisten, die urbanes Wohnen in historischer Umgebung schätzen – und keinen großen Garten oder Neubaukomfort benötigen.

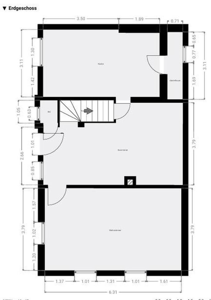
Die Fachwerk-Doppelhaushälfte ( vor 1900) bietet rund 134 m² Wohnfläche mit fünf Zimmern und einer großzügigen Wohnküche als zentralem Treffpunkt.

Der offene Essbereich schafft eine warme Wohnatmosphäre. Ein separates großzügiges Wohnzimmer ergänzt das Erdgeschoss.

Im Obergeschoss befinden sich drei Schlafzimmer und ein Wannenbad.
Die Schaffung eines zusätzlichen Raums ist gut möglich, beispielsweise für ein Homeoffice oder ähnlichem.

Altstadttypisch sind eine steilere Treppe und teilweise nicht vollkommen gerade Böden – bauliche Eigenheiten, die den Charme historischer Häuser ausmachen. Der hohe Natursandsteinkeller bietet praktische Lagerfläche. Der Dachboden schafft großzügigen Stauraum und zusätzliche Perspektive.

Im Außenbereich befindet sich eine Hofterrasse, ein Garten oder Stellplatz am Haus ist nicht vorhanden. Die Lage bietet dafür kurze Wege und die gewachsene Infrastruktur einer Kreisstadt.

Technisch präsentiert sich das Haus solide:
Gasheizung aus 2018, Isolierfenster vorhanden, insgesamt gut gepflegt, kein Denkmalschutz.

Die Immobilie eignet sich besonders für Käufer, die bewusst ein charaktervolles Haus suchen und ihre Prioritäten nicht ausschließlich an Komfortmerkmalen wie Garten oder Garage ausrichten.

Wenn Sie das suchen, sprechen Sie uns gerne an.

# Ausstattung
Terrasse, Keller, Vollbad, Einbauküche, Gäste-WC, Laminat, Fliesen

# Weitere Angaben
Separate WCs: 1
Verfügbar ab: sofort
Objektzustand: gepflegt
Bodenbelag: Fliesen, Laminat

Grundstücksfläche: ca. 247 m²

# Lagebeschreibung
Dietzenbach, Kreisstadt im südlichen Rhein-Main-Gebiet und verbindet städtische Infrastruktur mit viel Grün und kurzen Wegen nach Frankfurt.
Die Altstadt bildet das historische Zentrum und überzeugt durch ihren gewachsenen Charme, ruhige Wohnstraßen und ein angenehmes nachbarschaftliches Umfeld.
Einkaufsmöglichkeiten, Cafés, Schulen, Kindergärten und Ärzte sind bequem fußläufig erreichbar.
Dank S-Bahn-Anschluss und schneller Anbindung an die Autobahnen A3 und A661 ist die Frankfurter Innenstadt in kurzer Zeit erreichbar.
Die Lage vereint damit historische Atmosphäre, gute Erreichbarkeit und hohe Lebensqualität.
Infrastruktur (im Umkreis von 5 km):
Apotheke, Lebensmittel-Discount, Allgemeinmediziner, Kindergarten, Grundschule, Hauptschule, Realschule, Gymnasium, Gesamtschule, Öffentliche Verkehrsmittel

# Sonstiges
Heizungsart: Zentralheizung
Energieträger: Gas

Alle Angaben beruhen auf den vorliegende Dokumenten.

Auch private Verkäufer unterliegen der DSGVO. Mit Ihrer Kontaktaufnahme über dieses Portal übermitteln Sie personenbezogene Daten. Diese werden ausschließlich zur Bearbeitung Ihrer Anfrage und zur Durchführung des Immobilienverkaufs gemäß Art. 6 Abs. 1 lit. b DSGVO verarbeitet. Eine Weitergabe erfolgt nur, soweit dies zur Vertragsabwicklung erforderlich ist. Die Löschung erfolgt nach Zweckfortfall, sofern keine gesetzlichen Aufbewahrungspflichten bestehen.

Makleranfragen nicht erwünscht. Nach § 7 UWG sind unaufgeforderte Kontaktaufnahmen durch Makler ohne ausdrückliche Einwilligung des Empfängers verboten!

ohne-makler (OM) ist weder Anbieter noch Vermittler der Immobilie. OM betreibt eine Plattform für Immobilieneigentümer, die unter anderem die gleichzeitige Veröffentlichung einzelner Inserate auf mehreren Immobilienportalen ermöglicht. Die Inhalte dieser Inserate werden ausschließlich von Dritten verantwortet. Für die Richtigkeit, Vollständigkeit oder Rechtmäßigkeit der Angaben übernimmt OM keine Haftung. Hinweise auf mögliche Rechtsverstöße können jederzeit gemeldet werden und werden nach Prüfung umgehend bearbeitet.

# Energie
Energieausweis: Energiebedarfsausweis
Endenergiebedarf: 287 kWh/(m²*a)
Energieeffizienzklasse: H
Heizungsart: Zentralheizung
Wesentliche Energieträger: Gas

Anbieter-Objekt-ID: 431811