Beschreibung
Diese zeitlose Immobilie aus den 1990er Jahren befindet sich im 2. Obergeschoss einer äußerst gepflegten Wohnanlage und überzeugt durch ein harmonisches Zusammenspiel aus Komfort, Licht und urbaner Lebensqualität.
Bereits beim Betreten spürt man das angenehme Wohnambiente: große bodentiefe Fensterfronten im Wohnzimmer schaffen eine beeindruckend helle Atmosphäre und verleihen der Wohnung ein offenes, freundliches Raumgefühl.
Ein besonderes Highlight ist das vollständig neu sanierte Badezimmer, das mit hochwertigen Armaturen und moderner Ausstattung nicht nur optisch begeistert, sondern auch maximalen Komfort bietet.
Auch das Umfeld spricht für sich: Die ruhige und dennoch zentrale Wohnanlage punktet mit bester Infrastruktur. In nur ca. 5 Gehminuten erreichen Sie die U-Bahn, wodurch die Münchner Innenstadt schnell und bequem angebunden ist.
Ein Personenaufzug bringt Sie komfortabel vom zur Wohnung gehörenden Tiefgaragenstellplatz direkt bis vor Ihre Wohnungstür. Zusätzlich steht ein separates Kellerabteil zur Verfügung.
Die Wohnung ist aktuell zuverlässig vermietet und erzielt eine monatliche Kaltmiete von 1.760 €, was sie für Kapitalanleger äußerst attraktiv macht.
# Ausstattung
Balkon, Keller, Fahrstuhl, Duschbad, Einbauküche, Laminat, Fliesen
Bemerkungen:
Großzügige bodentiefe Glasfronten im Wohnzimmer
Für ein außergewöhnlich helles Wohnambiente mit viel Tageslicht und einem offenen Raumgefühl.
Sonniger Balkon mit Zugang vom Wohn- oder Schlafzimmer
Ideal für entspannte Stunden im Freien – flexibel nutzbar und harmonisch in das Wohnkonzept integriert.
Gas-Zentralheizung mit klassischen Heizkörpern
Effiziente und bewährte Heiztechnik mit zuverlässiger Wärmeversorgung.
Laminatboden in hochwertiger Parkettoptik
Pflegeleicht, robust und optisch ansprechend – verbindet Ästhetik mit Alltagstauglichkeit.
Modernes Duschbad mit WC
Funktional und zeitgemäß gestaltet – klar strukturiert und komfortabel nutzbar.
Offen integrierte Einbauküche
Harmonisch in den Wohnbereich eingebunden – ideal für kommunikatives Wohnen und eine optimale Raumnutzung.
Personenaufzug mit direktem Zugang zur Tiefgarage
Komfortables Erreichen der Wohnung – barrierearm und alltagserleichternd.
Duplex-Tiefgaragenstellplatz
Geschütztes Parken im Haus – besonders in München ein erheblicher Standort- und Wertvorteil (zzgl. 19.500 EUR)
# Weitere Angaben
Verfügbar ab: sofort
Objektzustand: vollständig renoviert
Bodenbelag: Fliesen, Laminat
Garagen/Stellplatzkaufpreis: 19.500,00 €
# Lagebeschreibung
Lage – Urban angebunden, grün eingebettet
Die Boschetsriederstraße zählt zu den gefragtesten Wohnadressen im Münchner Süden – und vereint auf besondere Weise urbane Dynamik mit wohltuender Ruhe.
Ein zentrales Qualitätsmerkmal dieser Lage ist der geschützte, grün gestaltete Innenhof, der den Bewohnern eine private Rückzugsoase bietet. Hier entsteht ein Wohngefühl, das in München selten geworden ist: entspannt, ruhig und dennoch mitten im Geschehen.
Exzellente Verkehrsanbindung
Die U-Bahn- und S-Bahn-Stationen sind in wenigen Gehminuten erreichbar und gewährleisten eine schnelle, direkte Verbindung in die Münchner Innenstadt sowie in das gesamte Stadtgebiet. Auch mit dem Auto profitieren Sie von einer optimalen Anbindung an den Mittleren Ring und die umliegenden Autobahnen.
Beste Infrastruktur im direkten Umfeld
Die Nahversorgung ist komfortabel und vielseitig:
Supermärkte, Bäckereien, Apotheken und weitere Einkaufsmöglichkeiten befinden sich in unmittelbarer Nähe. Ergänzt wird das Angebot durch eine attraktive Auswahl an Restaurants, Cafés und lokalen Märkten, die das Viertel lebendig und authentisch machen.
Lebensqualität für alle Generationen
Die Kombination aus grünen Rückzugsflächen, gewachsener Nachbarschaft und urbaner Infrastruktur macht die Boschetsriederstraße zu einem erstklassigen Wohnstandort für alle Altersgruppen – ob Eigennutzer oder Kapitalanleger.
Infrastruktur (im Umkreis von 5 km):
Apotheke, Lebensmittel-Discount, Allgemeinmediziner, Kindergarten, Grundschule, Hauptschule, Realschule, Gymnasium, Gesamtschule, Öffentliche Verkehrsmittel
# Sonstiges
Heizungsart: Zentralheizung
Energieträger: Gas
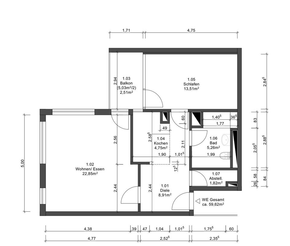
Grundrisse:
– https://www.ohne-makler.net/immobilie/file/1593723.pdf (Grundriss)
Makleranfragen nicht erwünscht. Nach § 7 UWG sind unaufgeforderte Kontaktaufnahmen durch Makler ohne ausdrückliche Einwilligung des Empfängers verboten!
ohne-makler (OM) ist weder Anbieter noch Vermittler der Immobilie. OM betreibt eine Plattform für Immobilieneigentümer, die unter anderem die gleichzeitige Veröffentlichung einzelner Inserate auf mehreren Immobilienportalen ermöglicht. Die Inhalte dieser Inserate werden ausschließlich von Dritten verantwortet. Für die Richtigkeit, Vollständigkeit oder Rechtmäßigkeit der Angaben übernimmt OM keine Haftung. Hinweise auf mögliche Rechtsverstöße können jederzeit gemeldet werden und werden nach Prüfung umgehend bearbeitet.
# Energie
Energieausweis: Energieverbrauchsausweis
Energieverbrauch: 84 kWh/(m²*a)
Energieeffizienzklasse: C
Heizungsart: Zentralheizung
Wesentliche Energieträger: Gas
Anbieter-Objekt-ID: 282980


















