Beschreibung
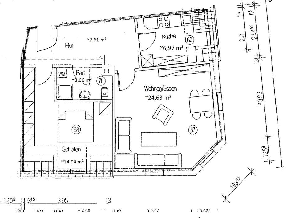
Die angebotene Wohnung im 3. OG ist sehr gut geschnitten und bietet reichlich Platz für ein junges Paar oder Single. Sie hat eine großzügige Zimmeraufteilung, so dass Möbelstellflächen kein Problem sind. Die großen Fenster und die Lage nach Südwesten sorgen für reichlich Licht und Sonne, die ehemals hohen Decken sind auf heutigen Standard abgehängt und angepasst. Das großzügige Wohnzimmer bietet ein exklusives Raumgefühl.
Die besondere Wohnsituation mit repräsentativem Treppenhaus ist für gemütliche Individualisten bestens geeignet.
# Ausstattung
Keller, Duschbad, Laminat, Fliesen
Bemerkungen:
Die Anmietung eines PKW-Stellplatzes im Hofe des Hauses ist möglich, sofern ein Stellplatz frei ist. Der Mietpreis pro PKW-Stellplatz beträgt 25,- €/mon. Bei Interesse fragen Sie uns einfach.
Der kleine Rasen- und Gartenbereich hinter dem Haus kann als Wäschetrockenplatz sowie als Kinderspielfläche genutzt werden.
# Weitere Angaben
– Verfügbar ab: nach Absprache
– Objektzustand: gepflegt
– Bodenbelag: Fliesen, Laminat
# Lagebeschreibung
Das repräsentative Mietshaus liegt 2 Minuten zur Fuß vom Marktplatz und der Fußgängerzone bzw. Einkaufsstraße.
Alle wichtigen Einkaufsmöglichkeiten sind nahebei, Bäcker Müller, NETTO Einkaufsmarkt, EDEKA, Metzger, TEDI etc., zu Fuß schnell erreichbar.
Die Bundesautobahn A 4 ist innerhalb von wenigen Minuten gut erreichbar, der Bahnhof (Bahn- Haltepunkt) Hohenstein-Ernstthal ist ebenfalls fußläufig in ca. 2 Minuten erreichbar.
Die Wohnung ist also auch für Pendler ohne PKW nach Chemnitz oder Zwickau besonders gut geeignet.
Infrastruktur (im Umkreis von 5 km):
Apotheke, Lebensmittel-Discount, Allgemeinmediziner, Kindergarten, Grundschule, Gymnasium, Öffentliche Verkehrsmittel
# Sonstiges
Heizungsart: Zentralheizung
Energieträger: Fernwärme
Besonders hervorheben wollen wir das helle und große Wohnzimmer, es lässt viel Spielraum für Individualität und eine gepflegte Einrichtung.
ohne-makler (OM) ist weder Anbieter noch Vermittler der Immobilie. OM betreibt eine Plattform für Immobilieneigentümer, die unter anderem die gleichzeitige Veröffentlichung einzelner Inserate auf mehreren Immobilienportalen ermöglicht. Die Inhalte dieser Inserate werden ausschließlich von Dritten verantwortet. Für die Richtigkeit, Vollständigkeit oder Rechtmäßigkeit der Angaben übernimmt OM keine Haftung. Hinweise auf mögliche Rechtsverstöße können jederzeit gemeldet werden und werden nach Prüfung umgehend bearbeitet.
# Energie
– Energieausweis: Energiebedarfsausweis
– Endenergiebedarf: 78 kWh/(m²*a)
– Energieeffizienzklasse: C
– Baujahr: 1904
– Heizungsart: Zentralheizung
– Wesentliche Energieträger: Fernwärme
Anbieter-Objekt-ID: 291362



















