Beschreibung
Die Einheit überzeugt durch eine helle, freundliche Atmosphäre, eine großzügige Raumhöhe sowie eine durchdachte Raumaufteilung.
Ein Aufzug sorgt für eine komfortable und barrierefreie Erreichbarkeit der Räumlichkeiten.
Im Gebäude befinden sich bereits eine chirurgische Praxis sowie eine physiotherapeutische Praxis. Dadurch eignet sich die Einheit besonders gut für weitere medizinische, therapeutische oder gesundheitsnahe Dienstleistungen.
Auch klassische Büro, Dienstleistungs- oder Beratungsunternehmen profitieren von der etablierten Lage und der sehr guten Erreichbarkeit.
# Ausstattung
Balkon, Fahrstuhl, Gäste-WC, Barrierefrei
Bemerkungen:
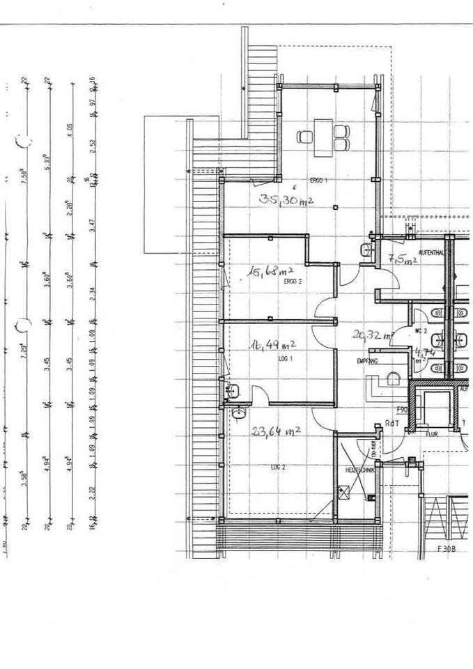
Die Einheit besteht aus 4 Räumen (3 davon mit einem Handwaschbecken)
zusätzlich 1 Personalraum/Küche und 2 WCs und einen Balkon
Der Flur eignet sich als Wartezone bzw. Anmeldung
# Weitere Angaben
– Separate WCs: 1
– Verfügbar ab: nach Absprache
– Objektzustand: gepflegt
– Warmmiete: 1.490,00 €
– Bürofläche: ca. 123 m²
# Lagebeschreibung
Die Immobilie liegt in zentraler Lage von Heinsberg mit guter Infrastruktur.
Bushaltestellen und der Bahnhof sind in ca. 3- 4 Min Fußweg und die Autobahn A46 in wenigen Minuten Fahrzeit zu erreichen.
Für Besucher und Mitarbeiter stehen Stellplätze direkt vor dem Gebäude zur gemeinschaftlichen Nutzung bereit. Zusätzlich befinden sich direkt neben dem Objekt sowie gegenüber weitere kostenfreie öffentliche Parkplätze.
Infrastruktur (im Umkreis von 5 km):
Apotheke, Lebensmittel-Discount, Allgemeinmediziner, Kindergarten, Grundschule, Hauptschule, Realschule, Gymnasium, Gesamtschule, Öffentliche Verkehrsmittel
# Sonstiges
Heizungsart: Zentralheizung
Energieträger: Gas
Makleranfragen nicht erwünscht. Nach § 7 UWG sind unaufgeforderte Kontaktaufnahmen durch Makler ohne ausdrückliche Einwilligung des Empfängers verboten!
ohne-makler (OM) ist weder Anbieter noch Vermittler der Immobilie. OM betreibt eine Plattform für Immobilieneigentümer, die unter anderem die gleichzeitige Veröffentlichung einzelner Inserate auf mehreren Immobilienportalen ermöglicht. Die Inhalte dieser Inserate werden ausschließlich von Dritten verantwortet. Für die Richtigkeit, Vollständigkeit oder Rechtmäßigkeit der Angaben übernimmt OM keine Haftung. Hinweise auf mögliche Rechtsverstöße können jederzeit gemeldet werden und werden nach Prüfung umgehend bearbeitet.
# Energie
– Energieausweis: Energiebedarfsausweis
– Endenergieverbrauch Strom: 8 kWh/(m²*a)
– Endenergieverbrauch Wärme: 350 kWh/(m²*a)
– Heizungsart: Zentralheizung
– Wesentliche Energieträger: Gas
Anbieter-Objekt-ID: 440433












