Helle 3,5‑Zimmer‑DG‑Wohnung – sehr geringe Heizkosten, ruhig im Grünen

520

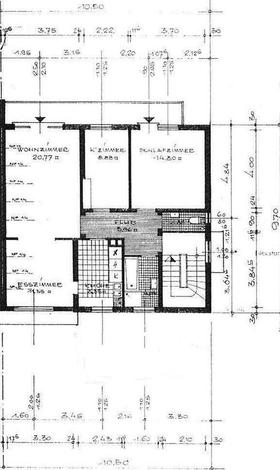
Die charmante Dachgeschosswohnung mit ca. 61 m² Wohnfläche befindet sich in einem gepflegten Mehrfamilienhaus. Die Wohnung überzeugt durch ihre gut geschnittenen 3,5 Zimmer, eine angenehme Wohnatmosphäre und eine energetisch sehr gute Dämmung, die…

Beschreibung

Die charmante Dachgeschosswohnung mit ca. 61 m² Wohnfläche befindet sich in einem gepflegten Mehrfamilienhaus.

Die Wohnung überzeugt durch ihre gut geschnittenen 3,5 Zimmer, eine angenehme Wohnatmosphäre und eine energetisch sehr gute Dämmung, die für niedrige Heizkosten sorgt.

Der Wohn- und Essbereich ist freundlich und hell, die Dachschrägen verleihen dem Raum eine gemütliche Note. Das Schlafzimmer bietet ausreichend Platz, zusätzlich steht ein weiteres Zimmer zur flexiblen Nutzung (z. B. Büro, Gästezimmer oder Kinderzimmer) zur Verfügung. Ein separates WC ergänzt das Tageslichtbad und erhöht den Wohnkomfort.

Die Wohnung eignet sich ideal für Singles, Paare oder kleine Familien, die naturnah wohnen und dennoch gut angebunden sein möchten.

# Ausstattung
Garten, Keller, Vollbad, Gäste-WC, Laminat, Fliesen

Bemerkungen:
Die Dachgeschosswohnung bietet eine praktische und gepflegte Ausstattung, die den Alltag angenehm gestaltet. Die Räume sind mit robusten, leicht zu pflegenden Bodenbelägen versehen und lassen sich flexibel möblieren. Das Bad ist funktional ausgestattet, ergänzt durch ein separates WC, was den Wohnkomfort erhöht.

Die vorhandenen Dachflächenfenster sorgen für gute Lichtverhältnisse und sind mit zeitgemäßen Isoliergläsern versehen. Die Küche bietet ausreichend Platz für eine individuell planbare Einbauküche. Heizkörper und Leitungen befinden sich in gutem Zustand, die energetische Dämmung unterstützt ein ausgeglichenes Raumklima.

Insgesamt präsentiert sich die Ausstattung solide, übersichtlich und ideal für Bewohner, die eine unkomplizierte und gut nutzbare Wohnumgebung bevorzugen.

# Weitere Angaben
– Separate WCs: 1
– Verfügbar ab: 01.06.2026
– Objektzustand: gepflegt
– Bodenbelag: Fliesen, Laminat

– Garagen/Stellplatzmiete: 50,00 €

# Lagebeschreibung
Die Wohnung befindet sich in Esthal, einem idyllisch gelegenen Ort im Pfälzerwald. Die Umgebung ist geprägt von viel Grün, Ruhe und einem hohen Freizeitwert. Wanderwege, Naturpfade und Aussichtspunkte liegen praktisch vor der Haustür.

Trotz der ruhigen Lage ist Esthal gut an die umliegenden Gemeinden angebunden.
Einkaufsmöglichkeiten, Schulen und ärztliche Versorgung sind in den Nachbarorten schnell erreichbar. Die Region bietet eine hohe Lebensqualität für alle, die Naturverbundenheit und Erholung schätzen.
Infrastruktur (im Umkreis von 5 km):
Apotheke, Lebensmittel-Discount, Kindergarten, Grundschule, Realschule, Öffentliche Verkehrsmittel

# Sonstiges
Heizungsart: Zentralheizung
Energieträger: Gas

Für den Abschluss eines Mietvertrags wird ein aktueller Einkommensnachweis sowie eine positive Bonitätsauskunft (SCHUFA o. ä.) benötigt. Die Vermietung erfolgt ausschließlich an Personen mit gesicherter und regelmäßiger Zahlungsfähigkeit. Tierhaltung ist in dieser Wohnung leider nicht gestattet.

Makleranfragen nicht erwünscht. Nach § 7 UWG sind unaufgeforderte Kontaktaufnahmen durch Makler ohne ausdrückliche Einwilligung des Empfängers verboten!

ohne-makler (OM) ist weder Anbieter noch Vermittler der Immobilie. OM betreibt eine Plattform für Immobilieneigentümer, die unter anderem die gleichzeitige Veröffentlichung einzelner Inserate auf mehreren Immobilienportalen ermöglicht. Die Inhalte dieser Inserate werden ausschließlich von Dritten verantwortet. Für die Richtigkeit, Vollständigkeit oder Rechtmäßigkeit der Angaben übernimmt OM keine Haftung. Hinweise auf mögliche Rechtsverstöße können jederzeit gemeldet werden und werden nach Prüfung umgehend bearbeitet.

# Energie
– Energieausweis: Energiebedarfsausweis
– Endenergiebedarf: 85 kWh/(m²*a)
– Baujahr: 1960
– Heizungsart: Zentralheizung
– Wesentliche Energieträger: Gas

Anbieter-Objekt-ID: 437557