Beschreibung
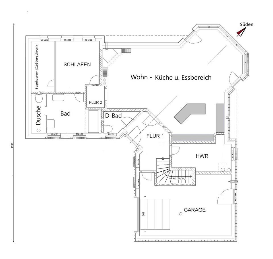
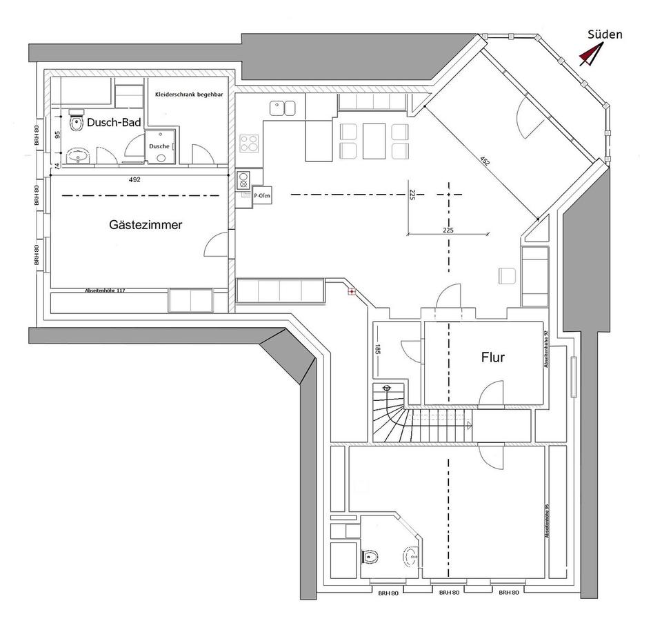
Dieses Haus kann aufgrund der Raumaufteilung und Ausstattung sowohl als Einfamilienhaus oder auch als zwei separate Wohneinheiten genutzt werden, z.B. als Mehrgenerationenhaus, Vermietung und selbst genutztes Feriendomizil.
Der Preis dieses Objektes basiert auf ein anerkanntes Wertegutachten.
Das Haus wurde in Massivbauweise in hoher Qualität
gebaut und wird mit einer Gasbrennwertherme betrieben. Für den Einbau andere Heizsysteme wurde bereits eine hocheffiziente Fußbodenheizung verbaut, die schon mit sehr niedrigen Vorlauftemperaturen auskommt.
– im EG zusätzlich: ein mit Schamottesteinen gemauerter Kamin mit Holzfeuerung, Wärmespeicher bis zu 48 Std.
– im OG zusätzlich: ein Pelletofen in Keramik-Ausführung Marke MCZ Betriebsautonomie 30 Std., über Fernbedienung programmierbar
Info: Baubeginn des Hauses war 2013, der Erstbezug erfolgte 2016.
Wohnbereiche:
– 2 Einbauküchen, eine im EG und eine im OG mit Kücheneinbaugeräte der Marke NEFF. EG und OG sind separat nutzbar.
– Maßgefertigte Eichenmöbel in allen Räumen. Im OG
speziell für die Abseiten gefertigt, was die Raumfläche erheblich vergrößert.
– begehbare Kleiderschränke
– Innentüren und Zargen in hoher Qualität, Echtholzfurniert mit Edelstahl Beschlägen.
– Badheizkörper / Handtuchwärmer in allen Bädern
– Decken-LED-Strahler in Edelstahl der Marke Paulmann in allen Räumen sowie Nachtbeleuchtung
– Gegensprechanlage im EG, OG, Garage und Torzufahrt der Marke Gira in Edelstahl
– Schalter und Steckdosen der Marke Gira in Edelstahl
– Glasfaseranschluss vorhanden
– TV SAT-Anschlüsse in allen Räumen (8 Anschlüsse)
– Lautsprecheranschlüsse in den Wohnbereichen in Wand und Decke vorbereitet
Garage:
– gefliest
– Fußbodenheizung
– elektrisches Garagentor mit ISO-Frame
– Warm- und Kaltwasseranschluss
– Fußbodenablauf
– Starkstromanschluss
– Stereo Radio UP der Marke Gira
– Haussprechanlage der Marke Gira
Außenanlage / Grundstück:
– Zufahrtstor und Pforte elektrisch mit Gegensprechanlage
– das Grundstück ist voll umfriedet mit einem Zaun und einer Buchenhecke zum Nachbarn
– der Hof ist gepflastert mit Wendemöglichkeit und einer Abstellfläche für drei Pkws
– gepflasterter Weg rund ums Haus und Terrasse
– zwei Terrassen in Südausrichtung teils überdacht
– einen Balkon in Südausrichtung
– auf dem Grundstück verteilt, mehrere Außenwasserhähne und Steckdosen
– Rasenfläche mit automatische Bewässerungsanlage
– Grüne Wasseruhr für die Außenbewässerung (Abwasser frei)
– Außenlampen in Edelstahl
– Beete mit Zierpflanzen runden das pflegeleichte Grundstück ab.
# Ausstattung
Balkon, Terrasse, Garten, Vollbad, Duschbad, Einbauküche, Gäste-WC, Kamin, Teppichboden, Fliesen
# Weitere Angaben
Separate WCs: 1
Verfügbar ab: nach Absprache
Objektzustand: neuwertig
Bodenbelag: Fliesen, Teppich
Grundstücksfläche: ca. 907 m²
# Lagebeschreibung
Das Haus liegt in einer malerischen Landschaft, abseits der Hauptverkehrswege in einer Sackgasse und ist dennoch gut erreichbar. Viele attraktive Ziele zur Freizeitgestaltung liegen im nahen Umfeld.
Verkehrsanbindungen und Entfernungen im Überblick:
– Autobahn A19 / Abfahrt Malchow ca. 3 km
– Berlin ca. 150 km
– Hamburg ca. 225 km
– Rostock ca. 70 km
In der Inselstadt Malchow (ca. 6,5 km) gibt es diverse Einkaufsmöglichkeiten und Discounter, Baumärkte, Restaurants, Ärzte, Schulen und Kindergärten.
Infrastruktur (im Umkreis von 5 km):
Kindergarten, Öffentliche Verkehrsmittel
# Sonstiges
Heizungsart: Fußbodenheizung
Energieträger: Gas
Besonders erwähnenswert für Bootsbesitzer oder die, die es werden wollen, ist das Vorrecht auf einen Liegeplatz in dem kleinen Anliegerhafen in unmittelbarer Nähe des Hauses.
Eine Badestelle mit direktem Zugang vom Haus (ca. 50 m) ist ebenfalls vorhanden.
Makleranfragen nicht erwünscht. Nach § 7 UWG sind unaufgeforderte Kontaktaufnahmen durch Makler ohne ausdrückliche Einwilligung des Empfängers verboten!
ohne-makler (OM) ist weder Anbieter noch Vermittler der Immobilie. OM betreibt eine Plattform für Immobilieneigentümer, die unter anderem die gleichzeitige Veröffentlichung einzelner Inserate auf mehreren Immobilienportalen ermöglicht. Die Inhalte dieser Inserate werden ausschließlich von Dritten verantwortet. Für die Richtigkeit, Vollständigkeit oder Rechtmäßigkeit der Angaben übernimmt OM keine Haftung. Hinweise auf mögliche Rechtsverstöße können jederzeit gemeldet werden und werden nach Prüfung umgehend bearbeitet.
# Energie
Energieausweis: Energieverbrauchsausweis
Energieverbrauch: 38 kWh/(m²*a)
Energieeffizienzklasse: A
Heizungsart: Fußbodenheizung
Wesentliche Energieträger: Gas
Anbieter-Objekt-ID: 344099








































