Großzügige Erdgeschoss-Wohnung mit Terasse und Gartenanteil

555.000

Diese charmante Wohnung befindet sich in einem äußerst gepflegten Mehrfamilienhaus in ruhiger Lage. Der exklusive Eindruck setzt sich im Inneren des 8-Parteienhauses mit Tiefgarage fort. Die Wohnung teilt sich im Erdgeschoss in zwei Schlafzimmer, …

Beschreibung

Diese charmante Wohnung befindet sich in einem äußerst gepflegten Mehrfamilienhaus in ruhiger Lage. Der exklusive Eindruck setzt sich im Inneren des 8-Parteienhauses mit
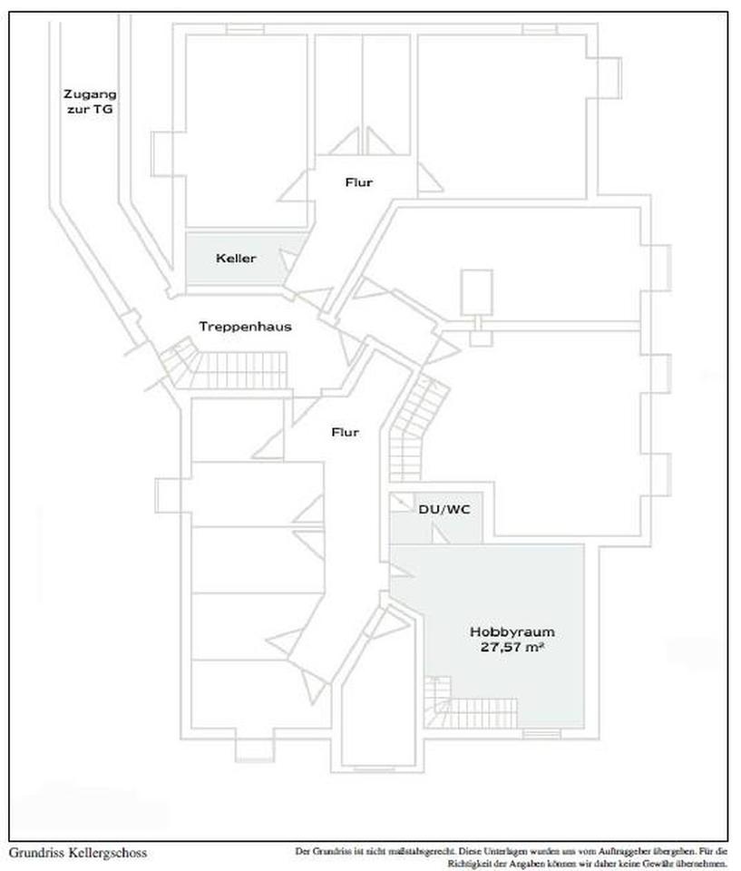
Tiefgarage fort. Die Wohnung teilt sich im Erdgeschoss in zwei Schlafzimmer, Bad, Gäste-WC, Diele und Flur sowie in eine abgegrenzte Küche und den großzügigen Wohn-
Essbereich. Nach Süden und Westen umschließt der eigene Gartenanteil und die Terrasse die Räumlichkeiten. Weiße Sprossenfenster, weiße Innentüren und die wohnungseigene weiß lackierte Holztreppe ins Untergeschoss unterstreichen den freundlichen Licht durchfluteten Charakter der Wohnung. Die ausgebaute Fläche im Untergeschoss von ca. 28 m² ist mit 14 m² in der Wohnflächenangabe beinhaltet. Dieser Raum hat eine lichte Höhe von 2,36 m und ein Fenster
mit Abböschung in einer Größe im Mauerwerk von ca. 1,34 m². Vom Wohnraum öffnen sich große Fenstertüren zum Park ähnlich gestalteten Garten. Ein Außenstellplatz und zwei Tiefgaragenstellplätze (Wert je 25.000 EUR) sind im
Kaufpreis bereits enthalten. Die Wohnung wird komplett als Paket incl. Stellplätze verkauft.

# Ausstattung
Terrasse, Garten, Keller, Vollbad, Duschbad, Einbauküche, Gäste-WC, Parkett, Teppichboden, Fliesen

Bemerkungen:
In den letzten Jahren wurden folgende Renovierungsarbeiten in der Wohnung durchgeführt: Eichenparkettfußboden im Wohnzimmer und Flur. Neue hochwertige Einbauküche (im Kaufpreis enthalten).

# Weitere Angaben
– Separate WCs: 1
– Verfügbar ab: nach Absprache
– Objektzustand: gepflegt
– Bodenbelag: Fliesen, Parkett, Teppich

# Lagebeschreibung
Fünf Kilometer nordwestlich des Chiemsees liegt zwischen sanften Hügeln und zahlreichen Seen der Ort Eggstätt. Die Eggstätter-Hemhofer Seenplatte ist Eggstätts ganzer Stolz, denn sie gehört zum ältesten Naturschutzgebiet Bayerns (1 9 3 9). Schon vor 100 Jahren haben die ersten „Sommerfrischler“ den Reiz des Ortes für sich entdeckt.
Traumhafte Wander- und Radwege führen durch eine bezaubernde und einzigartige Seenlandschaft. Viele Kultur- und Unterhaltungsangebote in und um Eggstätt laden ein: Im Haus des Gastes oder an anderen Veranstaltungsorten findet übers Jahr vom Hoagascht bis zum Heimat- und Brauchtumsabend, vom Kammer- bis zum Standkonzert, vom Bauerntheater bis zum Waldfest ein abwechslungsreiches Programm statt. Für die aktive Freizeitgestaltung bieten der Chiemsee und die Eggstätter Seenplatte optimale Bade- und Segelmöglichkeiten. Wandern, Klettern, Radfahren und alle Varianten des Wintersports bieten die nahe gelegenen Chiemgauer Alpen. Auch für Golfsportliebhaber und Pferdebegeisterte ist in der Nähe gesorgt. Bad Endorf mit 8 km, Prien am Chiemsee mit 10 km, Rosenheim und Traunstein mit jeweils 23 km befinden sind in naher
Umgebung. In Bad Endorf finden Sie den Bahnanschluss sowohl in Richtung München, als auch in Richtung Salzburg. Darüber hinaus bietet der Ort Einkaufsmöglichkeiten, Kindergärten und eine Grundschule. Alle weiterführenden Schulen finden Sie in Prien a. Ch., Traunstein und Rosenheim. Der Flughafen Salzburg kann in ca. 40 Min. erreicht werden, der Münchner Flughafen in ca. 90 Min. Eggstätt ist ein zauberhafter Ort, mit bayerischem Charme und echter Gastfreundschaft.
Infrastruktur (im Umkreis von 5 km):
Apotheke, Lebensmittel-Discount, Allgemeinmediziner, Kindergarten, Grundschule, Öffentliche Verkehrsmittel

# Sonstiges
Heizungsart: Zentralheizung
Energieträger: Öl

Makleranfragen nicht erwünscht. Nach § 7 UWG sind unaufgeforderte Kontaktaufnahmen durch Makler ohne ausdrückliche Einwilligung des Empfängers verboten!

ohne-makler (OM) ist weder Anbieter noch Vermittler der Immobilie. OM betreibt eine Plattform für Immobilieneigentümer, die unter anderem die gleichzeitige Veröffentlichung einzelner Inserate auf mehreren Immobilienportalen ermöglicht. Die Inhalte dieser Inserate werden ausschließlich von Dritten verantwortet. Für die Richtigkeit, Vollständigkeit oder Rechtmäßigkeit der Angaben übernimmt OM keine Haftung. Hinweise auf mögliche Rechtsverstöße können jederzeit gemeldet werden und werden nach Prüfung umgehend bearbeitet.

# Energie
– Energieausweis: Energieverbrauchsausweis
– Energieverbrauch: 128 kWh/(m²*a)
– Energieverbrauch für Warmwasser enthalten
– Heizungsart: Zentralheizung
– Wesentliche Energieträger: Öl

Anbieter-Objekt-ID: 429117