Beschreibung
Diese Wohnung war für uns über Jahre ein sehr angenehmes Zuhause – vor allem wegen der Ruhe, des großzügigen Platzangebots und der flexiblen Raumaufteilung.
Sie befindet sich im 1. Obergeschoss eines kleinen Mehrparteienhauses mit nur drei Wohneinheiten, in einer ruhigen Sackgasse ohne Durchgangsverkehr. Die Lage gehört offiziell zu Soyen, liegt jedoch räumlich näher an Wasserburg am Inn als am Ortskern von Soyen.
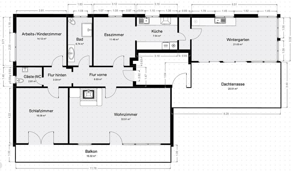
Die ca. 124 m² Wohnfläche verteilen sich auf 3,5 Zimmer:
•ein großzügiges Wohnzimmer mit Zugang zum Balkon
•ein Schlafzimmer, ebenfalls mit Balkonzugang
•ein vollwertiges Arbeitszimmer, ideal für Homeoffice
•ein Esszimmer, das offen an die Küche anschließt und daher als halbes Zimmer zählt
Der Wintergarten ist nicht beheizt und gehört nicht zur Wohnfläche. Durch seine gute Isolierung lässt er sich jedoch ganzjährig nutzen. Von hier aus besteht der direkte Zugang zur großen Dachterrasse, die ausschließlich zur Wohnung gehört. Zusätzlich gibt es einen abschließbaren Zugang zur Dachterrasse über das Treppenhaus, was im Alltag sehr praktisch ist.
Die Wohnung ist gepflegt und ist sofort beziehbar.
Das Badezimmer verfügt über eine Dusche, zusätzlich ist ein separates Gäste-WC vorhanden. Die Einbauküche ist funktional und gehört zur Wohnung. Im Winter sorgt der Kachelofen im Wohnzimmer für angenehme Wärme.
Zur Wohnung gehören außerdem zwei geräumige Kellerräume, eine Garage mit Wallbox für Elektrofahrzeuge sowie ein zusätzlicher Außenstellplatz. Auf dem Dach befindet sich eine Photovoltaikanlage, die gemeinschaftlich von der Hausgemeinschaft genutzt wird. Ein Glasfaseranschluss ist im Haus ebenfalls vorhanden.
# Ausstattung
Balkon, Wintergarten, Keller, Dachterrasse, Duschbad, Einbauküche, Gäste-WC, Kamin, Parkett, Laminat, Fliesen
# Weitere Angaben
Separate WCs: 1
Verfügbar ab: sofort
Objektzustand: gepflegt
Bodenbelag: Fliesen, Parkett, Laminat
# Lagebeschreibung
Die Wohnung liegt in ruhiger Wohnlage am Gemeinderand von Soyen, ohne Durchgangsverkehr, und ist näher an Wasserburg am Inn gelegen als am Ortskern von Soyen. Die Umgebung ist ruhig und angenehm zurückgezogen, ohne abgelegen zu sein.
Wasserburg am Inn mit Einkaufsmöglichkeiten, Ärzten, Schulen, Gastronomie und Bahnhof ist in kurzer Zeit erreichbar. Einrichtungen des täglichen Bedarfs sind sowohl in Richtung Soyen als auch in Richtung Wasserburg vorhanden. Die Lage eignet sich besonders für Menschen, die ruhig wohnen, aber dennoch gut angebunden sein wollen.
Infrastruktur (im Umkreis von 5 km):
Apotheke, Lebensmittel-Discount, Allgemeinmediziner, Kindergarten, Grundschule, Hauptschule, Realschule, Gymnasium, Gesamtschule, Öffentliche Verkehrsmittel
# Sonstiges
Heizungsart: Zentralheizung
Energieträger: Öl
Sonstige Unterlagen:
– https://www.ohne-makler.net/immobilie/file/1593638.pdf (Energieausweis)
Makleranfragen nicht erwünscht. Nach § 7 UWG sind unaufgeforderte Kontaktaufnahmen durch Makler ohne ausdrückliche Einwilligung des Empfängers verboten!
ohne-makler (OM) ist weder Anbieter noch Vermittler der Immobilie. OM betreibt eine Plattform für Immobilieneigentümer, die unter anderem die gleichzeitige Veröffentlichung einzelner Inserate auf mehreren Immobilienportalen ermöglicht. Die Inhalte dieser Inserate werden ausschließlich von Dritten verantwortet. Für die Richtigkeit, Vollständigkeit oder Rechtmäßigkeit der Angaben übernimmt OM keine Haftung. Hinweise auf mögliche Rechtsverstöße können jederzeit gemeldet werden und werden nach Prüfung umgehend bearbeitet.
# Energie
Energieausweis: Energieverbrauchsausweis
Energieverbrauch: 108 kWh/(m²*a)
Energieeffizienzklasse: D
Heizungsart: Zentralheizung
Wesentliche Energieträger: Öl
Anbieter-Objekt-ID: 427921

































