Geräumige Doppelhaushälfte nähe Münster mit Garten und Garage

1.980

Objektbeschreibung: Die neuwertige Doppelhaushälfte bietet ca. 169 m² Wohnfläche auf einem ca. 352 m² großen Grundstück. Sie eignet sich ideal für berufstätige Paare oder Familien, die Wert auf Wohnqualität, Ruhe und eine gute Infrastruktur legen….

Beschreibung

# Objektbeschreibung
Die neuwertige Doppelhaushälfte bietet ca. 169 m² Wohnfläche auf einem ca. 352 m² großen Grundstück. Sie eignet sich ideal für berufstätige Paare oder Familien, die Wert auf Wohnqualität, Ruhe und eine gute Infrastruktur legen. Die Lage verbindet ein angenehmes Wohnumfeld in Telgte mit kurzen Wegen nach Münster sowie einer guten überregionalen Anbindung.

Das Haus wurde kürzlich umfassend renoviert, z.B. neue Vinylböden und Malerarbeiten. Es befindet sich in einem gepflegten und bezugsfertigen Zustand.

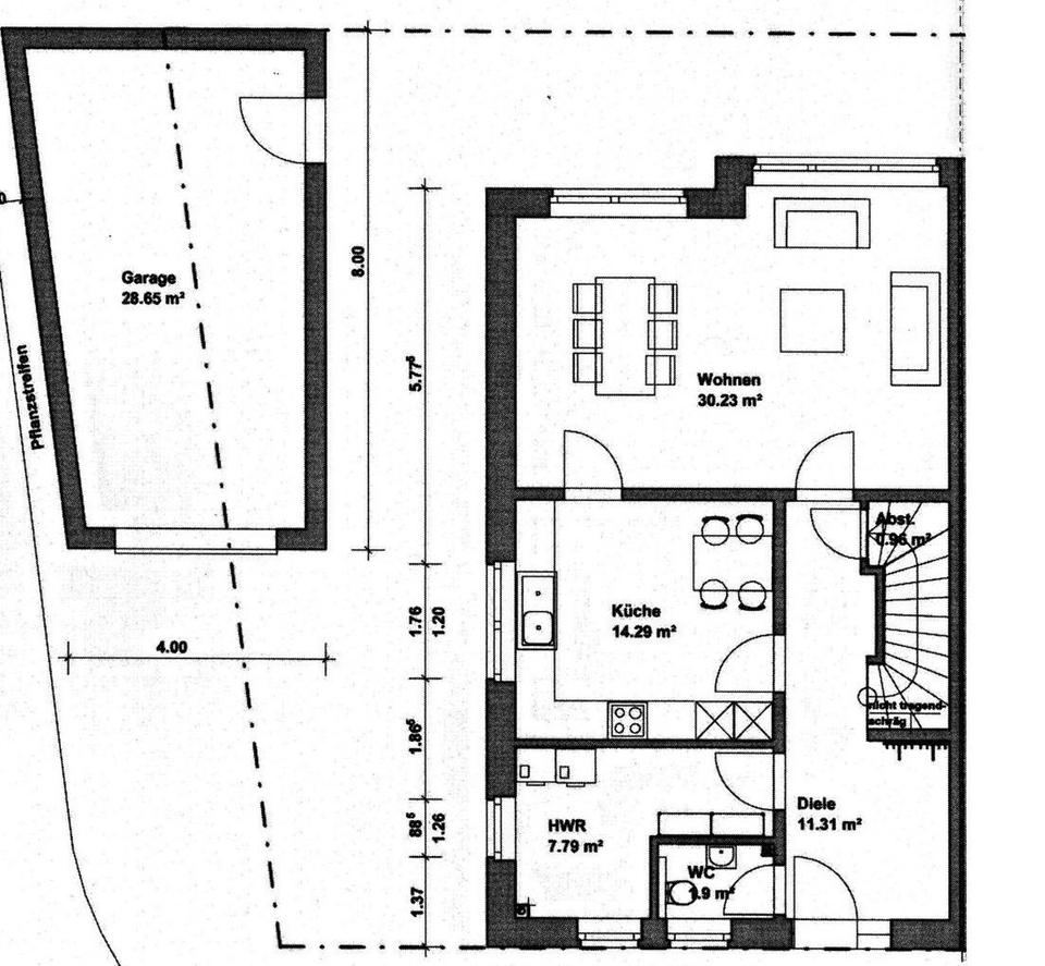
Die Immobilie verfügt über zwei Vollgeschosse sowie ein ausgebautes Dachgeschoss und bietet fünf Zimmer, eine großzügige Wohnküche, zwei Tageslichtbäder, ein Gäste-WC sowie einen Hauswirtschaftsraum. Die gut durchdachte Raumaufteilung eignet sich sowohl für komfortables Wohnen als auch für die Einrichtung eines Homeoffice. Netzwerkanschlüsse sind in allen Wohnräumen vorhanden.

Eine überdurchschnittlich große Garage (ca. 30 m²) sowie ein zusätzlicher Stellplatz bieten Platz für Ihre Fahrzeuge, Fahrräder und Gartengeräte. Der Garten und die Terrasse sind nach Südosten ausgerichtet und bieten ruhige Erholungsmöglichkeiten im Freien.

Die Beheizung erfolgt über eine Gasheizung in Kombination mit Solarthermie. Dies ermöglicht eine effiziente und wirtschaftliche Energienutzung.

Raumaufteilung

Erdgeschoss: Küche, Wohnzimmer, Hauswirtschaftsraum, Gäste-WC, Abstellraum

Obergeschoss: Drei Schlafzimmer, Tageslichtbad mit Badewanne und Dusche

Dachgeschoss: Gäste-/Arbeitszimmer, Tageslichtbad mit Dusche, Heizungsraum mit weiteren Abstellmöglichkeiten

# Ausstattung
Terrasse, Garten, Vollbad, Gäste-WC, Fliesen

Bemerkungen:
Die Immobilie verfügt über eine gehobene, funktional durchdachte Ausstattung mit Fokus auf Wohnkomfort und Alltagstauglichkeit:

– dreifach verglaste Fenster
– elektrische Rollläden in allen Wohnräumen
– Satelliten- und Netzwerkanschlüsse in allen Wohnräumen
– Fußbodenheizung im gesamten Erdgeschoss sowie im Hauptbad
– Hauptbad mit Badewanne, Dusche und Handtuchheizkörper
– zeitlose Fliesen in Anthrazit und Weiß im Erdgeschoss und in den Bädern
– hochwertiger Vinylbodenbelag in den übrigen Wohnräumen
– geräumiger, klar strukturierter Eingangsbereich
– große, extralange Garage mit zusätzlichem Stauraum für Fahrräder, Gartengeräte usw. (Gesamtlänge ca. 7,50 m)

# Weitere Angaben
Separate WCs: 1
Verfügbar ab: nach Absprache
Objektzustand: neuwertig
Bodenbelag: Fliesen, Kunststoff

Grundstücksfläche: ca. 352 m²

# Lagebeschreibung
Die Immobilie befindet sich im Südosten von Telgte in einer ruhigen Spielstraße mit angenehmer Nachbarschaft. Die Umgebung bietet ein entspanntes Wohnumfeld bei gleichzeitig guter regionaler Anbindung. Münster ist sowohl mit dem PKW als auch mit dem öffentlichen Nahverkehr gut erreichbar, sodass sich Arbeits- und Alltagswege flexibel gestalten lassen.

Verkehrsanbindung:

– Bahnhof Telgte in ca. 1,8 km Entfernung, mit dem Fahrrad schnell erreichbar

– Regelmäßige Bus- und Zugverbindungen nach Münster, Warendorf und Bielefeld

– Ca. 13 Minuten Fahrzeit mit der Bahn vom Bahnhof Telgte zum Hauptbahnhof Münster

– Ca. 25 Minuten Fahrtzeit zum Flughafen Münster/Osnabrück (FMO)

Telgte verfügt über eine vollständige Infrastruktur mit Einkaufsmöglichkeiten für den täglichen Bedarf, Ärzten, Apotheken sowie allen Schulformen und mehreren Kindergärten. Die historische Innenstadt mit Cafés, Restaurants und kleinen Geschäften ist in wenigen Minuten zu Fuß oder mit dem Fahrrad erreichbar und ergänzt das ruhige Wohnumfeld ideal.
Infrastruktur (im Umkreis von 5 km):
Apotheke, Lebensmittel-Discount, Allgemeinmediziner, Kindergarten, Grundschule, Hauptschule, Realschule, Gymnasium, Öffentliche Verkehrsmittel

# Sonstiges
Heizungsart: Fußbodenheizung
Energieträger: Gas

Bitte geben Sie bei Ihrer Anfrage weiterführende Informationen an, insbesondere zur Anzahl der einziehenden Personen und zur beruflichen Tätigkeit. Vielen Dank!

Hinweis: die angegebenen Nebenkosten verstehen sich exkl. Heizkosten!

ohne-makler (OM) ist weder Anbieter noch Vermittler der Immobilie. OM betreibt eine Plattform für Immobilieneigentümer, die unter anderem die gleichzeitige Veröffentlichung einzelner Inserate auf mehreren Immobilienportalen ermöglicht. Die Inhalte dieser Inserate werden ausschließlich von Dritten verantwortet. Für die Richtigkeit, Vollständigkeit oder Rechtmäßigkeit der Angaben übernimmt OM keine Haftung. Hinweise auf mögliche Rechtsverstöße können jederzeit gemeldet werden und werden nach Prüfung umgehend bearbeitet.

# Energie
Energieausweis: Energieverbrauchsausweis
Energieverbrauch: 35 kWh/(m²*a)
Energieeffizienzklasse: A
Heizungsart: Fußbodenheizung
Wesentliche Energieträger: Gas

Anbieter-Objekt-ID: 421313