Beschreibung
# Ausstattung
Garten, Keller, Duschbad, Sonstiges (s. Text)
Bemerkungen:
Die Schaufenster 2008 mit doppelten Scheiben, unter Erhalt der alten Profile, neu verglast. Die restlichen Fenster wurden mit Altbauholzfenstern ersetzt. Merantifenster, aus zertifiziertem Anbau, Firma Bröcking.
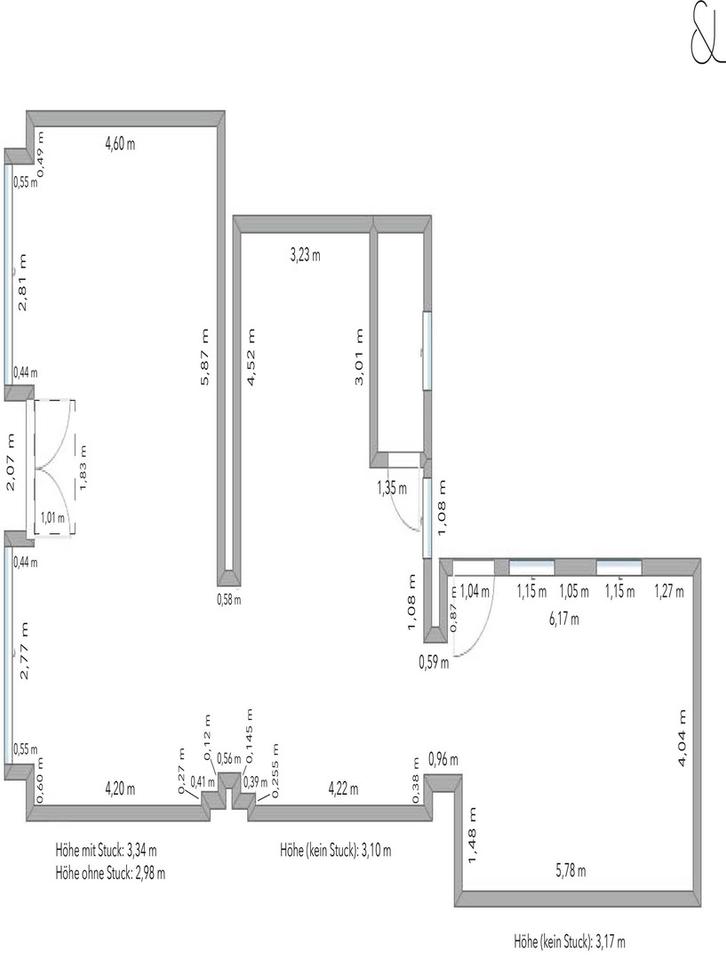
Der vordere Verkaufsraum hat eine Deckenhöhe von 3,70m, die Originalstuckleiste von 1907 ziert die Decke.
# Weitere Angaben
– Verfügbar ab: 30.06.2026
– Objektzustand: saniert
– Bürofläche: ca. 110 m²
# Lagebeschreibung
Das Ladenlokal liegt im vielseitigen Szenestadtteil Flingern – Nord, auf einer der beliebtesten Einkaufsstraßen des Viertels. Flingern- Nord ist stark künstlerisch geprägt und In den letzten Jahren haben sich namhafte Galerien angesiedelt.
Der Standort ist 2,7 km von Königsallee (Stadtzentrum) und 1,6 km vom Hauptbahnhof entfernt.
Das Objekt ist mit mehreren Bus-, Straßenbahn-, U-Bahn- sowie S-Bahnlinien sehr gut an die öffentlichen Verkehrsmittel angebunden.
# Sonstiges
Heizungsart: Fußbodenheizung
Energieträger: Gas
Bitte beachten Sie, dass ich die Strom- und Heizkosten nicht ausweisen konnte. Bei Interesse maile ich Ihnen gerne die aktuelle NK Abrechnung von 2024 zu. Auf manchen Fotos sieht der Fußboden gelblich aus, das entspricht nicht der wirklichen Farbe. Der graue Farbton ist authentisch.
Das Ladenlokal ist zur Zeit vermietet. Bei „Eigenbedarf“ zählen die gesetzlichen Bestimmungen.(Eine Kündigung ist nur ordentlich unter Einhaltung der gesetzlichen Frist (§ 580a BGB: 6 Monate zum Quartalsende) oder außerordentlich aus wichtigem Grund möglich).
Es darf lt. Teilungserklärung kein Gaststätte, Spielothek, Waschsalon oder Ähnliches errichtet werden.
Makleranfragen nicht erwünscht. Nach § 7 UWG sind unaufgeforderte Kontaktaufnahmen durch Makler ohne ausdrückliche Einwilligung des Empfängers verboten!
ohne-makler (OM) ist weder Anbieter noch Vermittler der Immobilie. OM betreibt eine Plattform für Immobilieneigentümer, die unter anderem die gleichzeitige Veröffentlichung einzelner Inserate auf mehreren Immobilienportalen ermöglicht. Die Inhalte dieser Inserate werden ausschließlich von Dritten verantwortet. Für die Richtigkeit, Vollständigkeit oder Rechtmäßigkeit der Angaben übernimmt OM keine Haftung. Hinweise auf mögliche Rechtsverstöße können jederzeit gemeldet werden und werden nach Prüfung umgehend bearbeitet.
# Energie
– Energieausweis: Energiebedarfsausweis
– Endenergieverbrauch Strom: 100 kWh/(m²*a)
– Endenergieverbrauch Wärme: 100 kWh/(m²*a)
– Heizungsart: Fußbodenheizung
– Wesentliche Energieträger: Gas
Anbieter-Objekt-ID: 435564



















