Frisch sanierte Dachgeschosswohnung mit Klimatisierung und Balkon am Ortsrand

785

Wichtiger Hinweis: Alle Bilder VOR der Renovierung! Diese charmante Dachgeschosswohnung befindet sich in ruhiger Ortsrandlage von 56244 Freilingen und erstreckt sich über das 1. Obergeschoss eines gepflegten Mehrfamilienhauses. Die Wohnung wird de…

Beschreibung

Wichtiger Hinweis: Alle Bilder VOR der Renovierung!

Diese charmante Dachgeschosswohnung befindet sich in ruhiger Ortsrandlage von 56244 Freilingen und erstreckt sich über das 1. Obergeschoss eines gepflegten Mehrfamilienhauses.
Die Wohnung wird derzeit umfassend renoviert und modernisiert, sodass künftige Mieter von einem frischen, zeitgemäßen Wohngefühl profitieren.

Helle Räume & gemütlicher Dachcharakter:
Großzügige Fensterflächen, Dachschrägen und ein freundlicher Laminatboden sorgen für eine warme, einladende Wohnatmosphäre. Der offene Wohn- und Essbereich bietet viel Platz für individuelle Gestaltungsmöglichkeiten und überzeugt durch einen wunderschönen Ausblick ins Grüne.

Neuer Balkon – Wohnen mit Weitblick:
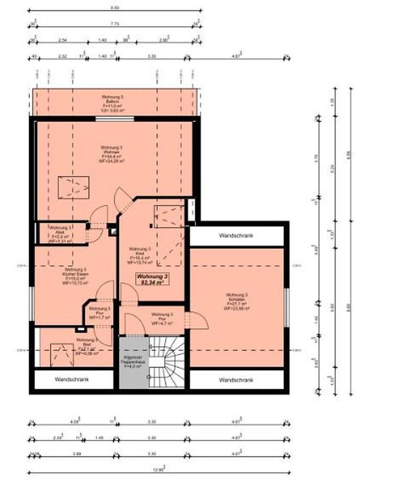
Aktuell wird ein neuer Balkon gemäß Zeichnung angebaut, der sich direkt an den Wohnbereich anschließt. Dieser bietet nicht nur zusätzlichen Freiraum, sondern macht die Wohnung besonders attraktiv für alle, die Ruhe, Natur und frische Luft genießen möchten.

Moderne Klimageräte für optimalen Wohnkomfort:
Um die Wohnung zukunftsfähig und komfortabel zu gestalten, werden zusätzlich energieeffiziente Klimageräte installiert. Diese ermöglichen angenehme Temperaturen im Sommer wie im Winter und erhöhen den Wohnkomfort erheblich.

Praktischer Grundriss & vielseitige Nutzung:
Die Wohnung verfügt über eine durchdachte Raumaufteilung – ideal für Singles, Paare oder sogar Homeoffice-Nutzer:
– gemütlicher Wohn-/Essbereich
– gut geschnittene Schlafzimmer
– helle Küche mit viel Platz für eine Sitzgruppe
– modernes Bad (nach Renovierung)
– Abstellmöglichkeiten durch Einbauschränke
– freundlicher Eingangsbereich

Lage – Natur, Ruhe & kurze Wege:
Die Wohnung liegt am ruhigen Ortsrand von Freilingen, umgeben von Natur, Spazierwegen und Waldnähe. Gleichzeitig erreicht man umliegende Ortschaften wie Selters oder Hachenburg in wenigen Fahrminuten. Perfekt für alle, die entspannt wohnen möchten und dennoch eine gute Anbindung schätzen.

Objektzustand: Erstbezug nach Sanierung

# Ausstattung
Balkon, Keller, Einbauküche, Laminat, Fliesen

Bemerkungen:
Die Wohnung befindet sich seit Mitte März 2026 in der Komplett-Sanierung. Die Wohnung war über 15 Jahre vermietet und wird nun komplett frisch hergerichet, dazu zählen:
– Anbau eines neuen, überdachten Balkons
– Einbau von Klimageräten zum Kühlen im Sommer und effizienten Heizen im Winter
– Neue Decken, Wände und Böden
– Badezimmersanierung
– Neue Einbauküche
– Sanierung des Treppenhauses

# Weitere Angaben
– Verfügbar ab: nach Absprache
– Objektzustand: saniert
– Bodenbelag: Fliesen, Laminat, Kunststoff

# Lagebeschreibung
Die Wohnung befindet sich in ruhiger Wohnlage am Ortsrand von Freilingen – einer kleinen, staatlich anerkannten Erholungsgemeinde im Westerwald.
Die Heidestraße ist eine wohnfreundliche Anliegerstraße ohne Durchgangsverkehr – ideal für Mieter, die Wert auf Ruhe und ein angenehmes Wohnumfeld legen.

Umgebung & Freizeit
Freilingen ist umgeben von schöner, leicht hügeliger Westerwaldlandschaft. In der Nähe finden sich zahlreiche Weiher und Naturflächen, darunter der Haidenweiher, Postweiher und der Brinkenweiher – perfekt zum Spazierengehen, Radfahren oder für Familienausflüge. Auch Wanderwege und der Aussichtspunkt Helleberg liegen in der weiteren Umgebung.

Nahversorgung & Infrastruktur
In fußläufiger Umgebung befinden sich:
Metzgerei Kurt Jung & Sohn (Hohe Straße, ca. 470 m)
Freiwillige Feuerwehr Freilingen (ca. 380 m)
Postbox, Infostellen und kleinere Geschäfte im Ortskern

Die Grundversorgung ist im nahen Umfeld gegeben; größere Einkaufs- und Dienstleistungsangebote finden sich in den umliegenden Gemeinden wie Selters, Hachenburg oder Montabaur.

Verkehrsanbindung
Freilingen liegt verkehrsgünstig im Westerwaldkreis. Die Anbindung erfolgt über die L307 sowie umliegende Bundesstraßen Richtung Selters, Hachenburg und Montabaur.
Die Region ist für Pendler attraktiv, gleichzeitig aber ländlich und ruhig – ein idealer Kompromiss zwischen Arbeiten und Wohnen.

Gemeinschaft & Lebensqualität
Freilingen zeichnet sich durch ein aktives Dorfleben aus – von Feuerwehraktionen über örtliche Feste bis hin zu kulturellen Veranstaltungen. Die Gemeinde ist für ihre starke Gemeinschaft und hohe Lebensqualität bekannt.
Infrastruktur (im Umkreis von 5 km):
Apotheke, Lebensmittel-Discount, Allgemeinmediziner, Kindergarten, Öffentliche Verkehrsmittel

# Sonstiges
Heizungsart: Zentralheizung
Energieträger: Öl

Makleranfragen nicht erwünscht. Nach § 7 UWG sind unaufgeforderte Kontaktaufnahmen durch Makler ohne ausdrückliche Einwilligung des Empfängers verboten!

ohne-makler (OM) ist weder Anbieter noch Vermittler der Immobilie. OM betreibt eine Plattform für Immobilieneigentümer, die unter anderem die gleichzeitige Veröffentlichung einzelner Inserate auf mehreren Immobilienportalen ermöglicht. Die Inhalte dieser Inserate werden ausschließlich von Dritten verantwortet. Für die Richtigkeit, Vollständigkeit oder Rechtmäßigkeit der Angaben übernimmt OM keine Haftung. Hinweise auf mögliche Rechtsverstöße können jederzeit gemeldet werden und werden nach Prüfung umgehend bearbeitet.

# Energie
– Energieausweis: Energiebedarfsausweis
– Endenergiebedarf: 130 kWh/(m²*a)
– Energieeffizienzklasse: E
– Baujahr: 1995
– Heizungsart: Zentralheizung
– Wesentliche Energieträger: Öl

Anbieter-Objekt-ID: 440940