Beschreibung
Die Immobilie bietet zwei vollständig getrennte Wohneinheiten und damit eine Kombination aus komfortablem Wohnen und zusätzlichem Einkommen. Ideal für Eigennutzer, Mehrgenerationenwohnen oder als langfristige Kapitalanlage.
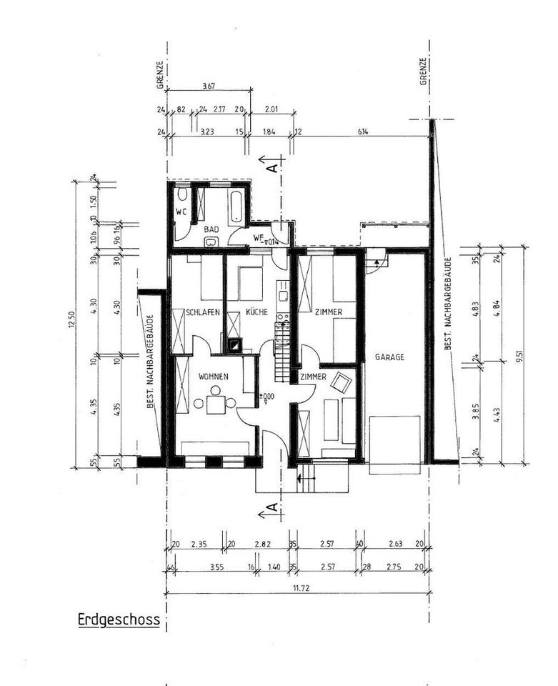
Im Erdgeschoss befindet sich eine helle und gut geschnittene 3,5-Zimmer-Wohnung mit ca. 76 m² Wohnfläche. Von hier aus gelangen Sie direkt auf die Terrasse und in den gepflegten Garten. Ein Ort für ruhige Morgen, entspannte Sommerabende oder gesellige Stunden mit Familie und Freunden.
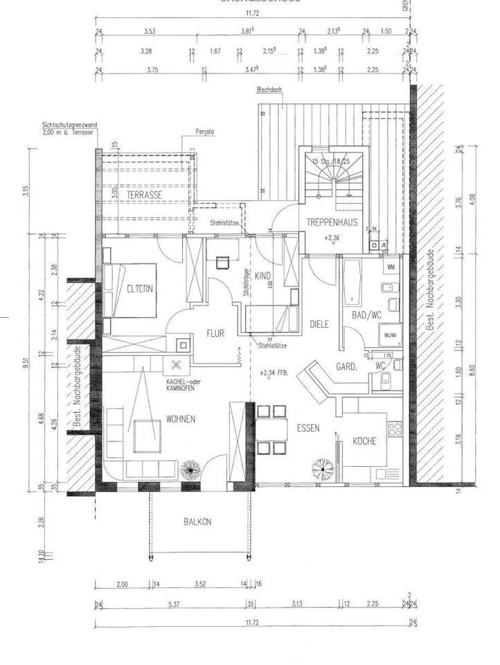
Die Wohnung im Obergeschoss verfügt über ca. 89 m² Wohnfläche und ebenfalls 3,5 Zimmer. Besonders attraktiv sind der Balkon sowie eine überdachte Terrasse, die zusätzlichen Wohnkomfort im Freien bieten.
Beide Wohnungen sind ab sofort frei verfügbar. Dadurch haben Sie maximale Flexibilität. Sie können eine Wohnung selbst beziehen und die zweite vermieten oder das Haus komplett für Ihre Familie nutzen.
Der separate Hauseingang vermittelt ein angenehmes Gefühl von Privatsphäre und Unabhängigkeit. Die Räume wirken hell, klar strukturiert und sehr gepflegt. Küche, Böden, Bad und Fenster befinden sich auf einem zeitgemäßen Stand. Hier können Sie ohne große Investitionen direkt einziehen.
Auch technisch präsentiert sich das Haus in einem sehr guten Zustand. Die regelmäßig gewartete Ölheizung sorgt zuverlässig für Wärme. Zusätzlich wurde bereits ein neuwertiger Warmwasserspeicher installiert.
Zum Haus gehört außerdem eine Garage mit elektrischem Torantrieb.
Der liebevoll angelegte Garten mit Gewächshaus bietet viel Platz für Hobbygärtner, Familien oder einfach zum Entspannen im Grünen.
Ein Haus, das überzeugt – durch seine Pflege, seine klare Struktur und die Möglichkeit, Wohnen und Vermögensaufbau miteinander zu verbinden.
# Ausstattung
Balkon, Terrasse, Keller, Einbauküche, Gäste-WC, Parkett, Laminat, Fliesen
Bemerkungen:
Ein weiterer großer Vorteil dieser Immobilie ist das noch nicht ausgebaute Dachgeschoss. Hier besteht die Möglichkeit, zusätzlichen Wohnraum zu schaffen oder sogar eine weitere separate Wohnung auszubauen. Damit eröffnet sich weiteres Potenzial für Mehrgenerationenwohnen, Homeoffice Bereiche oder zusätzliche Mieteinnahmen.
Zustand: Durchmodernisiert, absolut kein Sanierungsstau. Einziehen und wohnen.
# Weitere Angaben
– Separate WCs: 1
– Verfügbar ab: sofort
– Objektzustand: gepflegt
– Bodenbelag: Fliesen, Parkett, Laminat, Kunststoff
– Grundstücksfläche: ca. 333 m²
# Lagebeschreibung
Die Immobilie befindet sich in Bad Dürrheim im Ortsteil Hochemmingen, einer ruhigen und gleichzeitig hervorragend angebundenen Wohnlage.
Nur wenige Minuten entfernt liegt das große Einkaufszentrum von Bad Dürrheim mit zahlreichen Einkaufsmöglichkeiten wie Kaufland, MediaMarkt, E-Center, Lidl, ALDI, dm-drogerie sowie weiteren Geschäften des täglichen Bedarfs.
Auch Busverbindungen, Ärzte, Schule und weitere Einrichtungen sind schnell erreichbar. Für Familien, Berufstätige und Mieter ist diese Infrastruktur ein klarer Standortvorteil.
Ein besonderes Highlight der Region ist das bekannte Wellness und Gesundheitszentrum
Solemar Therme.
Hier genießen Besucher eine der größten Sole Thermen Deutschlands mit umfangreichen Wellness und Entspannungsangeboten. Das sorgt für einen außergewöhnlich hohen Freizeit und Erholungswert der gesamten Region.
Infrastruktur (im Umkreis von 5 km):
Apotheke, Lebensmittel-Discount, Allgemeinmediziner, Kindergarten, Grundschule, Hauptschule, Realschule, Gymnasium, Gesamtschule, Öffentliche Verkehrsmittel
# Sonstiges
Heizungsart: Zentralheizung
Energieträger: Öl
Das Angebot ist freibleibend und unverbindlich. Irrtum sowie Zwischenverkauf bleiben
ausdrücklich vorbehalten. Für die Information übernehmen wir keine Haftung. Privatverkauf.
Makleranfragen nicht gewünscht.
Makleranfragen nicht erwünscht. Nach § 7 UWG sind unaufgeforderte Kontaktaufnahmen durch Makler ohne ausdrückliche Einwilligung des Empfängers verboten!
ohne-makler (OM) ist weder Anbieter noch Vermittler der Immobilie. OM betreibt eine Plattform für Immobilieneigentümer, die unter anderem die gleichzeitige Veröffentlichung einzelner Inserate auf mehreren Immobilienportalen ermöglicht. Die Inhalte dieser Inserate werden ausschließlich von Dritten verantwortet. Für die Richtigkeit, Vollständigkeit oder Rechtmäßigkeit der Angaben übernimmt OM keine Haftung. Hinweise auf mögliche Rechtsverstöße können jederzeit gemeldet werden und werden nach Prüfung umgehend bearbeitet.
# Energie
– Energieausweis: Energiebedarfsausweis
– Endenergiebedarf: 116 kWh/(m²*a)
– Energieeffizienzklasse: D
– Heizungsart: Zentralheizung
– Wesentliche Energieträger: Öl
Anbieter-Objekt-ID: 434896















