Beschreibung
– Doppelhaushälfte (Baujahr ca. 1900) mit Doppelgarage (Baujahr ca. 1997) und 2 Carports auf 469 qm Grundstück in zentraler Lage
– Wohnfläche ca. 91 qm im Erd-, und Obergeschoss, zusätzlich ca. 35 qm im ausgebauten Spitzboden
– Teilkeller ca. 20 qm
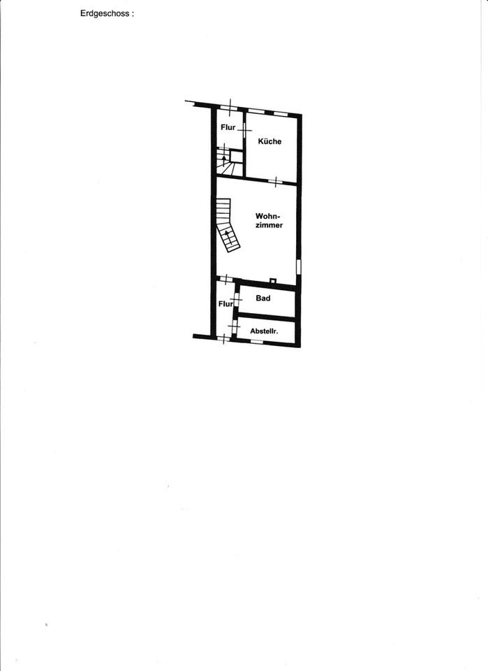
– im EG (ca. 53 qm) Hauseingangsbereich, Wohnzimmer mit Geschosstreppe, Küche, Diele, Bad und Abstellraum, im rückwärtigen Bereich Ausgang zur Terrasse und in den Garten
– im OG (ca. 38 qm) Flur und 2 Zimmer
– Beheizung über Pelletofen (Baujahr 2024) im Wohnzimmer
– Kunststofffenster mit Isolierverglasung und Rollläden im OG
– Warmwasserspeicher im Keller
– Doppelgarage (ca. 50 qm, Baujahr ca. 1997) mit Strom- und Wasseranschluss
– zusätzlich 2 Carports
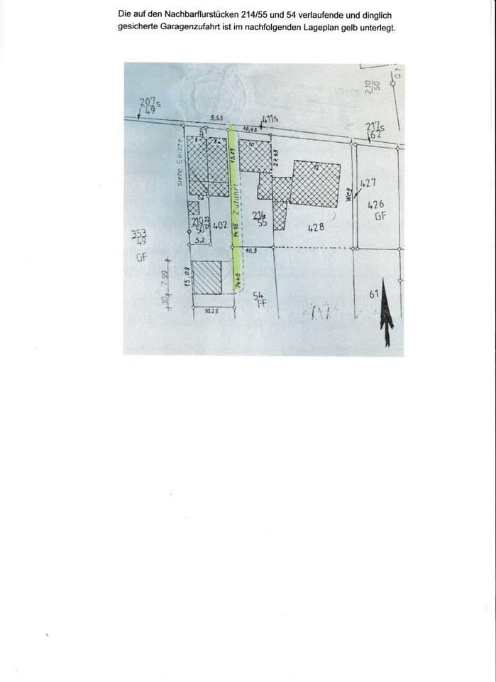
– die Zufahrt zu den Garagen und Carports ist über ein im Grundbuch eingetragenes Wege- und Nutzungsrecht gesichert
– im rückwärtigen Grundstücksbereich besteht ein Zugang zu einem öffentlichen Fußweg in Richtung Schulstr. bzw. in die Innenstadt
– Eigenlandgrundstück
Bei Fragen: Tel. 05261-89432 oder 0173-7374998
# Ausstattung
Terrasse, Garten, Keller, Einbauküche, Laminat, Fliesen
# Weitere Angaben
Verfügbar ab: sofort
Objektzustand: renovierungsbedürftig
Bodenbelag: Fliesen, Laminat
Grundstücksfläche: ca. 469 m²
# Lagebeschreibung
– Das Objekt befindet sich ca. 300 m nördlich vom Stadtzentrum und in ca. 300 m Entfernung zum Bahnhof
– Grundversorgung und Infrastruktureinrichtungen des täglichen Bedarfs, Schulen
und Kindergärten, Einkaufsmöglichkeiten im Nahbereich
Infrastruktur (im Umkreis von 5 km):
Apotheke, Lebensmittel-Discount, Allgemeinmediziner, Kindergarten, Grundschule, Hauptschule, Realschule, Gymnasium, Gesamtschule, Öffentliche Verkehrsmittel
# Sonstiges
Heizungsart: Sonstiges (s. Text)
Energieträger: Holzpellets
Unser Angebot basiert auf uns erteilten Informationen des Vorbesitzers oder von Dritten. Obwohl die Angaben mit der erforderlichen Sorgfalt zusammengestellt wurden, kann von uns keine Verantwortung für Vollständigkeit und Richtigkeit der Angaben übernommen werden. Wir weisen ausdrücklich darauf hin, dass aus unseren Informationen kein Rechtsanspruch auf die dort hinterlegten Angebote und Daten besteht und für diese keine Haftung übernommen wird.
Makleranfragen nicht erwünscht. Nach § 7 UWG sind unaufgeforderte Kontaktaufnahmen durch Makler ohne ausdrückliche Einwilligung des Empfängers verboten!
ohne-makler (OM) ist weder Anbieter noch Vermittler der Immobilie. OM betreibt eine Plattform für Immobilieneigentümer, die unter anderem die gleichzeitige Veröffentlichung einzelner Inserate auf mehreren Immobilienportalen ermöglicht. Die Inhalte dieser Inserate werden ausschließlich von Dritten verantwortet. Für die Richtigkeit, Vollständigkeit oder Rechtmäßigkeit der Angaben übernimmt OM keine Haftung. Hinweise auf mögliche Rechtsverstöße können jederzeit gemeldet werden und werden nach Prüfung umgehend bearbeitet.
# Energie
Energieausweis: Energiebedarfsausweis
Endenergiebedarf: 259 kWh/(m²*a)
Energieeffizienzklasse: H
Wesentliche Energieträger: Pellets
Anbieter-Objekt-ID: 427750











































