DHH Hönow/Hoppegarten – 6 Zi., 130m² + 50m² Keller, Eckgrundstück

549.900

Wir verkaufen unsere eigengenutzte Doppelhaushälfte (Eckgrundstück) in Hönow / Hoppegarten – ruhig gelegen und gleichzeitig Berlin-nah. U5 (U-Bhf. Hönow) sowie die A10 sind schnell erreichbar. Ideal für Familien: Grundschule & Kita fußläufig, Eink…

Beschreibung

Wir verkaufen unsere eigengenutzte Doppelhaushälfte (Eckgrundstück) in Hönow / Hoppegarten – ruhig gelegen und gleichzeitig Berlin-nah. U5 (U-Bhf. Hönow) sowie die A10 sind schnell erreichbar. Ideal für Familien: Grundschule & Kita fußläufig, Einkaufsmöglichkeiten in der Nähe.

Highlights auf einen Blick
-ca. 130 m² Wohnfläche (EG, 1. OG, DG)
-ca. 50 m² Keller, vollständig ausgebaut (insgesamt ca. 180 m² Nutz-/Wohnfläche inkl. Keller)
-Grundstück 299 m², komplett eingezäunt, Terrasse & Garten mit Privatsphäre
-Fernwärme – Heizungsanlage/Übergabestation vor wenigen Tagen komplett erneuert
-Garage + Stellplatz
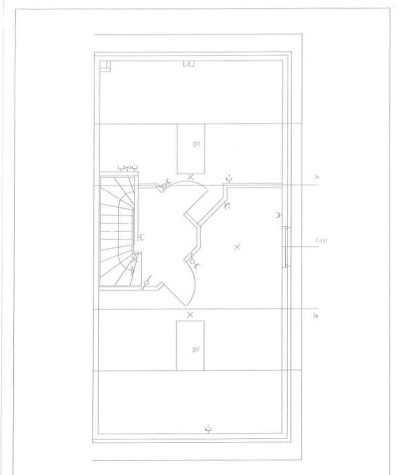
-Dachgeschoss voll ausgebaut (2 zusätzliche Zimmer – Büro/Gast/Hobby)

Eckdaten
-Wohnfläche: ca. 130 m²
-Keller: ca. 50 m², ausgebaut (3 Räume)
-Grundstück: 299 m², Eckgrundstück, eingezäunt
-Etagen: 3 + voll unterkellert
-Heizung: Fernwärme (neu)
-Energieausweis: Verbrauchsausweis liegt vor, Endenergieverbrauch 84,1 kWh/(m²·a), ——-Energieträger Fernwärme, Baujahr 2001, gültig bis 24.02.2036.

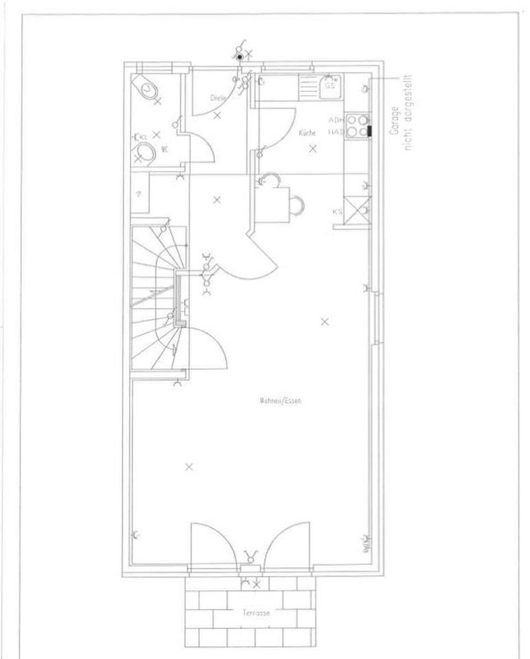
Raumaufteilung
-Keller (ca. 50 m², ausgebaut): Hauswirtschaftsraum + 2 weitere Räume (aktuell u.a. Spiel-/Hobbykeller)

-Erdgeschoss: Flur, Gäste-WC, Küche, großes helles Wohnzimmer mit Zugang zu Terrasse & Garten, zusätzlicher Zugang zum Keller

-1. Obergeschoss: 3 Schlafzimmer + Tageslichtbad (Fenster)

-Dachgeschoss: 2 Zimmer (z.B. Büro/Gäste/Hobby), voll ausgebaut

Ausstattung (Auszug)
-EG: Fliesen in Flur/Küche/Wohnbereich, im Wohnzimmer teilweise Fußbodenheizung
-Bad (1. OG): Fliesen + Fußbodenheizung
-Terrasse: automatische Markise
-Böden: 1. OG Teppich/Laminat, DG Kork/Laminat, Keller Kork
-Garage (Dach als zusätzlicher Stauraum nutzbar) + Stellplatz vor dem Haus

Besichtigung
Besichtigungen nach Absprache möglich.
Damit wir Termine effizient planen können: kurzes Telefonat vorab; eine Finanzierungs-/Liquiditätsbestätigung ist dann vor Terminbestätigung hilfreich (sensiblen Angaben können selbstverständlich geschwärzt werden).

# Ausstattung
Terrasse, Garten, Keller, Duschbad, Einbauküche, Gäste-WC, Laminat, Teppichboden, Fliesen

# Weitere Angaben
– Separate WCs: 1
– Verfügbar ab: nach Absprache
– Objektzustand: gepflegt
– Bodenbelag: Fliesen, Teppich, Laminat

– Grundstücksfläche: ca. 299 m²

# Lagebeschreibung
Lage & Infrastruktur
-U-Bahnhof Hönow ca. 15–20 Min. zu Fuß
-Bus in der Nähe, A10 schnell erreichbar
-Grundschule & Kita fußläufig
-REWE/Penny und weitere Versorgung schnell erreichbar
Infrastruktur (im Umkreis von 5 km):
Apotheke, Lebensmittel-Discount, Kindergarten, Grundschule, Öffentliche Verkehrsmittel

# Sonstiges
Heizungsart: Zentralheizung
Energieträger: Fernwärme
Grundrisse:
– https://www.ohne-makler.net/immobilie/file/1594570.pdf ()

Makleranfragen nicht erwünscht. Nach § 7 UWG sind unaufgeforderte Kontaktaufnahmen durch Makler ohne ausdrückliche Einwilligung des Empfängers verboten!

ohne-makler (OM) ist weder Anbieter noch Vermittler der Immobilie. OM betreibt eine Plattform für Immobilieneigentümer, die unter anderem die gleichzeitige Veröffentlichung einzelner Inserate auf mehreren Immobilienportalen ermöglicht. Die Inhalte dieser Inserate werden ausschließlich von Dritten verantwortet. Für die Richtigkeit, Vollständigkeit oder Rechtmäßigkeit der Angaben übernimmt OM keine Haftung. Hinweise auf mögliche Rechtsverstöße können jederzeit gemeldet werden und werden nach Prüfung umgehend bearbeitet.

# Energie
– Energieausweis: Energieverbrauchsausweis
– Energieverbrauch: 84 kWh/(m²*a)
– Energieeffizienzklasse: C
– Heizungsart: Zentralheizung
– Wesentliche Energieträger: Fernwärme

Anbieter-Objekt-ID: 430753