Charmante und energieeffiziente Architektenvilla mit hochwertiger Ausstattung

799.000

Objektbeschreibung: Zum Verkauf steht eine moderne und energieeffiziente Architektenvilla, welche im Jahr 2020 auf einem großzügigen Grundstück von etwa 1.401 m² erbaut wurde und über eine Wohnfläche von ca. 178 m² mit hochwertiger Ausstattung ver…

Beschreibung

# Objektbeschreibung
Zum Verkauf steht eine moderne und energieeffiziente Architektenvilla, welche im Jahr 2020 auf einem großzügigen Grundstück von etwa 1.401 m² erbaut wurde und über eine Wohnfläche von ca. 178 m² mit hochwertiger Ausstattung verfügt.

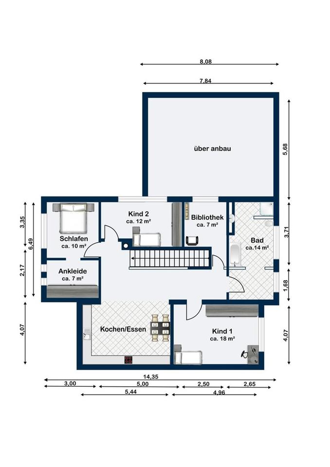
Begrüßt wird man von einem großzügigen Flur von dem aus alle Räume zu erreichen sind. Linksseitig befindet sich ein Schlaf-, Kinder- oder Arbeitszimmer, während sich rechtsseitig der Hauswirtschaftdaum und der Zugang zur Doppelgarage befindet. Der großzügige und offene Wohn- und Essbereich verfügt über einen wasserführenden HARK-Kamin, der nicht nur für wohlige Wärme, sondern auch für Warmwasser im Winter sorgt. Die Fußbodenheizung, die im gesamten Haus verlegt ist, wird durch ein effizientes Heizsystem aus Gas, Solarthermie und den Kamin ergänzt. Die vielen Fenster verleihen viel Licht und bringen in Kombination mit den hohen Decken ein tolles Raumgefühl.

Die hochwertige Einbauküche ist mit einer Natursteinplatte versehen und hat einen schönen Ausblick in die offene Galerie mit beeindruckender Deckenhöhe von bis zu ca. 8 Metern. Die schwarzen Stahlgeländer mit dekorativen Verzierungen runden das stilvolle Design ab. Das Badezimmer im Erdgeschoss ist mit mit italienischen Fliesen versehen und einer ebenerdigen Dusche ausgestattet.

Das Dachgeschoss beherbergt vier Räume – ideal als Schlafzimmer, für Kinder, Gäste oder auch als Büro nutzbar. Ein luxuriöses Masterbad mit Dusche, Badewanne und Doppel-Waschtisch bietet zusätzlichen Komfort.

Der Außenbereich besticht durch einen tollen Garten mit Kiefern und unterschiedlichen Obstbäumen und einem großen eigenen Kinderspielplatz mit Rutsche, eine Doppelgarage, einem großen Carport, einem Schuppen und Unterstellmöglichkeiten für Feuerholz. Ebenso verfügt das Grundstück über eine 7,5㎥ Abwassergrube.

Im Außenbereich gibt es noch Gestaltungsspielraum: Die Terrasse, die Einfahrt zur Garage, sowie der Hauseingangsbereich wurden bisher nicht vollständig fertiggestellt und bieten Raum für individuelle Gestaltungsideen.

Nutzen Sie die Gelegenheit, sich selbst ein Bild von dieser schönen und energieeffizienten Architektenvilla zu machen und vereinbaren Sie einen Besichtigungstermin!

# Ausstattung
Terrasse, Garten, Einbauküche, Kamin, Parkett, Fliesen

Bemerkungen:
Erdgeschoss:
– großzügiger Flur
– Arbeitszimmer
– offene Küche
– Wohn- und Essbereich
– Badezimmer mit ebenerdiger Dusche
– Hauswirtschafts- & Technikraum
– Zugang zur Doppelgarage

Dachgeschoss:
– vier Schlaf-, Kinder-, Gäste-, Arbeitszimmer
– Masterbad mit ebenerdiger Dusche und Badewanne
– schöne Galerie mit Blick in den Küchenbereich

Außenanlagen:
– Doppelgarage
– Carport
– Kinderspielplatz mit Rutsche
– Holzunterstellplatz
– Schuppen
– Gartenbrunnen

# Weitere Angaben
Verfügbar ab: sofort
Objektzustand: neuwertig
Bodenbelag: Fliesen, Parkett

Grundstücksfläche: ca. 1401 m²

# Lagebeschreibung
GEOGRAFIE:
Töpchin ist ein Ortsteil von Mittenwalde im Landkreis Dahme-Spreewald und gehört zum Bundesland Brandenburg. Der Ortsteil wurde 2003 zu Mittenwalde eingemeindet und liegt vor der südöstlichen Stadtgrenze von Berlin und hat etwa 930 Einwohner.

Töpchin grenzt an Motzen, einem märkischen Dorf und Ortsteil von Mittenwalde. Motzen ist unter anderem durch den Motzener See bekannt, welcher durch seine hervorragende Wasserqualität (einer der saubersten Seen Brandenburgs) und den kostenfreien Strandbadbereich besonders beliebt ist.

Nachbargemeinden sind im Uhrzeigersinn von Norden beginnend, Schönefeld, Königs Wusterhausen, Bestensee, Groß Köris, Teupitz, Zossen und Rangsdorf.

LAGE:
Die Gemeinde Mittenwalde liegt vor der südöstlichen Stadtgrenze von Berlin.
Die Berliner Stadtgrenze ist ca. 15 km entfernt, zum Berliner Stadtzentrum sind es etwa 30 km.

VERKEHR:
Die Bundesstraße 246 verläuft von West nach Ost aus Richtung Zossen über die Ortsteile Telz, Mittenwalde und Gallun nach Storkow. Die Landesstraße L30 verbindet Mittenwalde mit Königs Wusterhausen.
Direkt an der Stadt Mittenwalde befinden sich die Anschlussstellen Ragow, Mittenwalde und Bestensee der A13 Berlin–Dresden.

Es pendeln zwei Buslinien (726 und 728) zum S-Bahnhof Königs Wusterhausen und zum Bahnhof Bestensee, von dort aus kann direkt und schnell der Berliner S-Bahnring erreicht werden.
Das Berliner Stadtzentrum ist in ca. 40 Autominuten zu erreichen und der Flughafen BER in ca. 25 Autominuten.

SCHULEN:
Töpchin verfügt im Ortskern über eine Grundschule und einen Hort. Alle weiterführenden Schulen befinden sich in Königs Wusterhausen (20 Minuten mit dem Bus).

WIRTSCHAFT:
Durch die gute Verkehrsanbindung haben sich in Mittenwalde zwei große Gewerbegebiete angesiedelt.
Der Discounter Aldi-Nord ist mit einer Regionalniederlassung vertreten und betreibt dort ein großflächiges Zentrallager. Des Weiteren haben sich die Firma EDEKA mit einem großen Logistikzentrum und viele andere Gewerbetreibende hier niedergelassen.

INFRASTRUKTUR:
Unweit von Mittenwalde befindet sich das Einkaufszentrum A10 in Wildau, welches mit über 100 Shops eine große Angebotsvielfalt zur Verfügung stellt. Ein Cinestar-Kino, Bowling- und Fitnesscenter sowie weitere gastronomische Einrichtungen werden hier angeboten.
Infrastruktur (im Umkreis von 5 km):
Apotheke, Lebensmittel-Discount, Allgemeinmediziner, Kindergarten, Grundschule, Gesamtschule, Öffentliche Verkehrsmittel

# Sonstiges
Heizungsart: Fußbodenheizung
Energieträger: Gas

Makleranfragen nicht erwünscht. Nach § 7 UWG sind unaufgeforderte Kontaktaufnahmen durch Makler ohne ausdrückliche Einwilligung des Empfängers verboten!

ohne-makler (OM) ist weder Anbieter noch Vermittler der Immobilie. OM betreibt eine Plattform für Immobilieneigentümer, die unter anderem die gleichzeitige Veröffentlichung einzelner Inserate auf mehreren Immobilienportalen ermöglicht. Die Inhalte dieser Inserate werden ausschließlich von Dritten verantwortet. Für die Richtigkeit, Vollständigkeit oder Rechtmäßigkeit der Angaben übernimmt OM keine Haftung. Hinweise auf mögliche Rechtsverstöße können jederzeit gemeldet werden und werden nach Prüfung umgehend bearbeitet.

# Energie
Energieausweis: Energieverbrauchsausweis
Energieverbrauch: 14 kWh/(m²*a)
Energieeffizienzklasse: A+
Heizungsart: Fußbodenheizung
Wesentliche Energieträger: Gas

Anbieter-Objekt-ID: 426826