Beschreibung
Diese gepflegte Doppelhaushälfte aus dem Jahr 2016 befindet sich im idyllischen Ortsteil Körchow der Gemeinde Biendorf, nur rund 10 km vom Ostseebad Kühlungsborn und Rerik entfernt. Das Haus wurde bislang als Ferienhaus genutzt und ist voll möbliert – Sie können sofort einziehen oder direkt vermieten! Die moderne Einbauküche und die Einbauschränke sind bereits im Kaufpreis enthalten.
Das Erdgeschoss überzeugt mit einem lichtdurchfluteten Wohn- und Essbereich und direktem Zugang zur großzügigen Südwest-Terrasse. Ergänzt wird es durch ein Gäste-WC, den Hausanschlussraum sowie eine hochwertige Haustechnik.
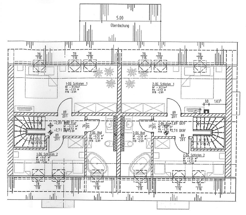
Im Obergeschoss erwarten Sie zwei gemütliche Schlafzimmer und ein modernes Duschbad.
Der Dachboden bietet zusätzliche Abstellfläche.
Die Fußbodenheizung sorgt für ein angenehmes Raumklima, und die mit engobierten Tonziegeln gedeckte Dachlandschaft verleiht dem Haus eine besonders wertige Ausstrahlung.
# Ausstattung
Terrasse, Garten, Einbauküche, Gäste-WC, Fliesen
Bemerkungen:
• Hochwertige Einbauküche im modernen Stil
• Voll möbliert inkl. Einbauschränke
• Fußbodenheizung in allen Räumen
• Modernes Bad + Gäste-WC
• Betontreppe
• Engobierte Tonziegel
• Insektenschutz
• Sonnenschutzrollos an Dachflächenfenster
• Vorbereitung Alarmanlage
• Abstellraum + Stauraum im Dachboden
• Große Terrasse mit Gartenfläche
• Hausanschlussraum (Strom, Gas, Telekom, Trinkwasser)
# Weitere Angaben
– Separate WCs: 1
– Verfügbar ab: 01.05.2026
– Objektzustand: gepflegt
– Bodenbelag: Fliesen, Kunststoff
– Grundstücksfläche: ca. 241 m²
# Lagebeschreibung
Körchow ist ein ruhiger, grüner Ortsteil von Biendorf im Landkreis Rostock. Das Ostseebad Kühlungsborn und Rerik sind in nur 10 Autominuten erreichbar – perfekt für Strandliebhaber und Ruhesuchende in ländlicher Atmosphäre.
In der näheren Umgebung finden Sie:
• Einkaufsmöglichkeiten
• Ärzte und Apotheken
• Schulen und Kindergärten
• Gute Verkehrsanbindung in Richtung Rostock, Bad Doberan, Kröpelin und Neubukow
Die Kombination aus Natur, Nähe zur Ostsee und vollständiger Infrastruktur macht dieses Objekt ideal für Eigennutzer wie auch für Ferienvermieter.
# Sonstiges
Heizungsart: Zentralheizung
Energieausweis nicht vorhanden
• Energieeffizient & modern
• Gepflegter Zustand – sofort bezugsfertig
• Nutzung als Ferienhaus oder Hauptwohnsitz möglich
• Übernahme ab 05.2026
• Energieausweis wird nachgereicht
Haben wir Ihr Interesse geweckt?
Dann freuen wir uns auf Ihre Anfrage und stehen Ihnen für weitere Informationen oder einen Besichtigungstermin gerne zur Verfügung.
Makleranfragen nicht erwünscht. Nach § 7 UWG sind unaufgeforderte Kontaktaufnahmen durch Makler ohne ausdrückliche Einwilligung des Empfängers verboten!
ohne-makler (OM) ist weder Anbieter noch Vermittler der Immobilie. OM betreibt eine Plattform für Immobilieneigentümer, die unter anderem die gleichzeitige Veröffentlichung einzelner Inserate auf mehreren Immobilienportalen ermöglicht. Die Inhalte dieser Inserate werden ausschließlich von Dritten verantwortet. Für die Richtigkeit, Vollständigkeit oder Rechtmäßigkeit der Angaben übernimmt OM keine Haftung. Hinweise auf mögliche Rechtsverstöße können jederzeit gemeldet werden und werden nach Prüfung umgehend bearbeitet.
# Energie
– Heizungsart: Zentralheizung
Anbieter-Objekt-ID: 434434



























