Beschreibung
In einem hanseatischen Rotklinkerhaus von 1900 – mit all seinem zeitlosen Altbaucharme – erwartet Sie diese liebevoll renovierte, ca. 70 m² große Dachgeschosswohnung
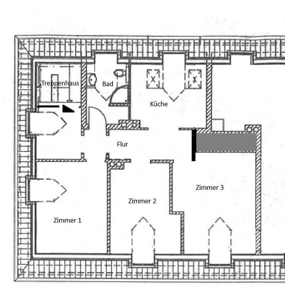
Die Wohnung überzeugt durch einen gemütlichen, gut geschnittenen Grundriss mit insgesamt drei einladenden Zimmern, die dank ihrer Gaubenfenster ein besonders heimeliges Lichtspiel zaubern. Das weiß geflieste Duschbad mit Fenster wirkt frisch und klar, während die neue Einbauküche perfekt in das charmante Ambiente eingebettet wurde.
Ein ganz besonderes Highlight ist der eigene Spitzboden: Über eine feste, komfortable Treppe erreichbar, eröffnet sich hier eine beeindruckende Fläche von ca. 110 m² (Grundfläche). Ein Raum voller Möglichkeiten – Atelier, Hobbybereich, Rückzugsort oder einfach Stauraum mit ganz viel Luft nach oben. Laut Teilungserklärung gehört dieser Bereich exklusiv zu dieser Wohnung.
Auch technisch ist die Wohnung bestens gerüstet: 2023 wurde eine neuwertige Junkers Gaskombi-Heizwerttherme installiert.
Das Haus selbst strahlt hanseatische Geschichte und viel Seele aus: hohe Decken, hölzerne geschwungene Treppengeländer, Dielenböden, Kassettentüren – alles liebevoll erhalten und typisch für die geschätzte Altbaukultur um 1900. Der gemeinschaftlich nutzbare große Garten mit altem Baumbestand, umschlossen von einer romantischen Backsteinmauer, lädt zum Verweilen ein.
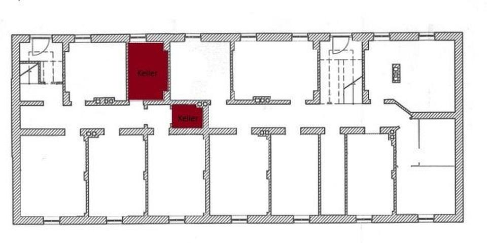
Zur Wohnung gehört zudem ein eigener, abschließbarer Kellerraum.
Wohngeld: 205,00 € monatlich
Kaufpreis: 229.000,00 € (provisionsfrei)
# Ausstattung
Garten, Keller, Vollbad, Einbauküche, Parkett, Fliesen
Bemerkungen:
HIGHLIGHTS IM ÜBERBLICK:
+Frisch renovierte ca. 70 m² Dachgeschosswohnung mit warmem Altbaucharme
+Drei helle Zimmer mit gemütlichen Gaubenfenstern
+Neue, moderne Einbauküche in harmonischer Optik
+Eigener Spitzboden mit ca. 110 m² Grundfläche, über feste Treppe erreichbar
+Exklusiv der Wohnung zugeordnet (laut Teilungserklärung)
+Neuwertige Junkers Gaskombi-Heizwerttherme (2023)
+Historisches Rotklinkerhaus von 1900 mit hoher Deckenhöhe & liebevollen Details
+Dielenböden, Kassettentüren & geschwungenes Holzgeländer im Treppenhaus
+Großer gemeinschaftlicher Garten mit altem Baumbestand & romantischer Backsteinmauer
+Separater, abschließbarer Kellerraum
# Weitere Angaben
– Verfügbar ab: sofort
– Objektzustand: vollständig renoviert
– Bodenbelag: Fliesen, Parkett
# Lagebeschreibung
In unmittelbarer Nähe befinden sich Lebensmittel-Discounter, Apotheken, Kindergärten, Schulen und Sportvereine. Ebenso ist die Innenstadt Lübecks mit dem öffentlichen Nahverkehr schnell und einfach zu erreichen. Eine Bushaltestelle befindet sich direkt vor der Haustür.
Lübeck ist eine alte, gut erhaltene Hansestadt und liegt nur ca. 65 Kilometer von Hamburg entfernt.
Ihre zauberhafte Altstadt, die auf einer Insel in der Trave liegt, gehört zum UNESCO-Welterbe. Zudem besitzt Lübeck ein reiches und vielfältiges Kulturangebot und ist auch mit seinem Buddenbrookhaus in der Mengestraße 4 sowie der traditionsreichen Niederegger-Marzipanmanufaktur weltberühmt.
Infrastruktur (im Umkreis von 5 km):
Apotheke, Lebensmittel-Discount, Allgemeinmediziner, Kindergarten, Grundschule, Hauptschule, Realschule, Gymnasium, Gesamtschule, Öffentliche Verkehrsmittel
# Sonstiges
Heizungsart: Etagenheizung
Energieträger: Gas
HAFERKAMP GMBH
Strandallee 11
23683 Scharbeutz (Haffkrug)
Telefon: 04563 / 423998-0
Fax: 04563 / 423998-9
E-Mail: info(at)haferkamp-grundbesitz.de
Geschäftsführer: Jens-Hendrik Haferkamp
Amtsgericht Lübeck HRB 23030 HL
Ust-IdNr.: DE304113136
Erlaubnispflichtige Tätigkeit nach § 34c Abs. 1 der Gewerbeordnung
Aufsichtsbehörde:
Gemeinde Scharbeutz (Gewerbeamt) · Am Bürgerhaus 2, 23683 Scharbeutz
Haferkamp Grundbesitz ist eine Geschäftsbezeichnung der Haferkamp GmbH
Inhaltlich Verantwortlicher gemäß § 6 MDStV:
Jens-Hendrik Haferkamp
Makleranfragen nicht erwünscht. Nach § 7 UWG sind unaufgeforderte Kontaktaufnahmen durch Makler ohne ausdrückliche Einwilligung des Empfängers verboten!
ohne-makler (OM) ist weder Anbieter noch Vermittler der Immobilie. OM betreibt eine Plattform für Immobilieneigentümer, die unter anderem die gleichzeitige Veröffentlichung einzelner Inserate auf mehreren Immobilienportalen ermöglicht. Die Inhalte dieser Inserate werden ausschließlich von Dritten verantwortet. Für die Richtigkeit, Vollständigkeit oder Rechtmäßigkeit der Angaben übernimmt OM keine Haftung. Hinweise auf mögliche Rechtsverstöße können jederzeit gemeldet werden und werden nach Prüfung umgehend bearbeitet.
# Energie
– Energieausweis: Energieverbrauchsausweis
– Energieverbrauch: 100 kWh/(m²*a)
– Energieeffizienzklasse: C
– Heizungsart: Etagenheizung
– Wesentliche Energieträger: Gas
Anbieter-Objekt-ID: 437857













