Beschreibung
Ausstattung:
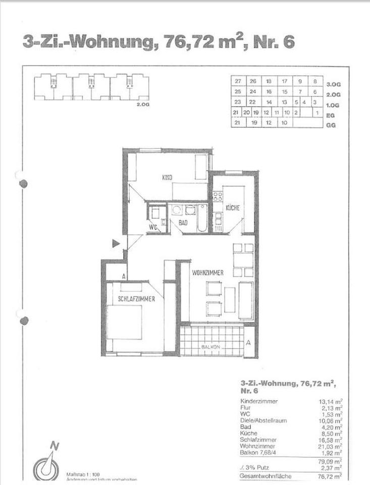
•ca. 77 m² Wohnfläche
•2. Obergeschoss
•überdachter Balkon
•Einbauküche (EBK) vorhanden
•Bad und WC renoviert
•neue Kunststofffenster
•neue Wasserleitungen
•neue Fliesen- und Laminatböden
•neue Wohnungseingangstür
•kleine Abstellnische in der Wohnung
•Außenstellplatz
•2 Kellerräume
•gemeinschaftlicher Waschraum
•Fahrradraum
Die Wohnung eignet sich sowohl für Eigennutzer als auch für Kapitalanleger.
# Ausstattung
Balkon, Keller, Duschbad, Einbauküche, Gäste-WC, Laminat, Fliesen
# Weitere Angaben
– Separate WCs: 1
– Verfügbar ab: nach Absprache
– Objektzustand: vollständig renoviert
– Bodenbelag: Fliesen, Laminat
# Lagebeschreibung
Die Lage in Schmiden überzeugt durch eine sehr gute Infrastruktur, Einkaufsmöglichkeiten, Schulen sowie eine schnelle Anbindung nach Stuttgart.
# Sonstiges
Heizungsart: Zentralheizung
Energieträger: Gas
Sonstige Unterlagen:
– https://www.ohne-makler.net/immobilie/file/1597286.pdf (Energieausweis)
Makleranfragen nicht erwünscht. Nach § 7 UWG sind unaufgeforderte Kontaktaufnahmen durch Makler ohne ausdrückliche Einwilligung des Empfängers verboten!
ohne-makler (OM) ist weder Anbieter noch Vermittler der Immobilie. OM betreibt eine Plattform für Immobilieneigentümer, die unter anderem die gleichzeitige Veröffentlichung einzelner Inserate auf mehreren Immobilienportalen ermöglicht. Die Inhalte dieser Inserate werden ausschließlich von Dritten verantwortet. Für die Richtigkeit, Vollständigkeit oder Rechtmäßigkeit der Angaben übernimmt OM keine Haftung. Hinweise auf mögliche Rechtsverstöße können jederzeit gemeldet werden und werden nach Prüfung umgehend bearbeitet.
# Energie
– Energieausweis: Energieverbrauchsausweis
– Energieverbrauch: 127 kWh/(m²*a)
– Energieverbrauch für Warmwasser enthalten
– Heizungsart: Zentralheizung
– Wesentliche Energieträger: Gas
Anbieter-Objekt-ID: 437346
















