Büroflächen ab 15m², einzelne Büors anmieten o.ganze Etage+Teeküche +Internet (+Stellplätze+Lager)

290

Objektbeschreibung: Provisionsfrei zu vermieten in Ditzingen-Hirschlanden (Indugstriegebiet) Ideale Möglichkeit für sehr kleine Neugründungen oder für bestehende größere Firmenumzüge. Die Mietflächen sind FRISCH RENOVIERT ! Anmietbare Flächen sind…

Beschreibung

# Objektbeschreibung
Provisionsfrei zu vermieten in Ditzingen-Hirschlanden (Indugstriegebiet)

Ideale Möglichkeit für sehr kleine Neugründungen oder für bestehende größere Firmenumzüge. Die Mietflächen sind FRISCH RENOVIERT !
Anmietbare Flächen sind im Gewerbegebiet von Ditzingen-Hirschlanden direkt an der Autobahn A81. Die Gebäude stehen auf einem Eckgelände des Gewerbebietes. Man hat einen tollen Ausblick auf die umliegenden Felder und Wiesen.

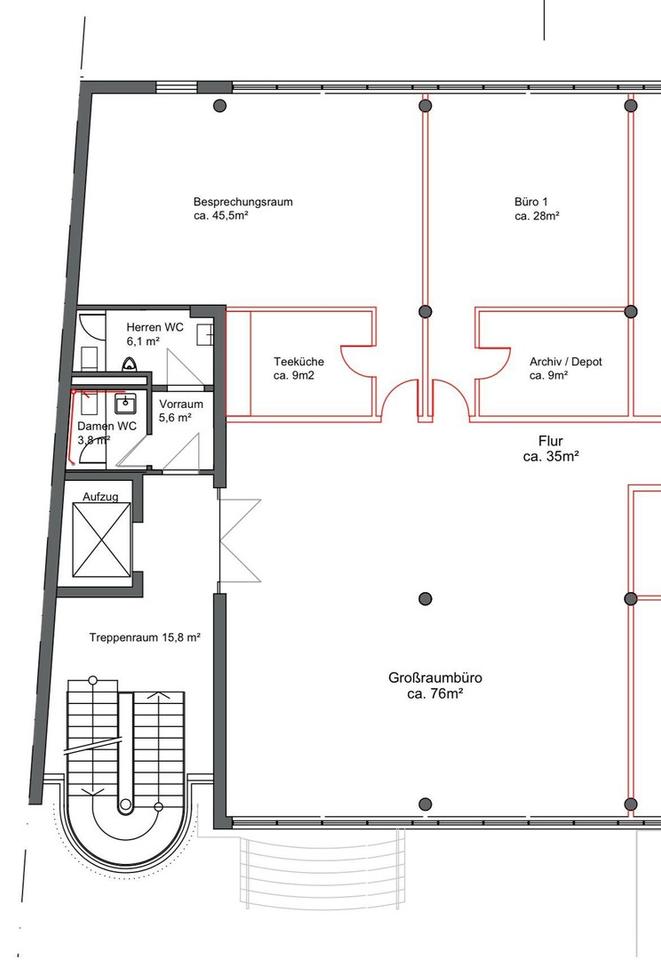
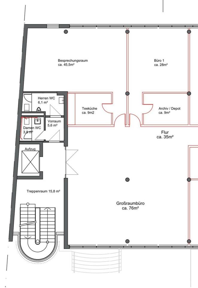
Sie können nur ein einzelnes, kleines Büro ab 15m² anmieten oder einen der beiden Etagen (je 240m²) gesamt. Für die Einzelbüros ist eine gemeinsame Teeküche vorhanden. Internet und Heizung ist in den Nebenkosten bereits enthalten.

(Sie können auch Lagerflächen / Hallen oder mehrere PKW Stellplätze dazu mieten. Siehe hierzu weiter unten)

Ein mittelgroßer Personenaufzug ist vorhanden. . Das Gesamte Objekt wird über Videocameras überwacht.

Zusätzlich anmietbar:
– KFZ Stellplätze in gewünschter Anzahl (1-30) auf dem Hof
– Lagerflächen / Produktionsflächen im UG und im EG in gewünschter Größe (75-960m²)
– Drei Mitarbeiter-Appartments (je 2,5 Zimmer, 55m²) auf der Rückseite des Gebäudes
– Eine 300m² Penthousewohnung oder als exclusive Bürofläche im 3.OG

Rufen Sie uns an und sagen Sie uns was Sie genau suchen und benötigen. Wir sind absolut flexibel.

Objektzustand: Erstbezug nach Sanierung

# Ausstattung
Keller, Fahrstuhl, Gäste-WC, Laminat

# Weitere Angaben
Separate WCs: 1
Verfügbar ab: nach Absprache
Objektzustand: saniert
Bodenbelag: Laminat

Bürofläche: ca. 15 m²

# Lagebeschreibung

Infrastruktur (im Umkreis von 5 km):
Apotheke, Lebensmittel-Discount, Allgemeinmediziner, Öffentliche Verkehrsmittel

# Sonstiges
Heizungsart: Zentralheizung
Energieträger: Öl
Energieausweis nicht vorhanden

Hinweis: die angegebenen Nebenkosten verstehen sich exkl. Heizkosten!

ohne-makler (OM) ist weder Anbieter noch Vermittler der Immobilie. OM betreibt eine Plattform für Immobilieneigentümer, die unter anderem die gleichzeitige Veröffentlichung einzelner Inserate auf mehreren Immobilienportalen ermöglicht. Die Inhalte dieser Inserate werden ausschließlich von Dritten verantwortet. Für die Richtigkeit, Vollständigkeit oder Rechtmäßigkeit der Angaben übernimmt OM keine Haftung. Hinweise auf mögliche Rechtsverstöße können jederzeit gemeldet werden und werden nach Prüfung umgehend bearbeitet.

# Energie
Heizungsart: Zentralheizung
Wesentliche Energieträger: Öl

Anbieter-Objekt-ID: 397874