Bürofläche direkt an der S-Bahn

4.800

Objektbeschreibung: In einer gepflegten und etablierten Büroanlage in Unterföhring wird diese funktionale Büroeinheit zur Vermietung angeboten. Die Einheit befindet sich im Erdgeschoss und überzeugt insbesondere durch ihre unmittelbare Nähe zur S-…

Beschreibung

# Objektbeschreibung
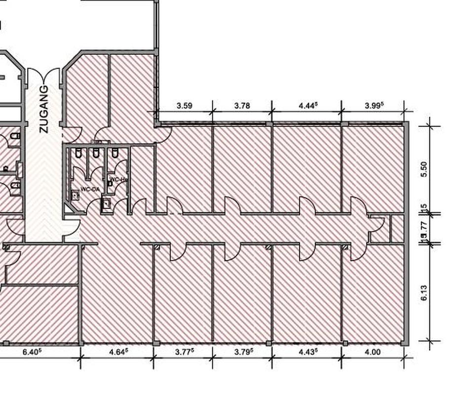
In einer gepflegten und etablierten Büroanlage in Unterföhring wird diese funktionale Büroeinheit zur Vermietung angeboten. Die Einheit befindet sich im Erdgeschoss und überzeugt insbesondere durch ihre unmittelbare Nähe zur S-Bahn sowie die hierdurch gewährleistete hervorragende Verkehrsanbindung.

Die Bürofläche umfasst insgesamt fünf großzügig geschnittene Büroräume und bietet damit vielseitige Nutzungsmöglichkeiten für unterschiedliche organisatorische Anforderungen. Ergänzend stehen eine separate Küche sowie ein abgeschlossener Serverraum zur Verfügung. Sanitäre Einrichtungen sind innerhalb der Anlage vorhanden.

Ein besonderer Mehrwert der Einheit ist der direkte Zugang zum begrünten Innenhof sowie zum Gartenbereich, der sowohl als Aufenthaltsfläche als auch für informelle Besprechungen genutzt werden kann.

Das Gebäude wurde im Jahr 1987 errichtet und befindet sich in einem ordentlichen und gepflegten Zustand. Tiefgaragenstellplätze können bei Bedarf zusätzlich angemietet werden.

Die Lage unmittelbar an der S-Bahn macht diese Büroeinheit besonders attraktiv für Unternehmen, die Wert auf eine ausgezeichnete Erreichbarkeit für Mitarbeiter und Geschäftspartner legen.

# Ausstattung
Garten, Fahrstuhl, Einbauküche, Barrierefrei

Bemerkungen:
Die Büroeinheit verfügt über großzügige Fensterfronten, die für eine sehr gute Belichtung der Räume sorgen und ein helles, einladendes Arbeitsambiente schaffen.

Eine funktionale Küchenzeile ist vorhanden und ermöglicht eine komfortable Nutzung im Büroalltag.

Der Bodenbelag besteht aus einem raucheiche PVC-Boden, der sowohl optisch ansprechend als auch pflegeleicht ist. Eine vorhandene EDV- und Netzwerkverkabelung ermöglicht einen kurzfristigen und reibungslosen Bezug der Büroflächen.

Individuelle Umbauten oder Anpassungen der Raumaufteilung können – nach Abstimmung – bedarfsgerecht realisiert werden, um die Fläche optimal an die jeweiligen Anforderungen des Mieters anzupassen.

# Weitere Angaben
Verfügbar ab: nach Absprache
Objektzustand: vollständig renoviert

Warmmiete: 5.700,00 €

Bürofläche: ca. 370 m²

# Lagebeschreibung
Die Büroeinheit befindet sich in ausgezeichneter Lage in der Bahnhofstraße 18 in Unterföhring, unmittelbar neben dem S-Bahnhof Unterföhring. Die S-Bahn ist in wenigen Schritten erreichbar und gewährleistet eine schnelle und komfortable Anbindung an die Münchner Innenstadt sowie an den Flughafen München. Der Standort ist damit sowohl für Mitarbeiter als auch für Geschäftspartner optimal erreichbar.

Unterföhring zählt zu den etablierten und überregional bekannten Medien- und Wirtschaftsstandorten im Münchner Norden. Zahlreiche nationale und internationale Unternehmen aus den Bereichen Medien, Rundfunk, Kommunikation, IT und Dienstleistungen haben sich hier angesiedelt. Die Umgebung ist entsprechend geprägt von einer professionellen Infrastruktur und einem wirtschaftlich dynamischen Umfeld.

Ein wesentlicher Standortvorteil ist der im interkommunalen Vergleich niedrige Gewerbesteuerhebesatz der Gemeinde Unterföhring, der derzeit bei **295 %** liegt. Dies trägt maßgeblich zur Attraktivität des Standorts für unternehmerische Tätigkeiten bei und stellt insbesondere für ertragsstarke Unternehmen einen relevanten wirtschaftlichen Vorteil dar.

Die verkehrliche Anbindung ist auch für den Individualverkehr hervorragend. Über die nahegelegenen Bundesstraßen sowie die Autobahnen A9 und A99 bestehen schnelle Verbindungen in alle Richtungen. Der Flughafen München ist in kurzer Fahrzeit erreichbar. Gastronomieangebote, Einkaufsmöglichkeiten und Einrichtungen des täglichen Bedarfs befinden sich in fußläufiger Entfernung.

Die Kombination aus erstklassiger ÖPNV-Anbindung, etabliertem Medienstandort und günstigen steuerlichen Rahmenbedingungen macht diesen Standort besonders attraktiv für Unternehmen mit langfristiger Perspektive.
Infrastruktur (im Umkreis von 5 km):
Apotheke, Lebensmittel-Discount, Allgemeinmediziner, Kindergarten, Grundschule, Hauptschule, Realschule, Gymnasium, Gesamtschule, Öffentliche Verkehrsmittel

# Sonstiges
Heizungsart: Zentralheizung
Energieträger: Fernwärme

GG Hinterberger-Rolle GbR
Karl-Rolle-Str. 43
84307 Eggenfelden
Tel. +49 (0)8721-96 92 11
Fax. +49 (0)8721-96 92 22
Vertreten durch die einzelvertretungsberechtigen Gesellschafter:
Christian Rolle
Dr. Christina Großer
Mobil: Christian Rolle +49 (0)179-7978112

ohne-makler (OM) ist weder Anbieter noch Vermittler der Immobilie. OM betreibt eine Plattform für Immobilieneigentümer, die unter anderem die gleichzeitige Veröffentlichung einzelner Inserate auf mehreren Immobilienportalen ermöglicht. Die Inhalte dieser Inserate werden ausschließlich von Dritten verantwortet. Für die Richtigkeit, Vollständigkeit oder Rechtmäßigkeit der Angaben übernimmt OM keine Haftung. Hinweise auf mögliche Rechtsverstöße können jederzeit gemeldet werden und werden nach Prüfung umgehend bearbeitet.

# Energie
Energieausweis: Energieverbrauchsausweis
Endenergieverbrauch Strom: 28 kWh/(m²*a)
Endenergieverbrauch Wärme: 74 kWh/(m²*a)
Heizungsart: Zentralheizung
Wesentliche Energieträger: Fernwärme

Anbieter-Objekt-ID: 414668