Baugrundstück mit Baugenehmigung

539.000

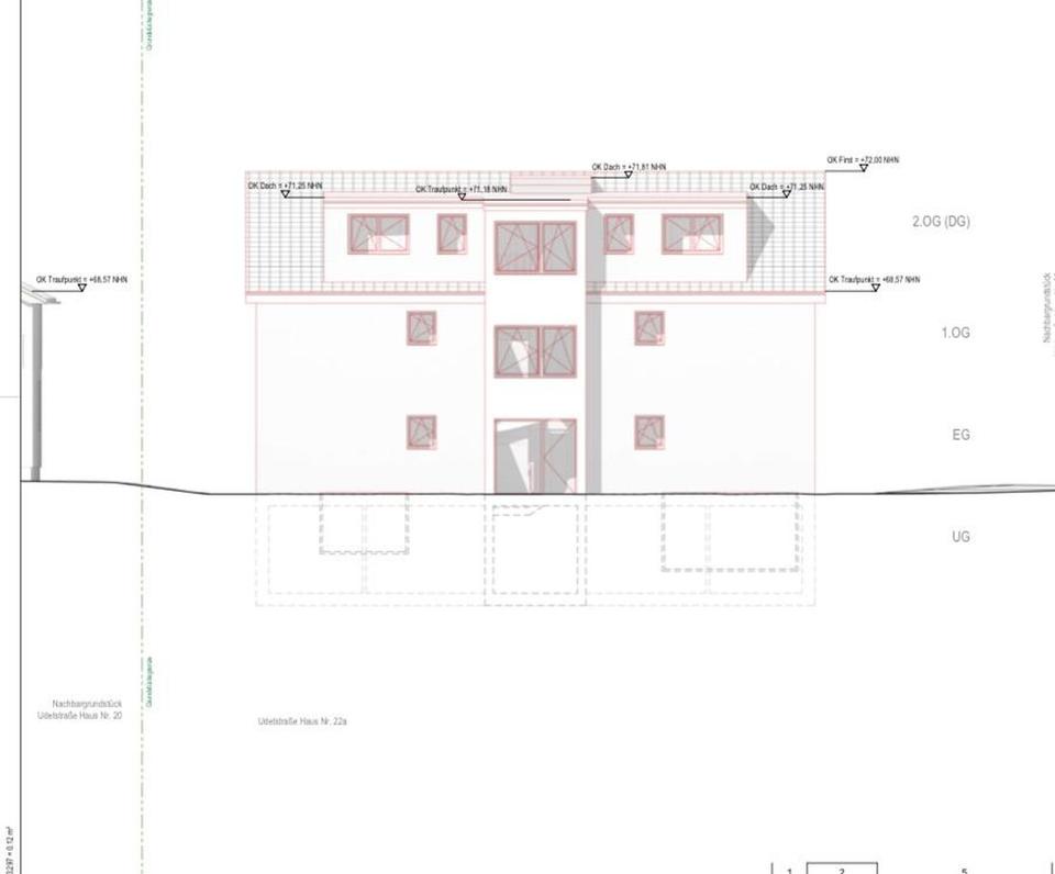
Unbebautes Grundstück mit vorhandener Baugenehmigung für ein 6-Parteien MFH in Sankt Augustin Hangelar. Pläne gibt es bei Interesse. Weitere Angaben: – Verfügbar ab: sofort Lagebeschreibung: Zentral in Sankt Augustin Hangelar. 50m von der Bahnhalt…

Category:

Beschreibung

Unbebautes Grundstück mit vorhandener Baugenehmigung für ein 6-Parteien MFH in Sankt Augustin Hangelar.
Pläne gibt es bei Interesse.

# Weitere Angaben
– Verfügbar ab: sofort

# Lagebeschreibung
Zentral in Sankt Augustin Hangelar. 50m von der Bahnhaltestelle ( Linie 66 ) Hangelar Mitte
Infrastruktur (im Umkreis von 5 km):
Apotheke, Lebensmittel-Discount, Allgemeinmediziner, Kindergarten, Grundschule, Hauptschule, Realschule, Gymnasium, Gesamtschule, Öffentliche Verkehrsmittel

# Sonstiges
Home Vision Bauprojekte GmbH & Co KG
Burim Tolaj
+49172-4177211

Makleranfragen nicht erwünscht. Nach § 7 UWG sind unaufgeforderte Kontaktaufnahmen durch Makler ohne ausdrückliche Einwilligung des Empfängers verboten!

ohne-makler (OM) ist weder Anbieter noch Vermittler der Immobilie. OM betreibt eine Plattform für Immobilieneigentümer, die unter anderem die gleichzeitige Veröffentlichung einzelner Inserate auf mehreren Immobilienportalen ermöglicht. Die Inhalte dieser Inserate werden ausschließlich von Dritten verantwortet. Für die Richtigkeit, Vollständigkeit oder Rechtmäßigkeit der Angaben übernimmt OM keine Haftung. Hinweise auf mögliche Rechtsverstöße können jederzeit gemeldet werden und werden nach Prüfung umgehend bearbeitet.

Anbieter-Objekt-ID: 433500