Beschreibung
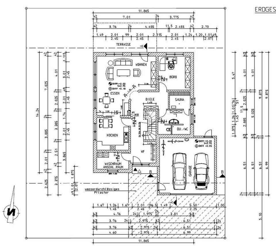
Erdgeschoss (EG):
• Wohn- & Esszimmer: Großzügig geschnitten mit bodentiefen Fenstern, die den Blick in die Natur freigeben und den Raum optimal belichten. Ein Spartherm Kaminofen sorgt für wohlige Wärme und Gemütlichkeit
• Küche: Separate, hochwertige Küche von Nolte mit eleganten Glasfronten. Ausgestattet mit Markengeräten: Spülmaschine, Backofen und Dunstabzugshaube von Miele, großem Kühlschrank von Liebherr und einem italienischen ILVE Gasherd. Gasherd ist direkt an die Gasleitung angeschlossen, daher keine Kartuschen/Gasflaschen nötig. Bei Wunsch ist der Gasherd durch einen Elektroherd austauschbar, ein Elektroanschluss ist vorhanden.
• Ein zusätzliches Schlaf- oder Arbeitszimmer
• weitere Räume: Abstellraum, Hauswirtschaftsraum mit Waschbecken, Anschlüssen für Waschmaschine sowie Gas, Wasser, Strom, Internet
• Bad: Dusche, WC und Badgarnitur. Hier ist die Sauna bereits angelegt (verkabelt und Steuerungsgerät eingebaut)
• großzügige Terrasse, die nicht in der Wohnfläche einberechnet ist
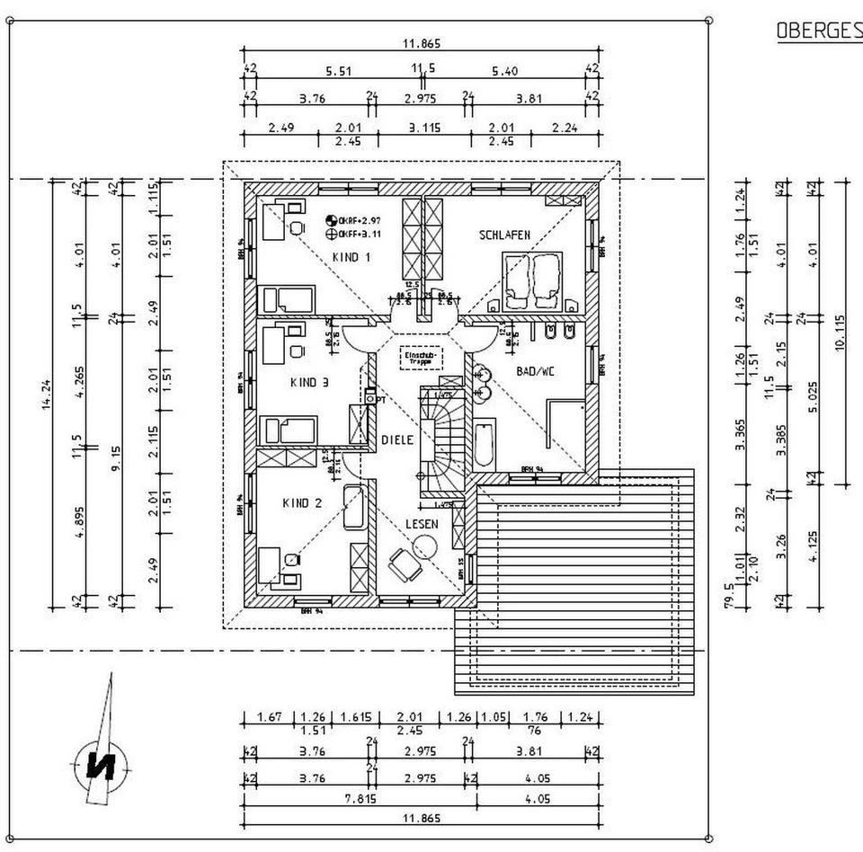
Obergeschoss (OG):
• Vier große Schlafzimmer
• Großzügiges und helles Bad mit Dusche, Badewanne, WC und Bidet.
• Vorbereitung für 2. Wohneinheit im OG: Alle notwendigen Küchenanschlüsse (Strom, Wasser, Abwasser) und Waschmaschinenanschluss im Bad sind bereits installiert
Garage:
Doppelgarage, ca. 47 qm. Mit verlegtem Kabel für zwei Ladestationen für E-Autos. Große Werkbank, Schränke und Waschbecken. Zusätzlich extra großer Stellplatz vorhanden.
Heiz-/Lüfttechnik:
Viessmann Gasheizung (Erdgas H), Viessmann Solarthermie mit 400 Liter Warmwasserspeicher . Fußbodenheizung. Zehnder Lüftungsanlage (per App steuerbar) mit Wärmerückgewinnung für optimales Raumklima.
# Ausstattung
Terrasse, Garten, Vollbad, Duschbad, Sauna, Einbauküche, Gäste-WC, Kamin, Parkett, Fliesen
Bemerkungen:
Weitere Ausstattungsmerkmale:
• Böden: Echtholzparkett (Eiche) in allen Wohn- und Schlafräumen. Hochwertige Fliesen in Holzoptik in Bädern, Küche, Flur unten und Abstellräumen
• Fenster: 3-fach verglaste Fenster von Kupil.
Elektrische Alujalousien und Rollläden. Fester im EG und über der Garage mit zusätzlichem Einbruchschutz ausgestattet.
• Tür: Aluminium-Eingangstür mit Fingerabdruckleser. Video-Türsprechanlage mit zwei Bildschirmen im EG und OG, per App steuerbar
• Licht: LED-Spots in fast allen Räumen (ausgenommen Abstellräume und das Schlaf- Arbeitszimmer im EG)
• Internet/ Fernsehen: LAN-Anschlüsse (2-fache Netzwerkdose) sind in jedem Schlafzimmer, im Arbeitszimmer, im Wohnzimmer, im EG Flur, im OG Flur und auf dem Dachboden vorhanden.
Fernsehanschlüsse sind in jedem Schlafzimmer, im Arbeitszimmer und im Wohnzimmer vorhanden
• Dach: Gedämmter Dachboden, mit Zwischensparrendämmung, zwei Dachfenster
• beide Decken sind betoniert
• Lagerraum: Dachboden, draußen ist ein Gerätehaus von Biohort aufgestellt
• Regenwasserzisterne mit 6 qm, ausgestattet mit einer Wasserpumpe und verlegter Leitung, um das gesamte Grundstück bewässern zu können
• auf dem Grundstück sind bereits Stromleitungen für einen Mähroboter verlegt
• Leerrohre für eine Photovoltaikanlage sind bereits verlegt
# Weitere Angaben
Separate WCs: 1
Verfügbar ab: nach Absprache
Objektzustand: neuwertig
Bodenbelag: Fliesen, Parkett
Grundstücksfläche: ca. 639 m²
# Lagebeschreibung
Lagebeschreibung – Bihlafingen:
Verkehrsgünstig und Naturnah
Das Objekt liegt in Bihlafingen, einem Ortsteil von Laupheim mit idealer Anbindung. Sie genießen die Ruhe der letzten Häuserreihe und den unverbauten Blick in die Natur, während die gesamte Bauentwicklung in der direkten Nachbarschaft bereits abgeschlossen ist.
Optimale Verkehrsanbindung (Autofahrt):
•B30: ca. 5 Minuten (4,2 km) – schnelle Anbindung in alle Richtungen.
•Senden: ca. 15 km
•Neu-Ulm: ca. 19 km
•Ulm: ca. 23 km
•Biberach: ca. 28 km
Infrastruktur (im Umkreis von 5 km):
Kindergarten, Grundschule, Öffentliche Verkehrsmittel
# Sonstiges
Heizungsart: Fußbodenheizung
Energieträger: Gas
Objekthighlights
•Unverbaute Aussicht: Freier Blick ins Grüne durch die Lage in der letzten Reihe am Ortsrand
•Neuwertige Qualität: Hochwertiges Massivhaus mit Ziegelsteinen (Planziegel 42,5 cm), Fertigstellung 2021
•Flexibilität: Vorbereitung für die problemlose Aufteilung in zwei separate Wohneinheiten (Anschlüsse im OG, Stromkasten für 4 Zähler)
•Top-Ausstattung: Echtholzparkett (Eiche), Markenküche, Kaminofen, vorbereitete Sauna, über 90 LED-Spots; per App steuerbar: Tür mit Fingerabdruckleser und Video-Gegensprechanlage, Lüftungsanlage
•Energieeffizienz: Solarthermie, Lüftungsanlage mit Wärmerückgewinnung und 3-fach verglaste Fenster (KUPIL)
•Komfort: bequeme fußläufige Erreichbarkeit von Kindergarten, Grundschule und Sporthalle
ohne-makler (OM) ist weder Anbieter noch Vermittler der Immobilie. OM betreibt eine Plattform für Immobilieneigentümer, die unter anderem die gleichzeitige Veröffentlichung einzelner Inserate auf mehreren Immobilienportalen ermöglicht. Die Inhalte dieser Inserate werden ausschließlich von Dritten verantwortet. Für die Richtigkeit, Vollständigkeit oder Rechtmäßigkeit der Angaben übernimmt OM keine Haftung. Hinweise auf mögliche Rechtsverstöße können jederzeit gemeldet werden und werden nach Prüfung umgehend bearbeitet.
# Energie
Energieausweis: Energiebedarfsausweis
Endenergiebedarf: 38 kWh/(m²*a)
Energieeffizienzklasse: A
Heizungsart: Fußbodenheizung
Wesentliche Energieträger: Gas
Anbieter-Objekt-ID: 427265




































