Beschreibung
Zum Verkauf steht eine 2-Zimmer-Wohnung im 1. Obergeschoss. Perspektivisch ist der Verkauf weiterer Einheiten im Haus vorgesehen, was insbesondere für Kapitalanleger interessant sein könnte.
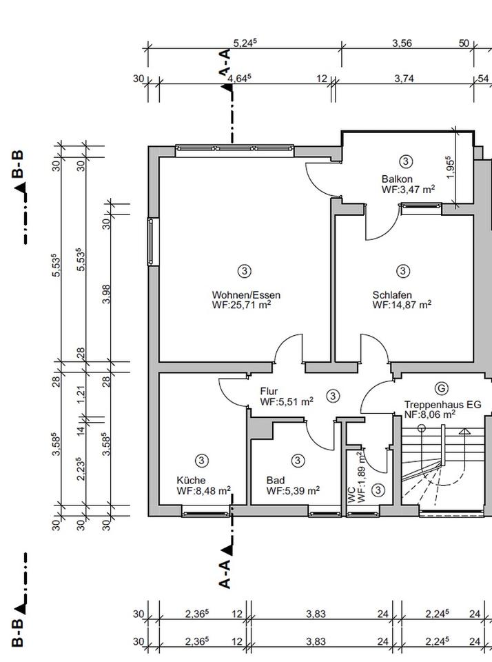
Das Haus befindet sich in einem gepflegten Zustand und überzeugt durch klassische, gut vermietbare Grundrisse. Die Wohnung verfügt über ein Bad, ein separates Gäste-WC und einen Balkon, was die langfristige Vermietbarkeit und Attraktivität deutlich erhöht.
Die Einheit ist aktuell vermietet und generiert sofortige Einnahmen.
Die aktuelle Kaltmiete beträgt 590 € im Monat, hier besteht noch deutliches Entwicklungspotenzial.
Stellplätze sowie eine Garage können zusätzlich erworben werden.
# Ausstattung
Balkon, Keller, Vollbad, Einbauküche, Gäste-WC, Laminat, Fliesen
Bemerkungen:
In der Wohnung ist bereits eine Einbauküche eingebaut.
# Weitere Angaben
– Separate WCs: 1
– Verfügbar ab: sofort
– Objektzustand: gepflegt
– Bodenbelag: Fliesen, Laminat
– Garagen/Stellplatzkaufpreis: 8.000,00 €
# Lagebeschreibung
Die Immobilie befindet sich in ruhiger und gewachsener Wohnlage von Reutlingen (72766) und überzeugt durch eine angenehme Kombination aus naturnahem Wohnen und guter städtischer Anbindung.
Die Umgebung ist überwiegend von gepflegter Wohnbebauung geprägt und bietet ein ruhiges, familienfreundliches Wohnumfeld. Grünflächen und Naherholungsmöglichkeiten befinden sich in direkter Umgebung und laden zu Spaziergängen, Sport und Erholung ein.
Einkaufsmöglichkeiten des täglichen Bedarfs, Bäckereien, Apotheken sowie weitere Dienstleister sind in wenigen Minuten erreichbar. Auch Kindergärten, Schulen und medizinische Versorgung befinden sich im näheren Umfeld.
Die Verkehrsanbindung ist sehr gut:
Der Reutlinger Stadtbereich sowie die umliegenden Stadtteile sind schnell erreichbar, ebenso die Anbindung Richtung Tübingen, Metzingen und Stuttgart. Der öffentliche Nahverkehr ist fußläufig erreichbar und gewährleistet eine komfortable Mobilität ohne Auto.
Die exzellente Lage verbindet somit Ruhe, Grünbezug und Alltagstauglichkeit – ein entscheidender Faktor für eine nachhaltige Vermietbarkeit sowie für Eigennutzer mit langfristiger Perspektive.
Infrastruktur (im Umkreis von 5 km):
Apotheke, Lebensmittel-Discount, Allgemeinmediziner, Öffentliche Verkehrsmittel
# Sonstiges
Heizungsart: Zentralheizung
Energieträger: Gas
Makleranfragen nicht erwünscht. Nach § 7 UWG sind unaufgeforderte Kontaktaufnahmen durch Makler ohne ausdrückliche Einwilligung des Empfängers verboten!
ohne-makler (OM) ist weder Anbieter noch Vermittler der Immobilie. OM betreibt eine Plattform für Immobilieneigentümer, die unter anderem die gleichzeitige Veröffentlichung einzelner Inserate auf mehreren Immobilienportalen ermöglicht. Die Inhalte dieser Inserate werden ausschließlich von Dritten verantwortet. Für die Richtigkeit, Vollständigkeit oder Rechtmäßigkeit der Angaben übernimmt OM keine Haftung. Hinweise auf mögliche Rechtsverstöße können jederzeit gemeldet werden und werden nach Prüfung umgehend bearbeitet.
# Energie
– Energieausweis: Energieverbrauchsausweis
– Energieverbrauch: 136 kWh/(m²*a)
– Energieeffizienzklasse: E
– Heizungsart: Zentralheizung
– Wesentliche Energieträger: Gas
Anbieter-Objekt-ID: 432866
















