Beschreibung
Das villenartige Anwesen besticht durch seine besondere Ausstrahlung und vereint auf harmonische Weise Tradition, Geschichte und ein gepflegtes Ambiente.
Der repräsentative Putzbau wurde im Stil des Späthistorismus, unter anderem mit Elementen der Tudorgotik, errichtet. Einzigartige Baukompositionen, feine Werksteinarbeiten sowie charakteristische Fachwerkelemente verleihen der Immobilie ihren einzigartigen und unverwechselbaren Charakter.
Schon beim Betreten lässt sich die besondere Atmosphäre dieses geschichtsträchtigen Hauses spüren.
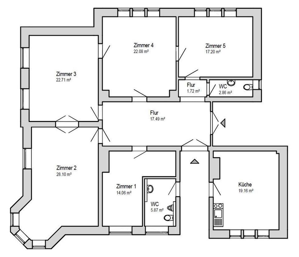
Die Büroeinheit im Erdgeschoss steht derzeit leer und bietet vielfältige Möglichkeiten für neue Nutzungskonzepte – sei es als Büro, Praxis oder für andere gewerbliche Zwecke.
Im ersten Obergeschoss sowie im Dachgeschoss befindet sich eine Arztpraxis mit Büro- und Behandlungsräumen. Diese Einheiten sind vermietet und über ein separates, im Gebäude integriertes Treppenhaus zugänglich.
Das großzügige Grundstück mit altem, gepflegtem Baumbestand unterstreicht den repräsentativen Charakter der Immobilie. Die Zufahrt sowie der Zugang zum Gebäude sind komfortabel gestaltet. Darüber hinaus stehen drei Garagen sowie zehn Stellplätze zur Verfügung.
# Ausstattung
Balkon, Garten, Keller, Duschbad, Gäste-WC, Kamin, Parkett, Fliesen, Sonstiges (s. Text)
Bemerkungen:
Nutzung: Büro- und Praxisräume
Geschosse: EG (frei), 1.OG (vermietet), 2.OG (vermietet)
Keller: unterkellert
Baujahr: ca. 1906
Gewerbefläche: ca. 455 m²
Grundstücksfläche: ca. 2.873 m²
Stellplätze: 10 Stellplätze, 3 Garagen
Letzte Renovierung: 2003/ 2004 und 2018/ 2019
Heizungsart: Gas- Zentralheizung 2019
Aufzug: bei konkreter Planung besteht die Chance einen Aufzug zu realisieren
Weitere Ausstattung: DV-Verkabelung, 2 Balkone, Terrazzoböden, Sandstein- und Fachwerkelemente
# Weitere Angaben
Separate WCs: 1
Verfügbar ab: sofort
Objektzustand: saniert
Bodenbelag: Fliesen, Parkett
Bürofläche: ca. 323 m²
# Lagebeschreibung
Die Immobilie befindet sich in zentraler Innenstadtlage der Großen Kreisstadt Mosbach im Neckar-Odenwald-Kreis, Baden-Württemberg. Die Straße liegt unmittelbar am Rand der historischen Altstadt und ist Teil eines innerstädtisch geprägten Umfelds mit gemischter Nutzung.
Die Lage zeichnet sich durch eine sehr gute fußläufige Erreichbarkeit der Mosbacher Innenstadt aus. Einkaufsmöglichkeiten, gastronomische Angebote, Dienstleister, medizinische Einrichtungen sowie öffentliche Institutionen sind in wenigen Gehminuten erreichbar. Öffentliche Parkmöglichkeiten, unter anderem das Parkdeck Altstadt, befinden sich in unmittelbarer Nähe.
Die Verkehrsanbindung ist sowohl für den Individual- als auch für den öffentlichen Personennahverkehr günstig. Der Bahnhof Mosbach bzw. Mosbach-Neckarelz ist in kurzer Zeit erreichbar und gewährleistet eine gute regionale Anbindung.
Das Umfeld ist geprägt von Gewerbe- und Dienstleistungsbetrieben, kleineren Büroeinheiten sowie gastronomischen Angeboten. Die Bebauung entspricht der typischen innerstädtischen Struktur mit überwiegend mehrgeschossigen Gebäuden.
Insgesamt handelt es sich um eine zentrale, gut erschlossene Innenstadtlage mit urbanem Charakter und hoher Nutzungsvielfalt.
Infrastruktur (im Umkreis von 5 km):
Apotheke, Lebensmittel-Discount, Allgemeinmediziner, Kindergarten, Grundschule, Hauptschule, Realschule, Gymnasium, Gesamtschule, Öffentliche Verkehrsmittel
# Sonstiges
Heizungsart: Zentralheizung
Energieträger: Gas
Impressum
Angaben gemäß § 5 DDG
Stiftung Schönau
Zähringerstraße 18
69115 Heidelberg
Vertreten durch:
Ingo Strugalla
Kontakt
Telefon: 06221 9109 0
Telefax: 06221 9109 161
E-Mail: Kontakt(at)StiftungSchoenau.de
Umsatzsteuer
USt-IdNr. gemäß § 27a UStG: DE354475221
Verantwortlich für den Inhalt nach § 55 Abs. 2 RStV
Christine Flicker
Zähringerstraße 18
69115 Heidelberg
Streitschlichtung
Die Europäische Union bietet Verfahren zur außergerichtlichen Streitbeilegung bei zertifizierten Stellen an. Wir sind weder bereit noch verpflichtet, an einem solchen Verfahren teilzunehmen.
Haftung für Inhalte
Als Diensteanbieter sind wir gemäß den allgemeinen Gesetzen für eigene Inhalte verantwortlich. Eine Verpflichtung zur Überwachung übermittelter oder gespeicherter fremder Informationen besteht nicht. Verpflichtungen zur Entfernung oder Sperrung von Informationen nach den allgemeinen Gesetzen bleiben unberührt. Eine Haftung ist jedoch erst ab Kenntnis einer konkreten Rechtsverletzung möglich. Bei Bekanntwerden entsprechender Rechtsverletzungen werden die Inhalte unverzüglich entfernt.
Haftung für Links
Unsere Website enthält Links zu externen Websites Dritter, auf deren Inhalte wir keinen Einfluss haben. Für diese Inhalte ist stets der jeweilige Anbieter oder Betreiber verantwortlich. Zum Zeitpunkt der Verlinkung waren keine Rechtsverstöße erkennbar. Eine dauerhafte inhaltliche Kontrolle ist ohne konkrete Anhaltspunkte nicht zumutbar. Bei Bekanntwerden von Rechtsverletzungen werden entsprechende Links umgehend entfernt.
Urheberrecht
Die durch die Seitenbetreiber erstellten Inhalte unterliegen dem deutschen Urheberrecht. Jede Verwertung außerhalb der gesetzlichen Grenzen bedarf der schriftlichen Zustimmung des jeweiligen Autors. Downloads und Kopien sind nur für den privaten, nicht kommerziellen Gebrauch gestattet. Inhalte Dritter werden als solche gekennzeichnet. Bei Bekanntwerden von Urheberrechtsverletzungen werden entsprechende Inhalte unverzüglich entfernt.
Organe der Stiftung
Stiftungsrat:
Julia Falk-Goerke, Margaret Horb, Michael Jung, Jochen Rapp, Prof. Dr. Winfried Schwatlo, Prof. Reinhard Walter, Helmut Wießner, Martin Wollinsky (Vorsitz)
Geschäftsführender Vorstand:
Ingo Strugalla
Stiftungsregister
Geführt im kirchlichen Stiftungsregister unter dem Az. 5617-22.
Makleranfragen nicht erwünscht. Nach § 7 UWG sind unaufgeforderte Kontaktaufnahmen durch Makler ohne ausdrückliche Einwilligung des Empfängers verboten!
ohne-makler (OM) ist weder Anbieter noch Vermittler der Immobilie. OM betreibt eine Plattform für Immobilieneigentümer, die unter anderem die gleichzeitige Veröffentlichung einzelner Inserate auf mehreren Immobilienportalen ermöglicht. Die Inhalte dieser Inserate werden ausschließlich von Dritten verantwortet. Für die Richtigkeit, Vollständigkeit oder Rechtmäßigkeit der Angaben übernimmt OM keine Haftung. Hinweise auf mögliche Rechtsverstöße können jederzeit gemeldet werden und werden nach Prüfung umgehend bearbeitet.
# Energie
Heizungsart: Zentralheizung
Wesentliche Energieträger: Gas
Anbieter-Objekt-ID: 430604













