Beschreibung
Erleben Sie 55 m² reale Wohn-Nutzfläche zum Preis von 49,5 m². Durch den hocheffizienten Loft-Schnitt und zwei gigantische Außenbereiche (Loggia & Privat-Laube) bietet dieses Objekt mehr Raumwert als klassische 60-m²-Wohnungen mit langen Fluren.
Herzstück ist der über 26 m² große, lichtdurchflutete Wohn- und Essbereich. Die Schlafnische ist bewusst kompakt und effizient gestaltet, um den offenen Charakter der Wohnung zu betonen. Ein absolutes Highlight in dieser zentralen Lage ist der dazugehörige PKW Innenhof-Stellplatz (separat vermietbar), der den täglichen Parksuchstress eliminiert.
Die Wohnung ist sofort bezugsfrei und eignet sich perfekt für Singles mit hohem Anspruch an Design und Technik oder für Kapitalanleger, die eine wertstabile Immobilie ohne Sanierungsstau suchen.
Umfangreiche Modernisierung – technisch und optisch aufgewertet
Die Wohnung wurde in den letzten Jahren mit hoher Sorgfalt und klarer Planung modernisiert und renoviert. Dabei wurden unter anderem folgende Maßnahmen umgesetzt:
• Elektrische Installationen innerhalb der Wohnung teilweise erneuert und erweitert
• Wasserleitungen ab dem Steigstrang im Bereich des Sondereigentums erneuert
• Fenster (2023 – moderne Isolierverglasung, U-Wert < 1,3 W/m²K, Schallschutz bis 40 dB)
• Böden, Decken und hochwertige LED-Beleuchtung
• Modernes Bad mit Waschmaschinen- und Wäschetrockneranschluss
• Einbauküche mit Spülmaschinenanschluss vorhanden (wie auf den Bildern im Preis inbegriffen)
• Wohnungseingangstür (2023) mit Sicherheitsausstattung
Bewusst wurden langlebige, pflegeleichte und energetisch sinnvolle Materialien eingesetzt. Die Modernisierung orientiert sich in vielen Bereichen am technischen Standard moderner Wohnkonzepte.
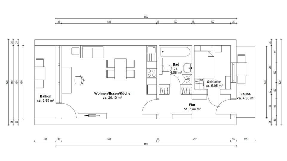
Flächenaufstellung
• Flur: 7,44 m² – Platz für Garderobe, Schränke, Kommoden
• Schlafzimmer: 5,95 m² – ideal für ein Bett bis 1,60 m Breite (mit Fenster zum ruhigen Innenhof)
• Wohnen/Essen/Küche: 26,10 m²
• Balkon: 5,85 m² (WoFlV 50 % angerechnet) (zur Lessingstr.)
• Laube: 5,97 m² (WoFlV 50 % angerechnet) Da sich die Wohnung am Ende des Laubengangs befindet, ergibt sich hier erfahrungsgemäß eine sehr ruhige und wenig frequentierte Situation.
• Fläche nach DIN 277: 55,08 m²
Bezugsfrei und sofort nutzbar – ideal für:
• Eigennutzer, die ein hochwertiges, ruhiges Zuhause in Bestlage suchen – mit bereits modernisiertem Wohnkomfort
• Kapitalanleger, die auf Substanz, Lage und nachhaltige Vermietbarkeit setzen
Modernisierungsaufwand bereits berücksichtigt
Umfangreiche Renovierungs- und Modernisierungsmaßnahmen wie Elektrik, Leitungen, Fenster, Bad, Böden und Küche verursachen heute häufig Investitionskosten im Bereich von etwa 1.000–1.500 € pro m², abhängig von Umfang und Ausführung.
Ein Großteil dieser Maßnahmen wurde bei dieser Wohnung bereits umgesetzt, sodass sich die Wohnung heute in einem modernisierten Zustand präsentiert.
Finanzielle Daten (WiPlan 2026)
• Umlagefähige Kosten: 100 €/Monat
• Nicht umlagefähige Kosten: 50 €/Monat
• Rücklagenzuführung: 116 €/Monat
• Hausgeld-Vorschuss gesamt: 266 €/Monat
• Miteigentumsanteil (MEA): 35/1.000
• 2025 Grundsteuer: 77,94 €/Jahr
Rücklagenstand der WEG
• 31.12.2024: 48.883,81 € gesamt → anteilig ca. 1.710,90 € (Abrechnung)
• 10.06.2025 Rücklage 63.883,95 € (2025 Protokoll Info, laut WiPlan 2026 40.000 € Rücklagenzuführung) → anteilig ca. 2.235,93 €
Besonderheiten für Käufer
• Solide Rücklagenbildung, keine beschlossenen Sonderumlagen
• Energetische Verbesserung durch 2023 erneuerte Gas-Zentralheizung
• Fenster im Sondereigentum: Austausch individuell steuerbar
# Ausstattung
Balkon, Keller, Fahrstuhl, Vollbad, Duschbad, Einbauküche, Fliesen
Bemerkungen:
Umfangreiche Modernisierung im historischen Bestand
Die Wohnung wurde in den letzten Jahren nicht nur optisch überarbeitet, sondern auch technisch in vielen Bereichen modernisiert. Dadurch präsentiert sich die Einheit heute in einem zeitgemäßen und gepflegten Zustand – eine Kombination, die im Altbaubestand der Heidelberger Weststadt nicht häufig zu finden ist.
Für Käufer bedeutet das: Eine modernisierte Wohnung mit bereits umgesetzten Renovierungs- und Modernisierungsmaßnahmen.
Die Heizungsanlage des Gebäudes wurde 2023 erneuert.
Mit einem Energiekennwert von 106 kWh/(m²·a), Energieklasse D, erreicht das Gebäude für ein Haus dieses Baujahres einen soliden energetischen Standard.
Raumaufteilung des City Lofts
• Wohnen/Essen/Küche: 26,10 m²
• Zimmer: 5,95 m² als Schlafzimmer oder Homeoffice nutzbar, Platz für Doppelbett bis 1,60 m Breite
Ausstattungsmerkmale
• Elektrische Installationen innerhalb der Wohnung teilweise erneuert und erweitert
• Wasserleitungen im Bereich des Sondereigentums ab dem Steigstrang erneuert
• Fenster (2023) – moderne Isolierverglasung, U-Wert < 1,3 W/m²K, Schallschutz bis 40 dB
• Neue Sicherheitseingangstür (2023)
• Abgehängte Decken mit energieeffizienten LED-Spots
• Hochwertiger, pflegeleichter Feinsteinzeugboden in allen Räumen
• Modernes Bad mit Waschmaschinenanschluss und Platz für Trockner
• Einbauküche mit Spülmaschinenanschluss inklusive
• Balkon und separate Laube – beide überdacht, mit Stromanschluss und eigenem Wasserablauf (ideal für Pflanzen oder E-Bike-Ladung)
• Großer, trockener Kellerraum (ca. 8 m²)
• PKW Innenhof-Stellplatz (separat vermietbar)
• Fahrradabstellmöglichkeiten: abschließbarer Fahrradraum + zusätzlicher Außenstellplatz
Haus & Gemeinschaft
• Gepflegtes Mehrfamilienhaus mit 18 Einheiten (davon 1 Gewerbeeinheit)
• Professionelle, langjährig tätige Hausverwaltung
• 2023 neue Gas-Zentralheizung installiert (60.640,90 €), im Rahmen dessen wurde ein Sanierungsfahrplan erstellt, aber nicht beschlossen
• Umgesetzte Instandhaltungen: Briefkästen, Tiefgaragensanierung, hydraulischer Abgleich der Heizung
• Glasfaserausbau in Planung (2025 Begehung durch Telekom statt gefunden)
# Weitere Angaben
– Verfügbar ab: sofort
– Objektzustand: saniert
– Bodenbelag: Fliesen
– Garagen/Stellplatzkaufpreis: 15.000,00 €
# Lagebeschreibung
Die Lessingstraße liegt im Herzen der Heidelberger Weststadt – einem der gefragtesten Stadtteile mit unverwechselbarem Gründerzeit-Flair.
• Mobilität: Der Heidelberger Hauptbahnhof (750 m) ist in wenigen 5 Gehminuten erreichbar, was die Wohnung ideal für Pendler (SAP, BASF, Mannheim/Frankfurt) macht. Straßenbahn- und Bushaltestellen befinden sich in unmittelbarer Nähe.
• Nahversorgung: Supermärkte, Bio-Läden, charmante Cafés und erstklassige Restaurants sind fußläufig erreichbar.
• Freizeit: Die Nähe zum Neckarufer und zur Heidelberger Altstadt (1,7 km zum Bismarckplatz / Altstadt ) bietet einen extrem hohen Freizeitwert.
• Universität Heidelberg: 2,5 km
• Parken: Während die Parksituation in der Weststadt prekär ist, verfügen Sie hier über einen eigenen, fest zugewiesenen PKW Innenhof-Stellplatz (separat vermietbar)
Diese Lage garantiert nicht nur eine exzellente Lebensqualität für Eigennutzer, sondern auch eine dauerhaft einfache Vermietbarkeit auf höchstem Mietniveau.
Infrastruktur (im Umkreis von 5 km):
Apotheke, Lebensmittel-Discount, Allgemeinmediziner, Kindergarten, Grundschule, Hauptschule, Realschule, Gymnasium, Gesamtschule, Öffentliche Verkehrsmittel
# Sonstiges
Heizungsart: Zentralheizung
Energieträger: Gas
DER RENDITE-TURBO IN HEIDELBERG-WESTSTADT: MODERNISIERUNG ALS VORTEIL IM MIETMARKT
In der Heidelberger Weststadt (69115) ist der Markt für sanierte Eigentumswohnungen faktisch leergefegt. Dieses City-Loft kombiniert die „Heilige Dreifaltigkeit“ des Immobilien-Investments in einer Konstellation, die ein absolutes Alleinstellungsmerkmal („Unicorn“) darstellt:
1.) umfassend modernisierte Wohnung
2.) zeitgemäßer technischer Wohnstandard im Altbaubestand
3.) eigener PKW Innenhof-Stellplatz (separat vermietbar)
Während viele Investoren noch auf Baustellen sitzen oder unkalkulierbare Altbaurisiken tragen, erwerben Sie hier eine Einheit mit bereits modernisierten und gepflegtem Zustand.
Modernisierungsgrad als Vorteil im Mietmarkt
Die in den letzten Jahren durchgeführten Modernisierungsmaßnahmen – unter anderem an Elektrik innerhalb der Wohnung, Leitungen im Bereich des Sondereigentums, Fenstern, Bad und Bodenbelägen – schaffen einen Wohnstandard, der im Altbaubestand der Heidelberger Weststadt nicht häufig anzutreffen ist.
Gerade im regulierten Mietmarkt kann der Modernisierungsgrad einer Wohnung für Vermieter eine wichtige Rolle bei der Mietgestaltung und Vermietbarkeit spielen.
Drei Strategien für Ihren Cashflow Dank der bereits installierten Einbauküche und des hocheffizienten Loft-Schnitts (55 m² reale Nutzflächenwirkung!) eröffnen sich drei Wege:
1.) Business-Vermietung (z. B. Wunderflats / Spacest): Top-Lage für Expats (SAP, DKFZ, Uni). Realistische Warmmiete (möbliert): ca. 1.500 € – 1.700 € mtl. Bruttorendite auf Neubau-Niveau!
2.) Langfristige Vermietung: Erwartete Kaltmiete: ca. 850 € – 950 € zzgl. PKW Stellplatz.
3.) Der PKW Stellplatz-Hebel: Ein eigener Innenhof-Stellplatz ist die „härteste Währung“ der Weststadt. Separat vermietbar für 100 € – 120 € mtl.
Einstieg & Wertentwicklung Beim Kaufpreis von 235.000 € (provisionsfrei) sparen Sie ca. 8.400 € Maklercourtage. Dieses Kapital fließt bei Ihnen direkt in die (steuerlich absetzbare) Möblierung statt in eine Vermittlungsgebühr. Die Weststadt ist Heidelbergs stabilste Lage – Leerstand ist hier ein Fremdwort.
FAZIT Dieses Objekt funktioniert für Menschen – und für Zahlen. Ein modernisiertes City-Loft, bezugsfertig und als Rendite-Maschine konzipiert.
Rechtlicher Hinweis:
Die genannten Mietansätze basieren auf aktuellen Marktdaten (Stand 03/2026) und Erfahrungswerten. Eine Garantie für Mieterträge kann nicht übernommen werden. Prospekthaftung ausgeschlossen.
Makleranfragen nicht erwünscht. Nach § 7 UWG sind unaufgeforderte Kontaktaufnahmen durch Makler ohne ausdrückliche Einwilligung des Empfängers verboten!
ohne-makler (OM) ist weder Anbieter noch Vermittler der Immobilie. OM betreibt eine Plattform für Immobilieneigentümer, die unter anderem die gleichzeitige Veröffentlichung einzelner Inserate auf mehreren Immobilienportalen ermöglicht. Die Inhalte dieser Inserate werden ausschließlich von Dritten verantwortet. Für die Richtigkeit, Vollständigkeit oder Rechtmäßigkeit der Angaben übernimmt OM keine Haftung. Hinweise auf mögliche Rechtsverstöße können jederzeit gemeldet werden und werden nach Prüfung umgehend bearbeitet.
# Energie
– Energieausweis: Energieverbrauchsausweis
– Energieverbrauch: 106 kWh/(m²*a)
– Energieeffizienzklasse: D
– Heizungsart: Zentralheizung
– Wesentliche Energieträger: Gas
Anbieter-Objekt-ID: 434214



























