Beschreibung
wegen Aufgabe unseres Projektes „Mehrgenerationenhaus“ und zwei aus unterschiedlichen Gründen nicht zustande gekommenen Verkäufen bieten wir hier ein großes, vielseitig nutzbares Grundstück mit zwei Wohnhäusern und Nebengebäuden zum Kauf an.
In unserem Umfeld haben sich einige entscheidende Veränderungen ergeben. Wegen Aufenthalt im Ausland werden wir eventuelle Besichtigungstermine nur mit ernsthaften und solventen Interessenten abhalten.
Das Grundstück befindet sich in einem Mischgebiet für Wohn- und Gewerbebauten im Zentrum der Ortschaft 24616 Brokstedt, besteht aus mehreren Flurstücken und ist ca. 3000m² groß. Die Zufahrt kann von zwei Straßen erfolgen.
Bebaut ist das Grundstück im vorderen Bereich mit einem MFH Bj. ca. 1904 (Abrißobjekt oder Sanierung möglich), im hinteren Bereich mit einem sanierten MFH Bj. ca. 1968/2022.
Das alte Gebäude wurde zur besseren Begutachtung bereits entkernt.
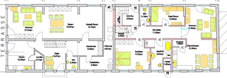
Das neuere Gebäude war ursprünglich die Werkhalle einer Tischlerei im EG und Lagerfläche im OG. Die hintere Hälfte des Gebäudes wurde 1993 in eine Wohnung umgebaut; die Wohnfläche beträgt ca. 186 m² über beide Etagen und besteht im EG aus Eingangsflur mit Essecke und Galerie, Wohnzimmer mit Kaminecke, Schlafzimmer, Küche mit Speisekammer, WC und HWR.
Im OG befinden sich ein Büro, Gäste-WC mit Dusche, ein Badezimmer mit WC, Badewanne und Dusche und 4 weitere Wohnräume.
Die gefliesten Räume sind mit Fußbodenheizung und Radiatoren, die anderen Räume mit Radiatoren ausgestattet.
Die Heizung für die große Wohnung ist ein Gas-Brennwertgerät von WEISHAUPT modernster Bauart (Wasserstoffverträglich lt. Einbaubetrieb) und einem Warmwasser-Schichtladespeicher, Einbau Juni 2022.
Im vorderen Teil des Gebäudes können zwei Wohnungen mit je ca. 95 m² Wfl. errichtet werden. Die Wohnung im EG ist im Rohbauzustand, im OG kann die Wohnung in Trockenbauweise erstellt werden. Die Heizungsanlagen (je eine Brennwerttherme WEISHAUPT mit WW-Erhitzung, Fußboden-Heizkreisverteiler und ein Handtuchheizkörper) sind bereits in Betrieb und ebenfalls in 06/2022 abgenommen worden.
Jede Wohnung hat eigene Strom- und Gaszähler, es gibt einen Hauptwasserzähler und drei Wohnungswasserzähler, Glasfaser-Anschluss mit Kabel-TV in jede Wohnung verteilt. Der Elektro-Hausanschluss wurde erneuert, Hausanschlussleitung und Absicherung ist Wallbox-geeignet.
Die Gebäudefassade wurde mit 10cm Dämmmatten versehen und eine 11,5er Klinkerwand mit Luftschicht vorgemauert. Insgesamt wurden 30 neue Fenster (teilweise mit Schallschutzverglasung) und Außentüren eingebaut.
Der Dachaufbau vom gesamten Gebäude wurde ersetzt, im Bereich der großen Wohnung beträgt die Dämmdicke ca. 280mm.
Wie erwähnt, brechen wir das Projekt „Mehrgenerationenhaus“ ab. Es ist noch viel zu tun, dieses Angebot richtet sich deshalb eher an Profis oder ambitionierte Handwerker. Bei entsprechender Herangehensweise bietet dieses Objekt noch richtig Möglichkeiten der Erweiterung, auch hinsichtlich der weiteren Bebauung des Grundstücks.
Alle Baumaßnahmen sind beantragt und genehmigt worden.
Nach Bedarf kann auch die Übernahme von Material, Werkzeugen und Maschinen abgestimmt werden.
Das Campingfahrzeug auf den Bildern gehört aber nicht zum Angebot 😉
Und liebe Maklerinnen und Makler: wir vergeben keine Makleraufträge, unser Angebot dürfen Sie aber gerne an Ihre vorgemerkten Kunden weitergeben.
Kontakt: über dieses Portal
# Ausstattung
Terrasse, Garten, Dachterrasse, Vollbad, Duschbad, Einbauküche, Gäste-WC, Laminat, Fliesen, Sonstiges (s. Text)
# Weitere Angaben
Separate WCs: 1
Verfügbar ab: nach Absprache
Objektzustand: modernisiert
Bodenbelag: Fliesen, Laminat
Grundstücksfläche: ca. 3000 m²
# Lagebeschreibung
Infrastruktur (im Umkreis von 5 km):
Apotheke, Lebensmittel-Discount, Allgemeinmediziner, Kindergarten, Grundschule, Hauptschule, Öffentliche Verkehrsmittel
# Sonstiges
Heizungsart: Zentralheizung
Energieträger: Gas
Energieausweis nicht vorhanden
Makleranfragen nicht erwünscht. Nach § 7 UWG sind unaufgeforderte Kontaktaufnahmen durch Makler ohne ausdrückliche Einwilligung des Empfängers verboten!
ohne-makler (OM) ist weder Anbieter noch Vermittler der Immobilie. OM betreibt eine Plattform für Immobilieneigentümer, die unter anderem die gleichzeitige Veröffentlichung einzelner Inserate auf mehreren Immobilienportalen ermöglicht. Die Inhalte dieser Inserate werden ausschließlich von Dritten verantwortet. Für die Richtigkeit, Vollständigkeit oder Rechtmäßigkeit der Angaben übernimmt OM keine Haftung. Hinweise auf mögliche Rechtsverstöße können jederzeit gemeldet werden und werden nach Prüfung umgehend bearbeitet.
# Energie
Heizungsart: Zentralheizung
Wesentliche Energieträger: Gas
Anbieter-Objekt-ID: 279017

























