2-Familienhaus mit flexiblen Nutzungsmöglichkeiten

448.000

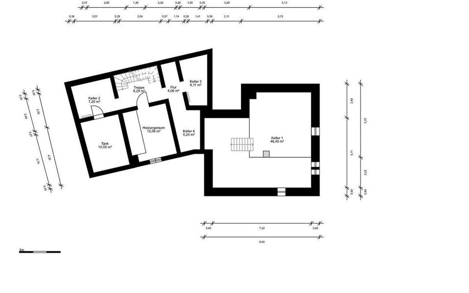
Dieses interessante Haus mit ca. 291 m² Wohnfläche und 14 Zimmern befindet sich im alten Ortskern von Stockstadt am Rhein. Das Objekt besteht aus einem sanierungsbedürftigen Altbau mit zwei Etagen und Dachgeschoss ( rund 181 m²), sowie einem gepfl…

Beschreibung

Dieses interessante Haus mit ca. 291 m² Wohnfläche und 14 Zimmern befindet sich im alten Ortskern von Stockstadt am Rhein. Das Objekt besteht aus einem sanierungsbedürftigen Altbau mit zwei Etagen und Dachgeschoss ( rund 181 m²), sowie einem gepflegten Anbau (rund 110 m²) aus den 80er Jahren. Im Anbau sind 4 Zimmer mit Balkon, Küche, Bad und Gäste-WC nach geringen Schönheitsreparaturen sofort beziehbar. Der Altbau kann mit einfachen Maßnahmen vom Anbau getrennt werden, dann erhält man zwei vollwertige Wohneinheiten mit viel Platz für diverse Nutzungskonzepte. Bisher wurde es zusammen als ein großes Wohnhaus genutzt.
Der geschützte Hof bietet Platz für einen Freisitz und auch Parkmöglichkeiten.
Eine Garage ist ebenfalls vorhanden. Das Haus ist unterkellert und bietet somit weiteren Stauraum. Das Haus ist ab sofort verfügbar und eignet sich ideal für Familien, als Mehrgenerationenhaus oder zum Abteilen in zwei getrennte Wohnhäuser ähnlich einem Doppelhaus.

# Ausstattung
Balkon, Terrasse, Keller, Vollbad, Duschbad, Gäste-WC, Laminat, Teppichboden, Fliesen

Bemerkungen:
Der Altbau bedarf einer Vollsanierung.
Die Ausstattung im Anbau entspricht dem Standard der 80er Jahre und ist grundsätzlich sofort nutzbar.

# Weitere Angaben
– Separate WCs: 1
– Verfügbar ab: nach Absprache
– Objektzustand: renovierungsbedürftig
– Bodenbelag: Fliesen, Teppich, Laminat

– Grundstücksfläche: ca. 292 m²

# Lagebeschreibung
Stockstadt am Rhein ist eine Gemeinde im Landkreis Groß-Gerau in Hessen. Die Lage bietet eine gute Anbindung an umliegende Städte und eine solide Nahversorgung. Einkaufsmöglichkeiten für den täglichen Bedarf sowie Ärzte und Schulen sind in der Nähe vorhanden. Die Umgebung lädt zu Freizeitaktivitäten im Grünen ein, durch die Nähe zum Naturschutzgebiet Kühkopf-Knoblochsaue.

Die Gemeinde ist Haltepunkt der Riedbahn Frankfurt–Mannheim, nach Darmstadt besteht eine Busverbindung.
Infrastruktur (im Umkreis von 5 km):
Apotheke, Lebensmittel-Discount, Allgemeinmediziner, Kindergarten, Grundschule, Öffentliche Verkehrsmittel

# Sonstiges
Heizungsart: Zentralheizung
Energieträger: Öl
Energieausweis nicht vorhanden

Makleranfragen nicht erwünscht. Nach § 7 UWG sind unaufgeforderte Kontaktaufnahmen durch Makler ohne ausdrückliche Einwilligung des Empfängers verboten!

ohne-makler (OM) ist weder Anbieter noch Vermittler der Immobilie. OM betreibt eine Plattform für Immobilieneigentümer, die unter anderem die gleichzeitige Veröffentlichung einzelner Inserate auf mehreren Immobilienportalen ermöglicht. Die Inhalte dieser Inserate werden ausschließlich von Dritten verantwortet. Für die Richtigkeit, Vollständigkeit oder Rechtmäßigkeit der Angaben übernimmt OM keine Haftung. Hinweise auf mögliche Rechtsverstöße können jederzeit gemeldet werden und werden nach Prüfung umgehend bearbeitet.

# Energie
– Heizungsart: Zentralheizung
– Wesentliche Energieträger: Öl

Anbieter-Objekt-ID: 439830