Beschreibung
Die Wohnung ist im 2.Stockwerk (ohne Aufzug) in einer kleinen Wohnanlage mit 2 Gewerbeeinheiten und 7 Wohneinheiten.
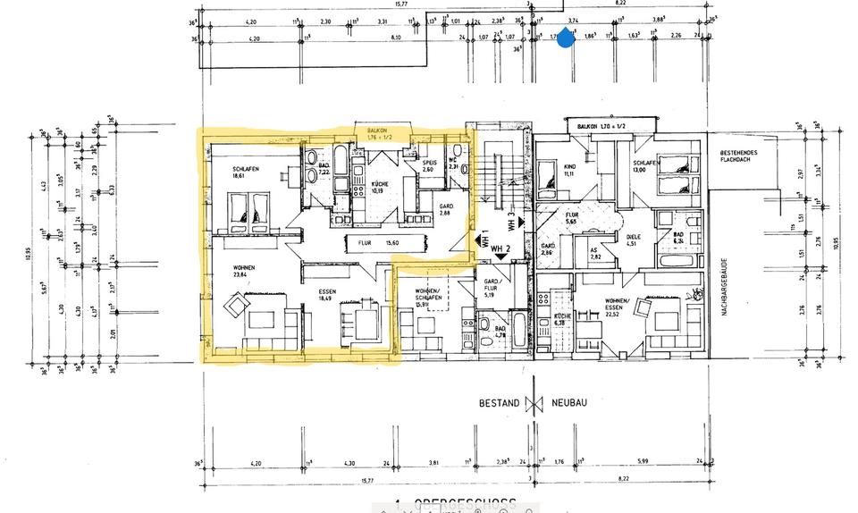
Die Wohnung besitz ein Gäste-WC, Einbauschrank, 3 Zimmer, Bad (mit Waschmaschinenanschluss, Dusche und Wanne), Küche mit einen kleinen Balkon und einen Abstellraum. Zur Wohnung gehört auch noch ein Kellerraum.
Zur Straßenseite ist die Wohnung mit Schallschutzverglasung ausgestattet.
Die Zentralheizung wurde vor 2 Jahren komplett erneuert.
Im Jahr 2000 wurde das komplette Gebäude mit einem Vollwärmeschutz versehen.
In der Wohnung können nach bedarf diverse Renovierungen vorgenommen werden.
# Ausstattung
Balkon, Keller, Vollbad, Gäste-WC, Fliesen
# Weitere Angaben
Separate WCs: 1
Verfügbar ab: nach Absprache
Objektzustand: renovierungsbedürftig
Bodenbelag: Fliesen
# Lagebeschreibung
Vilsbiburg gehört zum Landkreis Landshut und ist in ca. 20 Minuten über die Bundesstraße B 299 von Landshut aus bequem zu erreichen. Die nahe gelegene B 388 verbindet Vilsbiburg mit dem Rottal in Richtung Passau und entgegengesetzt mit der Landeshauptstadt München.
Die Stadt bietet derzeit ca.11.500 Einwohnern eine angenehme und liebenswerte Heimat mit bekannten Arbeitgebern (z.B die Fa. Flottweg oder Fa. Dräxlmaier) und vielen Annehmlichkeiten. Gerade im gesellschaftlichen Leben und bei sportlichen Aktivitäten (z.B. 1. Bundesliga Volleyball Damen, 9-Loch-Golfplatz etc.) ist Vilsbiburg eine Topadresse.
Als Zentrum des südlichen Landkreises Landshut weist die Stadt alle notwendigen Bildungseinrichtungen wie ein Gymnasium, eine Realschule, eine Fachschule für Krankenpflege, eine Volkshochschule oder auch eine Musikschule auf.
Ärzte für Allgemeinmedizin, verschiedene Fachärzte und ein Kreiskrankenhaus gewährleisten beste medizinische Versorgung.
Alle Einrichtungen des täglichen Bedarfs und Einkaufsmöglichkeiten sind mehr als ausreichend vorhanden.
Infrastruktur (im Umkreis von 5 km):
Apotheke, Lebensmittel-Discount, Allgemeinmediziner, Kindergarten, Grundschule, Hauptschule, Realschule, Gymnasium, Gesamtschule, Öffentliche Verkehrsmittel
# Sonstiges
Heizungsart: Zentralheizung
Energieträger: Gas
HL Immo-Invest GmbH
Ringgraben 24 | 84130 Dingolfing
Sitz der GmbH: Dingolfing | Amtsgericht Landshut, HRB 12350
Ust-ID: DE 33 81 200 51
Geschäftsführung: Ulrich Lübeck, Georg Holzner
Sonstige Unterlagen:
– https://www.ohne-makler.net/immobilie/file/1592093.pdf ()
Makleranfragen nicht erwünscht. Nach § 7 UWG sind unaufgeforderte Kontaktaufnahmen durch Makler ohne ausdrückliche Einwilligung des Empfängers verboten!
ohne-makler (OM) ist weder Anbieter noch Vermittler der Immobilie. OM betreibt eine Plattform für Immobilieneigentümer, die unter anderem die gleichzeitige Veröffentlichung einzelner Inserate auf mehreren Immobilienportalen ermöglicht. Die Inhalte dieser Inserate werden ausschließlich von Dritten verantwortet. Für die Richtigkeit, Vollständigkeit oder Rechtmäßigkeit der Angaben übernimmt OM keine Haftung. Hinweise auf mögliche Rechtsverstöße können jederzeit gemeldet werden und werden nach Prüfung umgehend bearbeitet.
# Energie
Energieausweis: Energiebedarfsausweis
Endenergiebedarf: 199 kWh/(m²*a)
Energieeffizienzklasse: F
Heizungsart: Zentralheizung
Wesentliche Energieträger: Gas
Anbieter-Objekt-ID: 327130












