Beschreibung
# Objektbeschreibung
Zweifamilienhaus mit 3.879 m² Eigentumsgrundstück und ehamliger Scheune.
Erstmals errichtet 1850 und 2017 als Zweifamlienhaus umfangreich saniert.
Kellergeschoss
– 45 m²
– 4 Räume
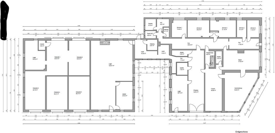
Erdgeschoss
– 235 m² Wohnfläche
– 579 m² Nutzfläche
– 5 Schlafzimmer
– Wohnzimmer, Esszimmer, Küche & Bad
– Heizungsraum & Hauswirtschaftsraum
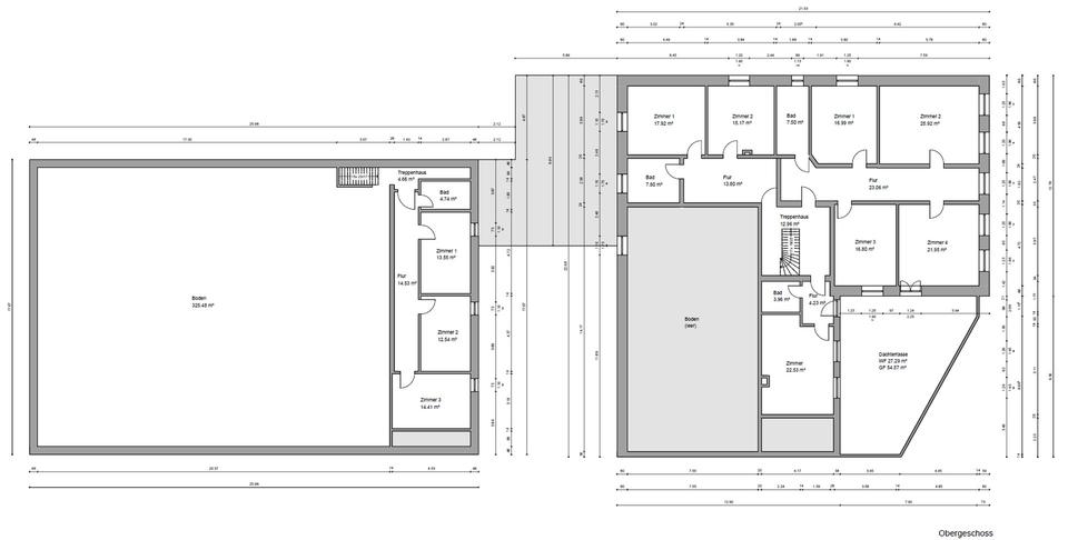
Obergeschoss:
– 284 m² Wohnfläche
– 353 m² Nutzfläche
– 8 Schlafzimmer
– Wohnzimmer, Esszimmer, Küche
– 3 Badezimmer
– Dachterasse
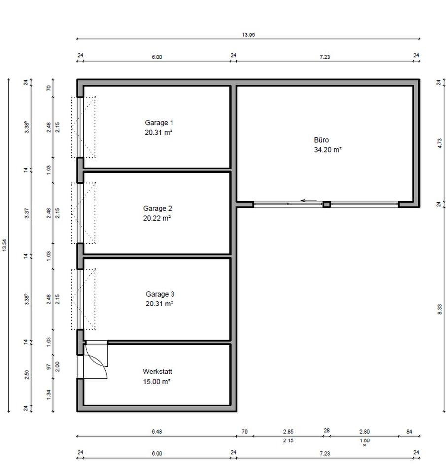
Es stehen drei Garagen mit Werkstatt und einen Büro als Nebengebäude zur Verfügung.
Die Dächer sind ganzflächig bereits mit Photovoltaikmodulen ausgestattet und es muss noch die AC-seitige Fertigstellung erfolgen. Auch die Garagen sind ganzflächig mit PV-Modulen (Flachdach) ausgestattet.
Das Objekt ist derzeit NICHT vermietet und komplett freigestellt.
# Ausstattung
Balkon, Terrasse, Garten, Keller, Dachterrasse, Duschbad, Gäste-WC, Laminat, Teppichboden, Fliesen
Bemerkungen:
Energieausweis liegt vor und wird bei Besichtigung zur Einsicht zur Verfügung gestellt.
# Weitere Angaben
Separate WCs: 1
Verfügbar ab: nach Absprache
Objektzustand: gepflegt
Bodenbelag: Fliesen, Teppich, Laminat
Grundstücksfläche: ca. 3879 m²
# Lagebeschreibung
Das Grundstück befindet sich an einer Landstraße in nur 2 km Entfernung von der A33. Das Stadtzentrum Dissen a.T.W. ist in nur 4,5 km erreichbar.
# Sonstiges
Heizungsart: Zentralheizung
Energieträger: Gas
Makleranfragen nicht erwünscht. Nach § 7 UWG sind unaufgeforderte Kontaktaufnahmen durch Makler ohne ausdrückliche Einwilligung des Empfängers verboten!
ohne-makler (OM) ist weder Anbieter noch Vermittler der Immobilie. OM betreibt eine Plattform für Immobilieneigentümer, die unter anderem die gleichzeitige Veröffentlichung einzelner Inserate auf mehreren Immobilienportalen ermöglicht. Die Inhalte dieser Inserate werden ausschließlich von Dritten verantwortet. Für die Richtigkeit, Vollständigkeit oder Rechtmäßigkeit der Angaben übernimmt OM keine Haftung. Hinweise auf mögliche Rechtsverstöße können jederzeit gemeldet werden und werden nach Prüfung umgehend bearbeitet.
# Energie
Energieausweis: Energiebedarfsausweis
Endenergiebedarf: 158 kWh/(m²*a)
Energieeffizienzklasse: E
Heizungsart: Zentralheizung
Wesentliche Energieträger: Gas
Anbieter-Objekt-ID: 405667


















