Beschreibung
# Objektbeschreibung
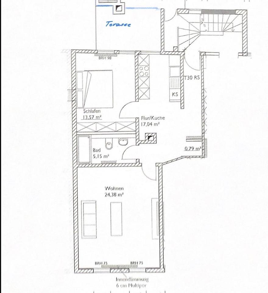
Tolle, grundsanierte 2 – Zimmer – Wohnung
Innen liegendes Bad mit Design Vinylbelag, und Dusche.
Stilvoll saniert : mit Innendämmung, Lehmputz und neuen Holzsprossen Fenstern
Die Wohnung befindet sich im 1.OG eines Wohn- und Geschäftshauses und hat nach
Süd – Westen eine sonnige Dachterrasse .
Bei der Sanierung wurde Wert auf die Verwendung natürlicher Baustoffe gelegt.
Es wird mit Fernwärme geheizt und ein Glasfaser Anschluss ist vorhanden.
# Ausstattung
Dachterrasse, Duschbad, Laminat
# Weitere Angaben
Verfügbar ab: 01.04.2026
Objektzustand: gepflegt
Bodenbelag: Laminat, Kunststoff
# Lagebeschreibung
Die Lage ist hervorragend! Über einer guten Buchhandlung gelegen, gleich um die Ecke einer Bäckerei mit Café, Drogerie, Schuster, Eisdiele, hochwertiges Haushaltswaren Geschäft gegenüber, Bioladen und Restaurants die Strasse hoch, Bushaltestelle schräg gegenüber.
In ca.5 min Fußweg sind Sie im Grünen. Der Mittellandkanal und der Allersee laden zu Spaziergängen, Radtouren und im Sommer zum schwimmen ein.
Infrastruktur (im Umkreis von 5 km):
Apotheke, Lebensmittel-Discount, Allgemeinmediziner, Kindergarten, Grundschule, Hauptschule, Realschule, Gymnasium, Öffentliche Verkehrsmittel
# Sonstiges
Heizungsart: Zentralheizung
Energieträger: Fernwärme
Makleranfragen nicht erwünscht. Nach § 7 UWG sind unaufgeforderte Kontaktaufnahmen durch Makler ohne ausdrückliche Einwilligung des Empfängers verboten!
ohne-makler (OM) ist weder Anbieter noch Vermittler der Immobilie. OM betreibt eine Plattform für Immobilieneigentümer, die unter anderem die gleichzeitige Veröffentlichung einzelner Inserate auf mehreren Immobilienportalen ermöglicht. Die Inhalte dieser Inserate werden ausschließlich von Dritten verantwortet. Für die Richtigkeit, Vollständigkeit oder Rechtmäßigkeit der Angaben übernimmt OM keine Haftung. Hinweise auf mögliche Rechtsverstöße können jederzeit gemeldet werden und werden nach Prüfung umgehend bearbeitet.
# Energie
Energieausweis: Energiebedarfsausweis
Endenergiebedarf: 79 kWh/(m²*a)
Energieeffizienzklasse: C
Baujahr: 1840
Heizungsart: Zentralheizung
Wesentliche Energieträger: Fernwärme
Anbieter-Objekt-ID: 421024
















