Beschreibung
# Objektbeschreibung
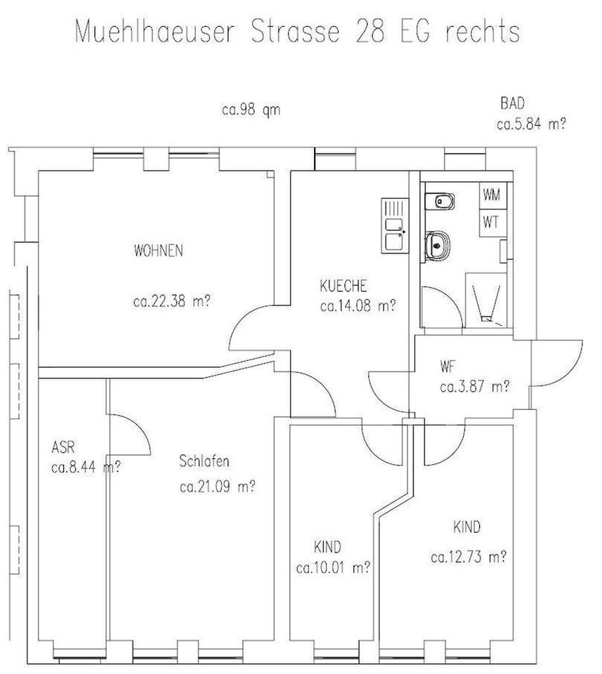
Diese gemütliche und helle 4-Zimmer Wohnung (Wohnzimmer, Schlafzimmer und 2 Kinderzimmer) mit ca. 98 m² Wohnfläche befindet sich im Erdgeschoss eines Wohn- und Geschäftshauses in Dingelstädt. Die Wohnung verfügt über ein Badezimmer mit Dusche und Fußbodenheizung, inkl. Waschmaschinen- und Trockneranschluss, sowie einem Abstellraum innerhalb der Wohnung. Ein Stellplatz, ein separater Fahrrad- und Geräteraum gehören ebenfalls zur Eigentumseinheit. Die Wohnung wurde im November/Dezember 2025 umfassend saniert. (Bad komplett neu) Alle Zimmer sind mit Kunststoffböden ausgestattet, ausgenommen Küche und Flur. Diese Räume wurden hochwertig gefliest.
Die Eigentumswohnung (Abgeschlossenheit vorhanden) ist für Anleger oder Eigennutzer sehr gut geeignet und auch sofort bezugsfertig.
Weitere Fotos auf Anfrage
# Ausstattung
Garten, Duschbad, Fliesen
Bemerkungen:
siehe Objektbeschreibung
Hervorzuheben sind die bodengleiche Dusche, der Handtuchheizkörper und die Fußbodenheizung im Bad. Alle sanitären Elemente wurden im Rahmen der Sanierung erneuert.
# Weitere Angaben
Verfügbar ab: nach Absprache
Objektzustand: saniert
Bodenbelag: Fliesen, Kunststoff
Garagen/Stellplatzkaufpreis: 1,00 €
# Lagebeschreibung
Dingelstädt ist eine Stadt im thüringischen Landkreis Eichsfeld. Die zentrale Lage bietet eine gute Anbindung an die umliegenden Orte und eine solide Infrastruktur für den täglichen Bedarf. Einkaufsmöglichkeiten/Märkte, Ärzte, Kindergärten, Grundschule, Regelschule und Gymnasium sind in unmittelbarer Nähe und gut fußläufig erreichbar.
Infrastruktur (im Umkreis von 5 km):
Apotheke, Lebensmittel-Discount, Allgemeinmediziner, Kindergarten, Grundschule, Hauptschule, Realschule, Gymnasium, Gesamtschule, Öffentliche Verkehrsmittel
# Sonstiges
Heizungsart: Zentralheizung
Energieträger: Gas
Innerhalb der Wohnung (Zugang vom Schlafzimmer aus) befindet sich ein großzügiger Abstellraum mit Fenster.
ohne-makler (OM) ist weder Anbieter noch Vermittler der Immobilie. OM betreibt eine Plattform für Immobilieneigentümer, die unter anderem die gleichzeitige Veröffentlichung einzelner Inserate auf mehreren Immobilienportalen ermöglicht. Die Inhalte dieser Inserate werden ausschließlich von Dritten verantwortet. Für die Richtigkeit, Vollständigkeit oder Rechtmäßigkeit der Angaben übernimmt OM keine Haftung. Hinweise auf mögliche Rechtsverstöße können jederzeit gemeldet werden und werden nach Prüfung umgehend bearbeitet.
# Energie
Energieausweis: Energieverbrauchsausweis
Energieverbrauch: 106 kWh/(m²*a)
Energieeffizienzklasse: D
Heizungsart: Zentralheizung
Wesentliche Energieträger: Gas
Anbieter-Objekt-ID: 420272




















