Beschreibung
# Objektbeschreibung
Zum Verkauf steht meine zuverlässig mit Staffelmietvertrag vermietete 2 Zimmer Wohnung.
Der Schnitt ist optimal für alleinstehende, Pärchen oder auch Studenten. Sie stand nie leer und ist somit als Kapitalanlage bestens geeignet.
Die Lage ist top, nur 10 Gehminuten zu den Arcaden, alle Einkaufsmöglichkeiten in unmittelbarer Umgebung.
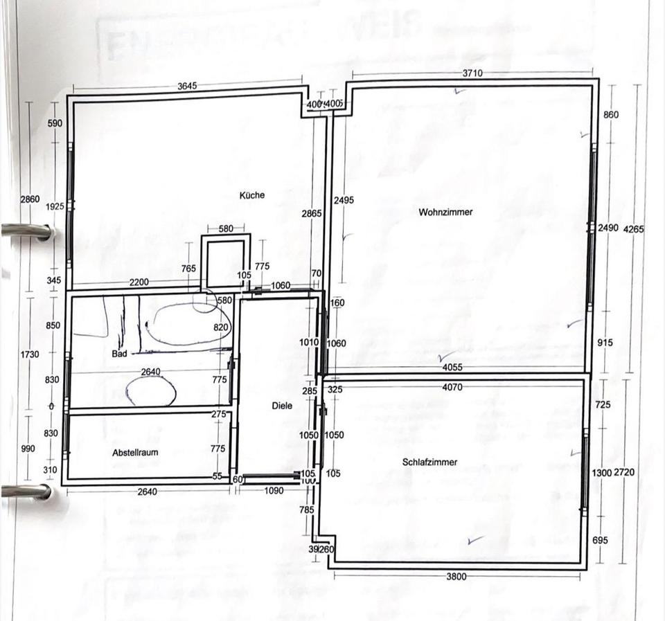
Es gibt eine großzügige Wohnküche inklusive Einbauküche mit neuen Elektrogeräten.
Vom Flur gehen noch das Wohnzimmer, das Schlafzimmer sowie das Tageslichtbad inklusive Badewanne ab. Ein kleiner Abstellraum mit Fenster komplettiert den perfekt genutzten Grundriss.
Geheizt wird über eine Gaszentralheizung inklusive modernem Steuerungspanel (Einbau 2009)
Das Dach wurde gerade erst aufwendig saniert (2025)
Die Fassade wird 2026 fertiggestellt.
Netto Jahreskaltmiete: 7980€
Die Wohnung befindet sich in der Hermann-Geib-Straße.
Verkauf erfolgt ohne Makler (Makler Anfragen werden nicht beantwortet)
Privatverkauf, Irrtümer vorbehalten.
# Ausstattung
Keller, Vollbad, Einbauküche, Laminat, Fliesen
Bemerkungen:
Die Wohnung wurde 2009 vollständig renoviert, inklusive Einbau einer Gaszentralheizung mit moderner Steuerung. Die Einbauküche ist im Kaufpreis enthalten.
Ein Stellplatz ist seit mehreren Jahren zusätzlich angemietet und kann übernommen werden.
# Weitere Angaben
Verfügbar ab: sofort
Objektzustand: gepflegt
Bodenbelag: Fliesen, Laminat
# Lagebeschreibung
Die Lage ist top, alles was man zum Leben braucht in unmittelbarer Nähe, Arcaden in 10 min zu Fuß erreichbar.
Infrastruktur (im Umkreis von 5 km):
Apotheke, Lebensmittel-Discount, Allgemeinmediziner, Kindergarten, Grundschule, Hauptschule, Realschule, Gymnasium, Gesamtschule, Öffentliche Verkehrsmittel
# Sonstiges
Heizungsart: Zentralheizung
Energieträger: Gas
Makleranfragen nicht erwünscht. Nach § 7 UWG sind unaufgeforderte Kontaktaufnahmen durch Makler ohne ausdrückliche Einwilligung des Empfängers verboten!
ohne-makler (OM) ist weder Anbieter noch Vermittler der Immobilie. OM betreibt eine Plattform für Immobilieneigentümer, die unter anderem die gleichzeitige Veröffentlichung einzelner Inserate auf mehreren Immobilienportalen ermöglicht. Die Inhalte dieser Inserate werden ausschließlich von Dritten verantwortet. Für die Richtigkeit, Vollständigkeit oder Rechtmäßigkeit der Angaben übernimmt OM keine Haftung. Hinweise auf mögliche Rechtsverstöße können jederzeit gemeldet werden und werden nach Prüfung umgehend bearbeitet.
# Energie
Energieausweis: Energieverbrauchsausweis
Energieverbrauch: 113 kWh/(m²*a)
Energieeffizienzklasse: D
Heizungsart: Zentralheizung
Wesentliche Energieträger: Gas
Anbieter-Objekt-ID: 423010




















