Beschreibung
# Objektbeschreibung
Willkommen in Ihrem neuen Zuhause!
Diese neu errichtete, attraktive Dachgeschosswohnung befindet sich in einmaliger Lage in der Bismarckstr. am „Kleinen Wannsee“ im begehrten Berliner Ortsteil Wannsee (Zehlendorf).
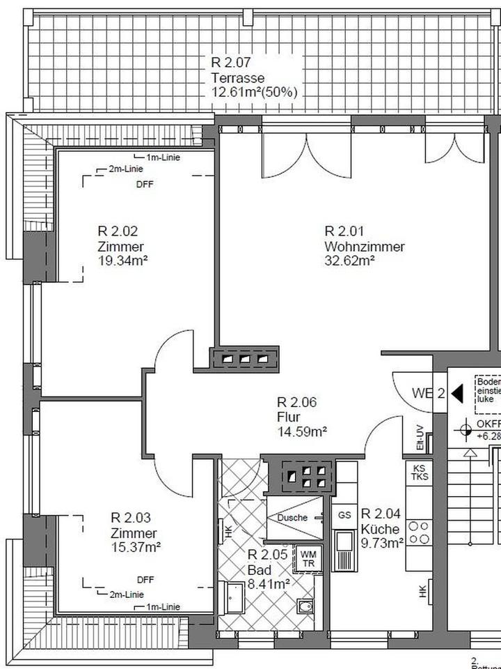
Das hochwertig gestaltete Apartment bietet drei helle und großzügige Zimmer mit einem modernen Grundriss und einem außergewöhnlichen Wohngefühl unter dem Dach.
Die Kombination aus stilvollem Ausbau, lichtdurchfluteten Räumen und der unmittelbaren Nähe zum Wasser macht diese Immobilie zu einem besonderen Rückzugsort mit hohem Lebens- und Freizeitwert.
# Ausstattung
Garten, Keller, Dachterrasse, Duschbad, Laminat
Bemerkungen:
– drei attraktive Zimmer, teilbar zu vier Zimmer
– hochwertige Bodenbelege
– große Dachterrasse
– großzügige Fensterflächen
– energieeffiziente Bauweise
– harmonisch integrierte Holzelemente – formschön und funktional
als offene Regale nutzbar
– Garage kann optional gemietet werden
# Weitere Angaben
Verfügbar ab: nach Absprache
Objektzustand: neuwertig
Bodenbelag: Laminat, Kunststoff
# Lagebeschreibung
Die Wohnung liegt in einer naturnahen Gegend von Berlin-Wannsee, nur wenige Schritte vom Kleinen Wannsee entfernt.
Die Umgebung ist geprägt von historischen Orten, kulturellen Highlights und viel Natur.
Ein besonderes Highlight ist der barrierefreie Uferweg, der unter der Bundesstraße B1 hindurchführt und als grüne Flaniermeile bis zur Bismarckstraße ausgebaut wurde – ideal für Spaziergänge und Fahrradtouren direkt am Wasser.
In unmittelbarer Nähe befindet sich zudem das geschichtsträchtige Grab von Heinrich von Kleist, das zwischen alten Bäumen liegt – ein Ort von kultureller Bedeutung und ruhiger Atmosphäre.
Infrastruktur (im Umkreis von 5 km):
Öffentliche Verkehrsmittel
# Sonstiges
Heizungsart: Zentralheizung
Energieträger: Öl
Energieausweis nicht vorhanden
Makleranfragen nicht erwünscht. Nach § 7 UWG sind unaufgeforderte Kontaktaufnahmen durch Makler ohne ausdrückliche Einwilligung des Empfängers verboten!
ohne-makler (OM) ist weder Anbieter noch Vermittler der Immobilie. OM betreibt eine Plattform für Immobilieneigentümer, die unter anderem die gleichzeitige Veröffentlichung einzelner Inserate auf mehreren Immobilienportalen ermöglicht. Die Inhalte dieser Inserate werden ausschließlich von Dritten verantwortet. Für die Richtigkeit, Vollständigkeit oder Rechtmäßigkeit der Angaben übernimmt OM keine Haftung. Hinweise auf mögliche Rechtsverstöße können jederzeit gemeldet werden und werden nach Prüfung umgehend bearbeitet.
# Energie
Baujahr: 2025
Heizungsart: Zentralheizung
Wesentliche Energieträger: Öl
Anbieter-Objekt-ID: 389870

























